Resultaten laden ...

Gezelweg 30 - 38

178 m2 kantoorruimte te koop in Zeewolde

Kenmerken

Prijs € 728.420 v.o.n.
Functie Kantoorruimte
Onderhoud buiten Uitstekend
Onderhoud binnen Uitstekend
Wijk / Buurt Tweede woonwijk
Bedrijventerrein GILDENVELD II

Wonen in Het Gezelhofje Zeewolde

HET PLAN

In de mooiste wijk van Zeewolde, Zeewolde-Zuid, en aan de rand van het bosgebied realiseert Z&M projectontwikkeling b.v. een vijftal vrijstaande woningen. Binnen het kleinschalige bedrijventerrein Gildenveld 2 zijn de woningen gelegen aan een hofje, vrijstaand en hebben allen een mooie ruime kavel, omzoomd door groen. De 5 kavels liggen aan het Gezelhof, een aftakking van de Gezelweg.

UW WONING

De woningen zijn gesitueerd op een ruime kavel en hebben een grote ruimte die voor meerdere functies bruikbaar is. Zo kunt u van deze ruimte een berging/garage maken of uw woning kan toekomstbestendig worden door er een slaap- en badkamer te situeren. Natuurlijk is de ruimte ook zeer geschikt om een goede thuiswerk omgeving te creëren. Of u kunt er een klein bedrijf in vestigen, mits deze in categorie 1 valt. Bedrijven die tot milieu-categorie 1 behoren, veroorzaken over het algemeen weinig tot geen milieubelasting. Een kleine kantoorvestiging behoort tot de mogelijkheden, waarbij u kunt denken aan een adviesbureau tot accountant. Wij raden u aan, als je belangstelling heeft om de woning bedrijfsmatig te verwerven, met de gemeente te overleggen over wat wel en niet mogelijk is binnen het geldende omgevingsplan.

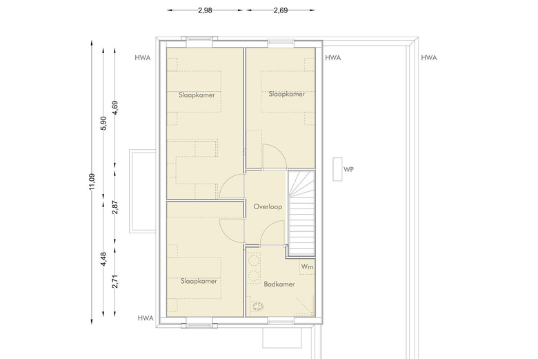
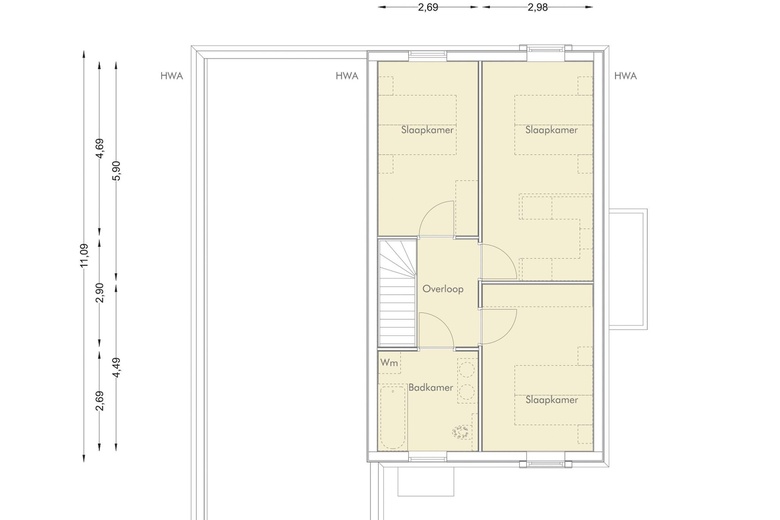
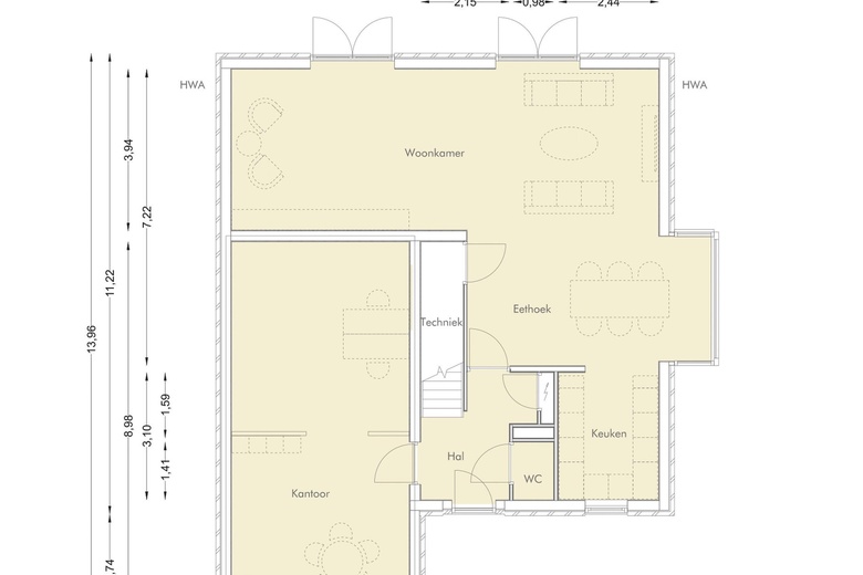
Op de begane grond heeft de woning een grote woonkamer met serre en een keuken. Op de verdieping treft u 3 ruime slaapkamers en een badkamer aan. De keuken en badkamer zijn technische volledig voorbereid, zodat u uw eigen keuken en badkamer kunt (laten) plaatsen.

LIGGING IN ZEELWOLDE

Uw woning, gesitueerd in de Zeewolde Zuid, ligt op ca. 5 minuten fietsafstand van het centrum van Zeewolde met goede (winkel)voorzieningen. Ook fietst u binnen 5 minuten naar het hoofdstrand van Zeewolde, met een apart gedeelte voor kinderen en honden. In de buurt treft u een dokterspraktijk, Kinderdagverblijf en dierenarts aan.

Letterlijk aan de overkant van de weg vindt u het het grootschalig bosgebied het Horsterwold.

Uw woning grenst dus aan het Horsterwold, één van de grootste aaneengesloten loofbossen van Nederland. De bewoners van het bos zijn reeën, wilde paarden, damherten en vossen en vogels. Een uitgebreid netwerk van paden en routes ligt klaar voor gebruik. Maar er zijn ook grote delen bos met minder paden, voor echte rustzoekers.

Per 1 januari 2024 heeft Zeewolde 23.883 inwoners. De totale oppervlakte bedraagt 268 km2. Hiervan is 21 km2 water. Met 97 inwoners per km2 is Zeewolde één van de dunst bevolkte gemeenten van Nederland.

Vanuit Zeewolde zijn Nijkerk, Harderwijk en Almere via een prima busverbinding eenvoudig te bereiken. In deze plaatsen is een treinstation. De pont: de ‘Horsterveer’ vaart al sinds 1993 tussen Zeewolde en Strand-Horst (Ermelo) en is de ideale manier voor fietsers en voetgangers om de oversteek tussen deze twee plaatsen te maken. Ook scholieren komen zo sneller bij de middelbare scholen in Harderwijk en Ermelo.

KOOPCONDITIES

Koopprijs: vanaf € 728.420,- V.O.N. incl. BTW.

Aanvaarding: verwachting startbouw begin 2026.

Is er BTW van toepassing: ja, de koopprijs is incl. BTW. Een gedeelte van de VON-prijs is niet BTW belast voor de koper.

MEER INFORMATIE IS TE VINDEN IN DE BROCHURE

GOEDKEURING

Het bovenstaande is onder finaal voorbehoud van de eigenaar.

Disclaimer: Ondanks dat deze publicatie met de grootst mogelijke zorgvuldigheid is samengesteld is de Online Bedrijfsmakelaar BV niet aansprakelijk te stellen voor onjuiste of onvolledige informatie die in deze publicatie vermeld staan. Aan deze gegevens kunnen geen rechten worden ontleend.

====================

Alle beschikbare informatie ontvangen?

Benieuwd naar alle beschikbare informatie over dit pand? Vraag dan nu, onder de grote contactbutton, de gratis objectbrochure van de Gezelweg 30 T/M 38 in Zeewolde aan en ontvang de objectbrochure binnen 5 minuten in uw mailbox. Uiteraard kunt u ook direct een geheel vrijblijvende bezichtiging met de beheerder van het pand inplannen.

Bijlagen

De aanbieder van dit object heeft een PDF Brochure beschikbaar gesteld.

Vraag brochure aan