Satellietbaan 12 C
235 m2 kantoorruimte te huur in Hillegom
Kenmerken
| Huurprijs | € 95 m²/jaar |
| Functie | Kantoorruimte |
| Onderhoud buiten | Goed |
| Onderhoud binnen | Goed |
| Wijk / Buurt | Meer en Dorp |
| Bedrijventerrein | Treslong |
1 eenheid beschikbaar
1 eenheid beschikbaar
- Eenheid
- Oppervlakte
- Huurprijs
- Gebruik
| OPPERVLAKTE | 235 m2 |
| GEBRUIK | Kantoorruimte |
Omschrijving
Omschrijving
ALGEMEEN/LOCATIE:
Moderne en compleet afgewerkte bedrijfs-/kantoor-/showruimte van in totaal ca. 235 m², gelegen op de 1e verdieping van een modern en representatief bedrijfsverzamelgebouw. Het kenmerkt zich door veel lichtinval door de grote raampartijen wat voor een prettige werk-/leefomgeving zorgt en de ruimtes ook uitermate geschikt maakt voor gebruik als showroom. Parkeren kan op het voorgelegen terrein.
Het object is gunstig gelegen op een zichtlocatie aan de rotonde aan de Weerlaan, direct aan de ingang van het bedrijventerrein Treslong te Hillegom, naast Karwei. Het bedrijvenpark Treslong in Hillegom ligt centraal in de Bollenstreek. De luchthaven Schiphol, alsmede de steden Haarlem en Leiden zijn binnen 25 minuten te bereiken. Mede door de provinciale weg N-208 en de N207, die Hillegom verbindt met de kruising van de snelwegen A4 en A44, zijn ook de steden Amsterdam, Rotterdam en Den Haag goed bereikbaar.
INDELING:
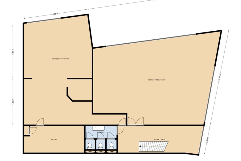
1e verdieping (bedrijfs-/kantoor-/showroomruimte):
Eigen entree op de begane grond, trap naar 1e verdieping: royale centrale hal met toegang tot zowel een grote open kantoorruimte aan de voorzijde van ca. 105 m², een moderne geheel betegelde toiletgroep met voorportaal met dubbele wastafel, wit/grijze kleurstelling en 2x vrijdragend toilet en 1x urinoir alsmede - aan de achterzijde- een 2e kantoorruimte met archiefruimte en pantry, totaal ca. 103 m².
OPPERVLAKTE:
1e verdieping: ca. 235 m² VVO bedrijfs-/kantoor-/showroomruimte;
Totale oppervlakte ca. 235 m² VVO.
VOORZIENINGEN-/OPLEVERINGSNIVEAU:
- Zelfstandige entree op de begane grond;
- Eigen meter/groepenkast met eigen aansluiting op de nutsvoorziening;
- Moderne tegelvloer in entreehal, centrale hal 1e verdieping en toiletten;
- Vloerbedekking in kantoorruimtes;
- Systeemplafond met led-armaturen;
- Eenvoudige pantry;
- Moderne toiletgroep (2x vrijdragend toilet en 1x urinoir) met dubbele wastafel;
- C.v.-installatie met radiatoren;
- Veel raampartijen met dubbel glas en te openen ramen;
- Kabelgoot met elektra en UTP-aansluitingen.
BIJZONDERHEDEN:
- Bezichtiging uitsluitend na afspraak met verhurende makelaar;
- Elke verhuurtransactie geschiedt onder gunning c.q. goedkeuring door opdrachtgever.
PARKEREN:
Bij de ruimte(n) behoren een nog nader te bepalen aantal parkeerplaatsen, e.e.a. in overleg met verhuurder af te stemmen.
BESTEMMING:
Conform het vigerend bestemmingsplan "Bedrijventerrein" heeft het pand de bestemming 'Bedrijventerrein' met de functie-aanduiding 'bedrijven tot en met categorie 3.2'. De gronden zijn bestemd voor bedrijfsmatige activiteiten behorende tot categorieën 1 t/m 3.2 van de Staat van Bedrijfsactiviteiten zoals opgenomen in bijlage 1 van deze regels. Tevens zijn bedrijfsgebonden kantoren toegestaan met een maximum van 50% van de bedrijfsvloeroppervlakte per bedrijf als zodanig bestemd is, met een maximum van 2.000 m². Voor meer informatie verwijzen wij u naar de gemeente Hillegom.
HUURPRIJS:
1e verdieping: € 95,= per m² per jaar exclusief BTW.
SERVICEKOSTEN:
€ 5,= per m² per jaar excl. BTW voor onderhoud van de C.V., airco en onderhoud koelinstallatie.
OPLEVERING:
Oplevering in overleg, beide ruimten zijn per direct voor verhuur beschikbaar.
HUURTERMIJN:
Uitgangspunt is een termijn van 5 jaar + 5 optie jaren, afwijkende termijnen zijn bespreekbaar.
HUUROVEREENKOMST:
Standaard huurovereenkomst kantoorruimte en andere bedrijfsruimte in de zin van artikel 7:230a BW, vastgesteld door de Raad voor Onroerende Zaken (ROZ) op 5 maart 2025. Van deze huurovereenkomst maken deel uit de algemene bepalingen kantoorruimte en andere bedrijfsruimte in de zin van artikel 7:230a BW, op 10 april 2025 gedeponeerd bij de griffie van de rechtbank Den Haag en aldaar zijn ingeschreven onder nummer 8/2025.
HUURPRIJSAANPASSING:
Jaarlijks per huuringangsdatum, voor het eerst 12 maanden na huuringangsdatum op basis van de wijziging van het maandprijs-indexcijfer volgens de consumentenprijsindex (CPI) reeks alle huishoudens (2015=100), zoals gepubliceerd door het Centraal Bureau voor de Statistiek (CBS).
ZEKERHEIDSTELLING:
Bankgarantie of waarborgsom ter grootte van drie maanden huurverplichting inclusief eventuele servicekosten en de over het totaal verschuldigde BTW.
COURTAGE:
Mocht door bemiddeling van BM Bedrijfsmakelaars voor dit object een transactie tot stand worden gebracht, dan zult u ons hiervoor geen kosten of courtage verschuldigd zijn.
Deze aanbieding is vrijblijvend, er kunnen derhalve geen rechten aan deze brochure, tekst en tekeningen worden ontleend.