Hinthamerstraat 102
110 m2 winkelruimte te huur in Den Bosch
Kenmerken
| Huurprijs | Prijs op aanvraag |
| Functie | Winkelruimte |
| Wijk / Buurt | Binnenstad-Oost |
1 eenheid beschikbaar
1 eenheid beschikbaar
- Eenheid
- Oppervlakte
- Huurprijs
- Gebruik
- 1
- 110 m2
- Prijs op aanvraag
- Winkelruimte
| OPPERVLAKTE | 110 m2 |
| GEBRUIK | Winkelruimte |
Omschrijving
Omschrijving
Locatie
Het centrum van Den Bosch heeft van oudsher drie belangrijke toegangswegen die leiden naar de Markt: de Orthenstraat, de Vughterstraat en de Hinthamerstraat. De luxe en sfeervolle bestrating in de Hinthamerstraat heeft gezorgd voor een goede winkelambiance. Onderhavige winkelruimte is gelegen tegenover de bekende bakker Korengoud, omringd door diverse druk bezochte horecazaken en schuin tegenover Basiliek de St. Jan.
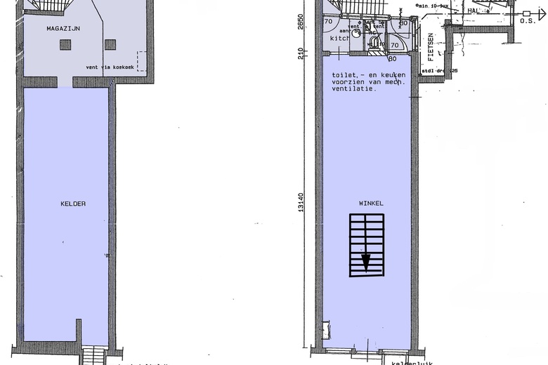
Dit karakteristieke pand betreft een geheel gerenoveerde ruimte en omvat een rechthoekige winkel met een vrije hoogte van circa 4,50 meter. In het midden is een trap gesitueerd met toegang naar de kelder. Deze heeft een hoogte van circa 2,50 meter en wordt gekenmerkt door een gewelfd plafond. De entree is in het midden van de pui gesitueerd en aan de achterzijde van de winkel zijn een pantry (met boven- en onderkasten) en toilet geplaatst. Opleveringsniveau
In de huidige staat. Parkeren
Pal voor de onderhavige winkelruimte bestaat de mogelijkheid tot betaald parkeren. Lang parkeren kan in de nabij gelegen parkeergarages zoals o.a. in de St Josephstraat en aan de Hekellaan.
Bijlagen
Aanbevolen voor u
Bekijk
winkelruimte in Den Bosch
of bekijk deze panden: