Braillestraat 87 36 - 92 m2 bedrijfsruimte te huur in Berkel en Rodenrijs
Kenmerken
| Huurprijs | € 1.950,- /maand excl. btw |
| Functie | Bedrijfsruimte |
| Onderhoud buiten | Uitstekend |
| Onderhoud binnen | Uitstekend |
| Wijk / Buurt | Oudeland |
| Bedrijventerrein | Oudeland |
2 eenheden beschikbaar
2 eenheden beschikbaar
- Eenheid
- Oppervlakte
- Huurprijs
- Gebruik
Eenheid omschrijving
Immobilia presenteert een multifunctionele bedrijfshal met keurige kantoorruimte van in totaal ca. 128m2 (BVO). Uitgevoerd met een overheaddeur en twee (2) eigen parkeerplaatsen. De bedrijfshal is voorzien van vloerverwarming en de kantoorruimte is uitgevoerd met een airco. Centraal gelegen op bedrijventerrein Oudeland in Berkel en Rodenrijs.
AUTOBEDRIJVEN/GARAGE ZIJN NIET TOEGESTAAN.
Begane grond:
Bedrijfshal van ca. 86m2 (VVO) met een hoogte van maar liefst 7,25 meter! De bedrijfshal is te bereiken via een loopdeur en overheaddeur. De overheaddeur is ca. 4 meter hoog en 4 meter breed. De pantry en het toilet zijn links in de hoek gesitueerd.
Voor de deur liggen twee parkeerplaatsen die horen bij de bedrijfshal. De hal is voorzien van vloerverwarming middels aardwarmte.
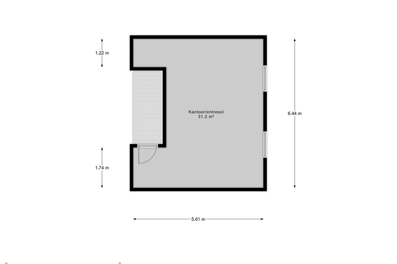
Kantoor/entresol:
De nette kantoorruimte meet ca. 31m2 (VVO) en ligt aan de achterzijde van de bedrijfshal. Bereikbaar middels een stalen trap vanuit de hal. Keurig afgewerkt en voorzien van een airco-unit, ledverlichting en stopcontacten rondom. Vanuit het kantoor heb je zicht op de hal.
Bijzonderheden:
- Kantoorruimte voorzien van airco.
- Overheaddeur van 4 meter breed en 4 meter hoog.
- Verwarming middels aardwarmte en vloerverwarming.
- Twee (2) eigen parkeerplaatsen.
Vloerbelasting:
- Begane grond: 1.500 kg per m2.
- 1e verdieping: Beton 500 kg per m2.
Huurspecificaties:
Huurprijs:
€ 23.400,- per jaar excl. btw.
Huurtermijn:
In overleg met verhuurder.
Huuringangsdatum:
Beschikbaar per direct.
Huurprijsherziening:
Jaarlijks op basis van de CPI-index van het CBS
Huurbetaling:
Per maand vooruit.
Nutsvoorzieningen:
Huurprijs excl. G/W/L
Servicekosten:
€ 65,- per maand excl. BTW.
Bankgarantie/waarborgsom:
Drie (3) maanden huur excl. BTW en servicekosten.
Huurovereenkomst:
Conform model ROZ.
BTW:
Verhuurder wenst te opteren voor BTW-belaste huur en verhuur. Ingeval huurder de BTW niet kan verrekenen zal de huurprijs worden verhoogd ter compensatie van de gevolgen van het vervallen van de mogelijkheid om te opteren voor BTW-belaste huur.
Eenheid omschrijving
Immobilia presenteert een multifunctionele bedrijfshal met keurige kantoorruimte van in totaal ca. 128m2 (BVO). Uitgevoerd met een overheaddeur en twee (2) eigen parkeerplaatsen. De bedrijfshal is voorzien van vloerverwarming en de kantoorruimte is uitgevoerd met een airco. Centraal gelegen op bedrijventerrein Oudeland in Berkel en Rodenrijs.
AUTOBEDRIJVEN/GARAGE ZIJN NIET TOEGESTAAN.
Begane grond:
Bedrijfshal van ca. 86m2 (VVO) met een hoogte van maar liefst 7,25 meter! De bedrijfshal is te bereiken via een loopdeur en overheaddeur. De overheaddeur is ca. 4 meter hoog en 4 meter breed. De pantry en het toilet zijn links in de hoek gesitueerd.
Voor de deur liggen twee parkeerplaatsen die horen bij de bedrijfshal. De hal is voorzien van vloerverwarming middels aardwarmte.
Kantoor/entresol:
De nette kantoorruimte meet ca. 31m2 (VVO) en ligt aan de achterzijde van de bedrijfshal. Bereikbaar middels een stalen trap vanuit de hal. Keurig afgewerkt en voorzien van een airco-unit, ledverlichting en stopcontacten rondom. Vanuit het kantoor heb je zicht op de hal.
Bijzonderheden:
- Kantoorruimte voorzien van airco.
- Overheaddeur van 4 meter breed en 4 meter hoog.
- Verwarming middels aardwarmte en vloerverwarming.
- Twee (2) eigen parkeerplaatsen.
Vloerbelasting:
- Begane grond: 1.500 kg per m2.
- 1e verdieping: Beton 500 kg per m2.
Huurspecificaties:
Huurprijs:
€ 23.400,- per jaar excl. btw.
Huurtermijn:
In overleg met verhuurder.
Huuringangsdatum:
Beschikbaar per direct.
Huurprijsherziening:
Jaarlijks op basis van de CPI-index van het CBS
Huurbetaling:
Per maand vooruit.
Nutsvoorzieningen:
Huurprijs excl. G/W/L
Servicekosten:
€ 65,- per maand excl. BTW.
Bankgarantie/waarborgsom:
Drie (3) maanden huur excl. BTW en servicekosten.
Huurovereenkomst:
Conform model ROZ.
BTW:
Verhuurder wenst te opteren voor BTW-belaste huur en verhuur. Ingeval huurder de BTW niet kan verrekenen zal de huurprijs worden verhoogd ter compensatie van de gevolgen van het vervallen van de mogelijkheid om te opteren voor BTW-belaste huur.
| OPPERVLAKTE | 92 m2 |
| GEBRUIK | Bedrijfsruimte |
| OPPERVLAKTE | 36 m2 |
| GEBRUIK | Kantoorruimte |
Bereikbaarheid
Bijlagen
De aanbieder van dit object heeft een PDF Brochure beschikbaar gesteld.
Dit object is verhuurd, brochure is niet meer beschikbaar.
Vraag brochure aan