Craenakker 5 220 - 1.478 m2 bedrijfsruimte te huur in Belfeld
Kenmerken
| Huurprijs | Prijs op aanvraag |
| Functie | Bedrijfsruimte |
| Wijk / Buurt | Geloërveld / Pannenberg |
| Bedrijventerrein | Gelo�rveld |
2 eenheden beschikbaar
2 eenheden beschikbaar
- Eenheid
- Oppervlakte
- Huurprijs
- Gebruik
Eenheid omschrijving
TE HUUR BEDRIJFSOBJECT CRAENAKKER 5 BELFELD
Bedrijfsobject gelegen op moderne kleinschalige bedrijventerrein "Geloërveld". Gezamenlijke huur met Craenakker 3a is bespreekbaar.
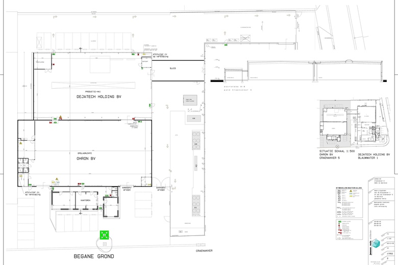
Twee bedrijfshallen met kantoren. Bedrijfshal (hal I) oorspronkelijk gebouwd vermoedelijk omstreeks 1995 als staalconstructie, gevels in damwandprofielplaten, stalen dakplaten afgewerkt met een bitumineuze dakbedekking, vloeren als monolitisch afgewerkte betonvloer.
De kantoorvoorbouw werd gerealiseerd in 2001 in traditionele bouwaard, gevels in metselwerk, plat dak afgewerkt met een bitumineuze dakbedekking. In 2002 werd een 2e bedrijfshal aangebouwd.
Bereikbaarheid
Het object is in de directe nabijheid gelegen van de Rijksweg N-271 en de Rijksweg A-73 (Nijmegen-Maastricht) en is goed bereikbaar. Een bushalte is op loopafstand van het object gesitueerd.
Parkeren
Aan voor- en achterzijde zijn in voldoende mate parkeermogelijkheden aanwezig. Het terrein is grotendeels omheind.
Indeling object (vvo)
Totaal ca. 1.698 m².
ca. 1.478 m² bedrijfsruimte
ca. 140 m² kantoorruimte
ca. 80 m² toiletten/kantine
Indeling
Kantoorgebouw: entree – spreekkamer – receptie/administratiekantoor – dames/heren toiletgroep –
3 kantoorruimtes.
Hal I: productieruimte/magazijn met klein kantoortje, toiletgroep en douche – kleed-/wasruimte – kantine met aanrechtblokje.
Hal II: productiehal met vloerverwarming en één rolpoort.
Hoogte (bruto) van de hal
Circa 4,60 tot 4,75 meter onder het spant
Voorzieningen/afwerking
De kantoren zijn voorzien van tegelvloeren, stucwerkwanden, systeemplafonds, airconditioning en vloerverwarming. De toiletten zijn geheel betegeld.
Hal I: 2 heaters, 2 elektrisch bediende rolpoorten en lichtstraten.
Hal II: lichtstraat, perslucht, één elektrisch bediende rolpoort, vloerverwarming en c.v. ketel op entresol.
Kadastraal bekend beide percelen
Gemeente Belfeld, sectie A, nummers 3635, 3669, 3724 en 3725 en totaal groot 4.157 m².
Huurcondities
Huurprijs
Op aanvraag.
Opleveringsniveau
In huidige staat.
Huurtermijn
5 jaar met telkens 5 jaar verlenging.
Huurbetaling
Per maand vooruit te voldoen.
BTW-belaste verhuur
Verhuurder opteert voor met BTW-belaste verhuur. Indien huurder niet voldoet aan de wettelijke criteria (90% BTW-norm) dan zal er een BTW-vervangende opslag gehanteerd worden, zodanig dat verhuurder gecompenseerd wordt wegens het niet kunnen verrekenen van de BTW op de investeringen, alsmede de BTW op de exploitatiekosten.
Bankgarantie
Conform het ROZ-model ten bedrage van 3 maanden huur te vermeerderen met BTW.
Indexering
Jaarlijks overeenkomstig het maand prijsindexcijfer volgens het consumentenprijsindexcijfer (CPI) reeks “alle huishoudens“ (2015 = 100), gepubliceerd door het Centraal Bureau voor de Statistiek (CBS).
Huurcontract
Standaardmodel ROZ-contract model (kantoorruimte/ bedrijfsruimte) met bijbehorende algemene bepalingen
Aanvaarding
In overleg.
Voorbehoud
Goedkeuring eigenaar/verhuurder.
Eenheid omschrijving
TE HUUR BEDRIJFSOBJECT CRAENAKKER 5 BELFELD
Bedrijfsobject gelegen op moderne kleinschalige bedrijventerrein "Geloërveld". Gezamenlijke huur met Craenakker 3a is bespreekbaar.
Twee bedrijfshallen met kantoren. Bedrijfshal (hal I) oorspronkelijk gebouwd vermoedelijk omstreeks 1995 als staalconstructie, gevels in damwandprofielplaten, stalen dakplaten afgewerkt met een bitumineuze dakbedekking, vloeren als monolitisch afgewerkte betonvloer.
De kantoorvoorbouw werd gerealiseerd in 2001 in traditionele bouwaard, gevels in metselwerk, plat dak afgewerkt met een bitumineuze dakbedekking. In 2002 werd een 2e bedrijfshal aangebouwd.
Bereikbaarheid
Het object is in de directe nabijheid gelegen van de Rijksweg N-271 en de Rijksweg A-73 (Nijmegen-Maastricht) en is goed bereikbaar. Een bushalte is op loopafstand van het object gesitueerd.
Parkeren
Aan voor- en achterzijde zijn in voldoende mate parkeermogelijkheden aanwezig. Het terrein is grotendeels omheind.
Indeling object (vvo)
Totaal ca. 1.698 m².
ca. 1.478 m² bedrijfsruimte
ca. 140 m² kantoorruimte
ca. 80 m² toiletten/kantine
Indeling
Kantoorgebouw: entree – spreekkamer – receptie/administratiekantoor – dames/heren toiletgroep –
3 kantoorruimtes.
Hal I: productieruimte/magazijn met klein kantoortje, toiletgroep en douche – kleed-/wasruimte – kantine met aanrechtblokje.
Hal II: productiehal met vloerverwarming en één rolpoort.
Hoogte (bruto) van de hal
Circa 4,60 tot 4,75 meter onder het spant
Voorzieningen/afwerking
De kantoren zijn voorzien van tegelvloeren, stucwerkwanden, systeemplafonds, airconditioning en vloerverwarming. De toiletten zijn geheel betegeld.
Hal I: 2 heaters, 2 elektrisch bediende rolpoorten en lichtstraten.
Hal II: lichtstraat, perslucht, één elektrisch bediende rolpoort, vloerverwarming en c.v. ketel op entresol.
Kadastraal bekend beide percelen
Gemeente Belfeld, sectie A, nummers 3635, 3669, 3724 en 3725 en totaal groot 4.157 m².
Huurcondities
Huurprijs
Op aanvraag.
Opleveringsniveau
In huidige staat.
Huurtermijn
5 jaar met telkens 5 jaar verlenging.
Huurbetaling
Per maand vooruit te voldoen.
BTW-belaste verhuur
Verhuurder opteert voor met BTW-belaste verhuur. Indien huurder niet voldoet aan de wettelijke criteria (90% BTW-norm) dan zal er een BTW-vervangende opslag gehanteerd worden, zodanig dat verhuurder gecompenseerd wordt wegens het niet kunnen verrekenen van de BTW op de investeringen, alsmede de BTW op de exploitatiekosten.
Bankgarantie
Conform het ROZ-model ten bedrage van 3 maanden huur te vermeerderen met BTW.
Indexering
Jaarlijks overeenkomstig het maand prijsindexcijfer volgens het consumentenprijsindexcijfer (CPI) reeks “alle huishoudens“ (2015 = 100), gepubliceerd door het Centraal Bureau voor de Statistiek (CBS).
Huurcontract
Standaardmodel ROZ-contract model (kantoorruimte/ bedrijfsruimte) met bijbehorende algemene bepalingen
Aanvaarding
In overleg.
Voorbehoud
Goedkeuring eigenaar/verhuurder.
| OPPERVLAKTE | 1.478 m2 |
| GEBRUIK | Bedrijfsruimte |
| OPPERVLAKTE | 220 m2 |
| GEBRUIK | Kantoorruimte |
Bereikbaarheid
- Craenakker 1 min. lopen
- Geloerveldweg 4 min. lopen
- Beatrixlaan 6 min. lopen