Generaal O'Connorstraat 1 E
98 m2 bedrijfsruimte te koop in Helmond
Kenmerken
| Prijs | € 199.500 k.k. |
| Functie | Bedrijfsruimte |
| Onderhoud buiten | Uitstekend |
| Onderhoud binnen | Uitstekend |
| Wijk / Buurt | Hoogeind |
| Bedrijventerrein | HOOGEIND |
1 eenheid beschikbaar
1 eenheid beschikbaar
Omschrijving
Omschrijving
Locatie:
De te koop aangeboden bedrijfsruimte aan de Generaal O'Connorstraat 1E te Helmond is gelegen op Bedrijventerrein Hoogeind. Het bedrijfscomplex is gelegen aan de rand van bedrijventerrein Hoogeind en is uitstekend bereikbaar door de naast gelegen toegangsweg N270. De snelweg A270 is binnen enkele autominuten bereikbaar. Met een totale omvang van 350 hectare is bedrijventerrein Hoogeind een van de grootste terreinen in de omgeving.
Bedrijventerrein Hoogeind te Helmond is uitstekend bereikbaar met een goede verbinding naar diverse uitvalswegen zoals de A67 (Eindhoven – Venlo), de A270 (Eindhoven – Helmond) en de N279 (Veghel – Den Bosch). In de directe omgeving bevindt zich tevens een bushalte met de verbinding naar Helmond – Centrum en het NS station. OBJECTGEGEVENS Beschikbare oppervlakte voor de verkoop:
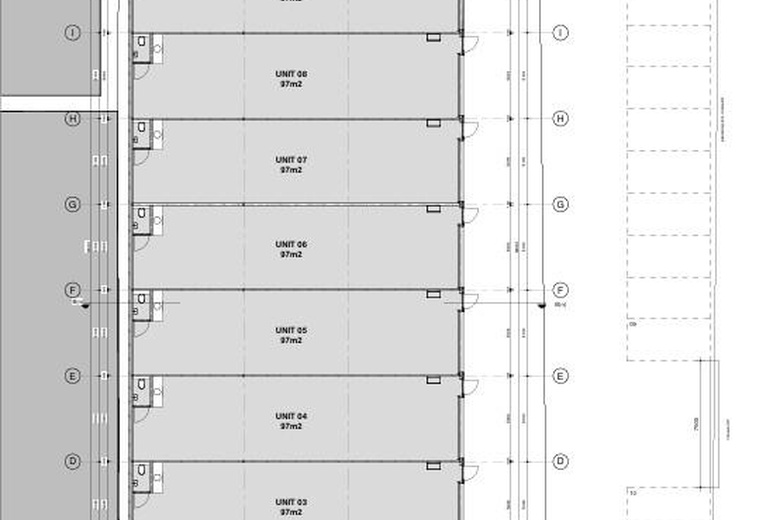
Circa 98 m² bedrijfsruimte - begane grond Parkeergelegenheid:
2 parkeerplaatsen beschikbaar, gelegen op eigen parkeerterrein, aan de voorzijde van het bedrijfspand aan de Generaal O'Connorstraat 1E te Helmond - unit 6, aanvullend gratis openbare parkeerplaatsen gelegen aan de openbare weg. Opleveringsniveau bedrijfsruimte:
• vrije hoogte van circa 5 meter
• maximaal toelaatbare vloerbelasting van circa 1.500 kg / m²
• 1 handmatige overheaddeur
• 1 loopdeur
• monolithisch afgewerkte betonvloer
• daglichttoetreding middels ramen aan de voorzijde
• sanitaire voorziening
• pantry voorzien van spoelbak en kastjes Opleveringsniveau terrein:
• 100% bestraat met klinkers
• omheind middels hekwerk Aanvaarding:
Per direct. Kadastrale gegevens Generaal O'Connorstraat 1E te Helmond - unit 6:
Gemeente: Helmond
Sectie: H
Perceelnummers: 2028 en 2034
Oppervlakte: 131 m² (totaal samen) Bestemmingsplan:
Het bestemmingsplan van dit bedrijfsgebouw aan de Generaal O'Connorstraat 1E te Helmond - unit 6 op Bedrijventerrein Hoogeind is op te vragen via één van onze bedrijfsmakelaars bij Bossers & Fitters Bedrijfshuisvesting B.V. en/of via de website van het omgevingsloket. Bouwjaar:
2023 KOOPGEGEVENS Koopsom:
€ 199.500,00 kosten koper. Notaris:
Door koper nader te bepalen. Zekerheidsstelling:
10% van de koopsom inclusief B.T.W. te stellen bij de ondertekening van de koopovereenkomst. B.T.W.:
Er zal worden geopteerd voor een met B.T.W.-belaste verkoop. Bijzonderheden:
Deze bedrijfsruimte is verhuurd en wordt te koop aangeboden, waarbij de huurder in het pand blijft. Onze bedrijfsmakelaar de heer G. van Lotringen is van alle beschikbare informatie op de hoogte betreffende de verkoop van deze bedrijfsunit aan de Generaal O'Connorstraat 1E te Helmond.
Bijlagen
Aanbevolen voor u
Bekijk
bedrijfsruimte in Helmond
of bekijk deze panden: