Hurksestraat 26 D 1.159 m2 bedrijfsruimte te huur in Eindhoven
Kenmerken
| Huurprijs | € 82.500,- /jaar excl. btw |
| Functie | Bedrijfsruimte |
| Onderhoud buiten | Uitstekend |
| Onderhoud binnen | Uitstekend |
| Wijk / Buurt | Hurk |
| Bedrijventerrein | DE HURK |
1 eenheid beschikbaar
1 eenheid beschikbaar
- Eenheid
- Oppervlakte
- Huurprijs
- Gebruik
Eenheid omschrijving
Locatie:
De te huur aangeboden bedrijfsruimte in dit bedrijfsgebouw aan de Hurksestraat 26D te Eindhoven, is gelegen op het gewilde bedrijventerrein De Hurk aan een drukke doorgaande weg. De Hurk is het grootste bedrijventerrein van Eindhoven. In de nabije omgeving zijn onder andere gevestigd; Plieger, Praxis, VDL, ZND Dakbedekking, Galvano, Boels Verhuur en Hilti Store Eindhoven.
Bereikbaarheid:
Bedrijventerrein De Hurk te Eindhoven is direct gelegen (middels 3 op- en afritten) aan de A2/N2, nabij de A67, A50 en de A58 en tevens aan de rondweg van Eindhoven. Middels diverse buslijnen en HOV-halte is het terrein ook met openbaar vervoer goed te bereiken vanaf Centraal Station Eindhoven, Eindhoven Airport en Veldhoven.
OBJECTGEGEVENS
Beschikbare oppervlakte voor de verhuur:
Circa 1.159 m² bedrijfsruimte - op de begane grond
Parkeergelegenheid:
Enkele parkeerplaatsen beschikbaar, gelegen op eigen parkeerterrein, aan de zijkant van het bedrijfspand aan de Hurksestraat 26D te Eindhoven, aanvullend gratis openbare parkeerplaatsen gelegen aan de openbare weg voor het bedrijfsgebouw.
Opleveringsniveau bedrijfsruimte:
• vrije hoogte van circa 7 meter
• vrije overspanning van circa 30 meter
• elektrisch bedienbare overheaddeuren
• krachtstroomaansluiting aanwezig
• verlichting middels opbouwarmaturen
• daglichttoetreding middels lichtstraten
• brandmeldinstallatie
• brandblusvoorzieningen
• verwarming middels direct gestookte heaters
Opleveringsniveau terrein:
• 100% bestraat met klinkers
Aanvaarding:
Per direct
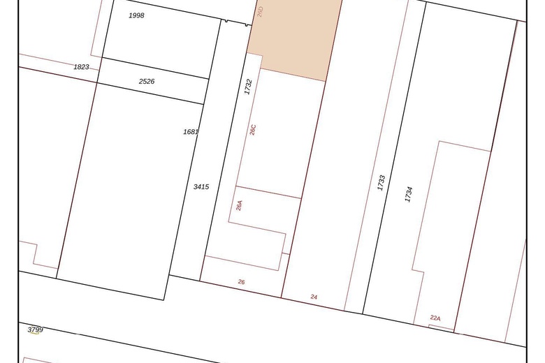
Kadastrale gegevens Hurksestraat 26D te Eindhoven:
Gemeente: Strijp
Sectie: D
Perceelnummer: 1732
Oppervlakte: 3.939 m² (gedeeltelijk perceel)
Bestemmingsplan:
Het bestemmingsplan van dit bedrijfsgebouw aan de Hurksestraat 26D te Eindhoven op Bedrijventerrein De Hurk is op te vragen via één van onze bedrijfsmakelaars bij Bossers & Fitters Bedrijfshuisvesting B.V. en/of via de website van het omgevingsloket.
Bouwjaar:
2018
HUURGEGEVENS
Aanvangshuurprijs:
€ 82.500,00 per jaar te vermeerderen met de geldende B.T.W.
Huurtermijn:
Vijf (5) jaren.
Verlengingstermijn:
Telkens met vijf (5) jaar.
Opzegtermijn:
Twaalf (12) maanden voorafgaand aan de expiratiedatum.
Huurindexering:
De huurprijs van dit bedrijfspand aan de Hurksestraat 26D te Eindhoven op Bedrijventerrein De Hurk zal jaarlijks worden geïndexeerd, voor het eerst één jaar na huuringangsdatum, op basis van het maandprijsindexcijfer volgens de consumentenprijsindex CPI-alle huishoudens (2015=100), dan wel meest recente tijdsbasis, gepubliceerd door het Centraal Bureau voor de statistiek (CBS).
Zekerheidsstelling:
Bankgarantie of waarborgsom ter grootte van drie (3) maanden huur inclusief B.T.W.
Huurbetaling:
Per maand vooruit te voldoen middels automatische incasso.
B.T.W.:
Indien huurder niet aan het “90% criterium” (aandeel belaste prestaties) voldoet, zal er van rechtswege sprake zijn van omzetbelasting vrijgestelde verhuur. Als dan wordt de overeengekomen kale huurprijs, exclusief omzetbelasting, zodanig verhoogd, dat het voor verhuurder ontstane financiële nadeel wordt gecompenseerd.
Huurcontract:
R.O.Z.-model, huurovereenkomst kantoorruimte en andere bedrijfsruimte in de zin van artikel 7:230a BW met de benodigde aanvullingen.
Meer informatie:
Wenst u meer informatie over deze beschikbare bedrijfsruimte welke te huur is in dit bedrijfsgebouw aan de Hurksestraat 26D te Eindhoven, neem dan vrijblijvend contact op met één van de bedrijfsmakelaars bij Bossers & Fitters Bedrijfshuisvesting B.V.
Onze bedrijfsmakelaar de heer Maurice Schäfer RM is van alle beschikbare informatie op de hoogte betreffende de verhuur van deze bedrijfsruimte in dit bedrijfspand aan de Hurksestraat 26D te Eindhoven.
| OPPERVLAKTE | 1.159 m2 |
| GEBRUIK | Bedrijfsruimte |
Bereikbaarheid
- Rooijakkersstraat 8 min. lopen
- Meerenakkerweg 8 min. lopen
- Bredalaan 9 min. lopen
- Hurksestraat 10 min. lopen