Kokstraat 37 13 - 604 m2 bedrijfsruimte te huur in Eefde
Kenmerken
| Huurprijs | € 100,- tot € 1.250,- /maand |
| Functie | Bedrijfsruimte |
2 eenheden beschikbaar
2 eenheden beschikbaar
- Eenheid
- Oppervlakte
- Huurprijs
- Gebruik
Eenheid omschrijving
Tijdelijke bedrijfsruimte te huur
In het bedrijfsgebouw aan de Kokstraat 37 in Eefde zijn diverse ruimtes beschikbaar voor tijdelijke verhuur. Het pand bevindt zich op een locatie die in de toekomst zal worden herontwikkeld, maar zolang de voorbereidingen daarvoor nog lopen, biedt dit een mooie kans voor ondernemers die op zoek zijn naar een flexibele en betaalbare werkruimte. Ook zeer geschikt voor startende ondernemers die met meerdere kosten worden geconfronteerd. Deze locatie is een uitkomst om je business de eerste boost te geven.
Ook het witte bijgebouw is beschikbaar voor tijdelijke huur. Deze heeft een oppervlakte van circa 50 m²
Dit knusse en sfeervolle bedrijfsobject is voorzien van:
- Eigen ingang
- Pantry
- CV-installatie
- Toilet
- Plafond met stijlvol lijstwerk
- Vloerafwerking
Achter een scheidingswand bevindt zich bovendien ruime opbergruimte, wat het pand geschikt maakt voor uiteenlopende doeleinden, zoals kantoor, atelier of kleine werkplaats.
Een uitstekende kans voor wie wil ondernemen op een prettige, goed bereikbare locatie in Eefde!
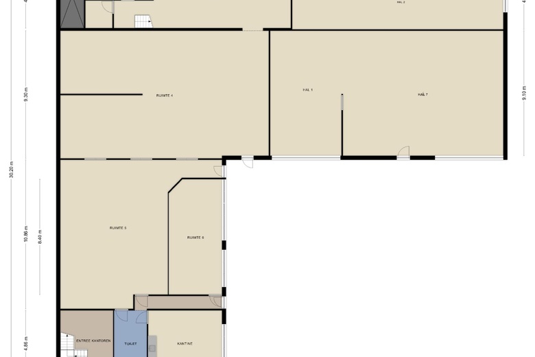
OPPERVLAKTE
- Begane grond:
Ruimte 1: ca. 47 m2 (deze is gekoppeld aan ruimte 7) VERHUURD
Ruimte 2: ca. 75 m2 VERHUURD
Ruimte 3: ca. 71 m2 VERHUURD
Ruimte 4: ca. 141 m2 TE HUUR
Ruimte 5+6: ca. 128 m2 TE HUUR
Ruimte 7: ca. 107 m2 (deze is gekoppeld aan ruimte 1) VERHUURD
Totaal ca. 604 m2 incl. kantine en toiletten (ca. 35 m2).
- 1e verdieping: ca. 99 m2
- Witte bijgebouw: ca. 50 m2 TE HUUR
OPLEVERINGSNIVEAU
In huidige staat, o.a. voorzien van:
Bedrijfsgebouw:
- gladde betonvloer/zachte vloerbedekking
- meterkast
- toilet (gezamenlijk gebruik)
- verlichting
- kantine (gezamenlijk gebruik)
- CV- installatie met radiatoren (muv. de hallen 1, 4+7)
HUURTERMIJN
Het betreft uitdrukkelijk TIJDELIJKE verhuur.
AANVANGSHUURPRIJS
- Ruimte 1 + 7: € 650,-- excl. btw per maand
- Ruimte 2 + 3: € 500,-- excl. btw per maand
- Ruimte 4: € 587,50 excl. btw per maand
- Ruimte 5 + 6: € 400,-- excl. btw per maand
- Witte bijgebouw: € 395,-- excl. btw. per maand
SERVICEKOSTEN / ENERGIE
Tussenmeter (tbv. elektra) aanwezig. Ook in separate gebouw (gas en elektra). Voorschotbedrag: pm.
INGANGSDATUM
Per direct/in overleg.
BETALINGSTERMIJN
Per maand vooruit.
BELASTE VERHUUR
Ja, uitgangspunt is met BTW belaste verhuur. Indien huurder geen prestaties verricht die met BTW belast zijn zal het financiële nadeel als gevolg van de onbelaste verhuur door middel van een opslag op de huurprijs worden gecompenseerd.
BANKGARANTIE
Ter grootte van 1 (bruto) maandhuur.
INDEXERING
Jaarlijks conform het prijsindexcijfer zoals gepubliceerd door het CBS (CPI).
HUUROVEREENKOMST
Model Raad voor Onroerende Zaken (ROZ) met bijbehorende Algemene Bepalingen
BESTEMMING
Bestemming: zie . Op deze locatie is het bestemmingsplan Kern Eefde 2010 van toepassing waarin de bestemming Bedrijf hieraan wordt toegekend.
VOORBEHOUD
Aan deze informatie kunnen geen rechten worden ontleend en deze informatie kan niet als aanbieding of offerte worden beschouwd. Indien u een aanbieding wenst, zal de makelaar deze graag - na goedkeuring door de opdrachtgever - op basis van specifieke gegevens verzorgen.
Eenheid omschrijving
Tijdelijke bedrijfsruimte te huur
In het bedrijfsgebouw aan de Kokstraat 37 in Eefde zijn diverse ruimtes beschikbaar voor tijdelijke verhuur. Het pand bevindt zich op een locatie die in de toekomst zal worden herontwikkeld, maar zolang de voorbereidingen daarvoor nog lopen, biedt dit een mooie kans voor ondernemers die op zoek zijn naar een flexibele en betaalbare werkruimte. Ook zeer geschikt voor startende ondernemers die met meerdere kosten worden geconfronteerd. Deze locatie is een uitkomst om je business de eerste boost te geven.
Ook het witte bijgebouw is beschikbaar voor tijdelijke huur. Deze heeft een oppervlakte van circa 50 m²
Dit knusse en sfeervolle bedrijfsobject is voorzien van:
- Eigen ingang
- Pantry
- CV-installatie
- Toilet
- Plafond met stijlvol lijstwerk
- Vloerafwerking
Achter een scheidingswand bevindt zich bovendien ruime opbergruimte, wat het pand geschikt maakt voor uiteenlopende doeleinden, zoals kantoor, atelier of kleine werkplaats.
Een uitstekende kans voor wie wil ondernemen op een prettige, goed bereikbare locatie in Eefde!
OPPERVLAKTE
- Begane grond:
Ruimte 1: ca. 47 m2 (deze is gekoppeld aan ruimte 7) VERHUURD
Ruimte 2: ca. 75 m2 VERHUURD
Ruimte 3: ca. 71 m2 VERHUURD
Ruimte 4: ca. 141 m2 TE HUUR
Ruimte 5+6: ca. 128 m2 TE HUUR
Ruimte 7: ca. 107 m2 (deze is gekoppeld aan ruimte 1) VERHUURD
Totaal ca. 604 m2 incl. kantine en toiletten (ca. 35 m2).
- 1e verdieping: ca. 99 m2
- Witte bijgebouw: ca. 50 m2 TE HUUR
OPLEVERINGSNIVEAU
In huidige staat, o.a. voorzien van:
Bedrijfsgebouw:
- gladde betonvloer/zachte vloerbedekking
- meterkast
- toilet (gezamenlijk gebruik)
- verlichting
- kantine (gezamenlijk gebruik)
- CV- installatie met radiatoren (muv. de hallen 1, 4+7)
HUURTERMIJN
Het betreft uitdrukkelijk TIJDELIJKE verhuur.
AANVANGSHUURPRIJS
- Ruimte 1 + 7: € 650,-- excl. btw per maand
- Ruimte 2 + 3: € 500,-- excl. btw per maand
- Ruimte 4: € 587,50 excl. btw per maand
- Ruimte 5 + 6: € 400,-- excl. btw per maand
- Witte bijgebouw: € 395,-- excl. btw. per maand
SERVICEKOSTEN / ENERGIE
Tussenmeter (tbv. elektra) aanwezig. Ook in separate gebouw (gas en elektra). Voorschotbedrag: pm.
INGANGSDATUM
Per direct/in overleg.
BETALINGSTERMIJN
Per maand vooruit.
BELASTE VERHUUR
Ja, uitgangspunt is met BTW belaste verhuur. Indien huurder geen prestaties verricht die met BTW belast zijn zal het financiële nadeel als gevolg van de onbelaste verhuur door middel van een opslag op de huurprijs worden gecompenseerd.
BANKGARANTIE
Ter grootte van 1 (bruto) maandhuur.
INDEXERING
Jaarlijks conform het prijsindexcijfer zoals gepubliceerd door het CBS (CPI).
HUUROVEREENKOMST
Model Raad voor Onroerende Zaken (ROZ) met bijbehorende Algemene Bepalingen
BESTEMMING
Bestemming: zie . Op deze locatie is het bestemmingsplan Kern Eefde 2010 van toepassing waarin de bestemming Bedrijf hieraan wordt toegekend.
VOORBEHOUD
Aan deze informatie kunnen geen rechten worden ontleend en deze informatie kan niet als aanbieding of offerte worden beschouwd. Indien u een aanbieding wenst, zal de makelaar deze graag - na goedkeuring door de opdrachtgever - op basis van specifieke gegevens verzorgen.
| OPPERVLAKTE | Vanaf 13 m2 tot 604 m2 |
| GEBRUIK | Bedrijfsruimte |
| OPPERVLAKTE | 99 m2 |
| GEBRUIK | Kantoorruimte |
Bereikbaarheid
- Het Spijk 5 min. lopen
- Rustoordlaan 6 min. lopen
- Het Hart 9 min. lopen