Koningshoek 19 A 303 m2 bedrijfsruimte te huur in Lage Mierde
Kenmerken
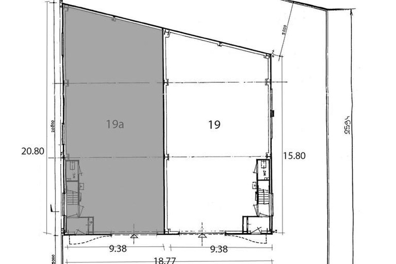
| Bruto vloeroppervlakte | 308 m² |
| Perceeloppervlakte | 183 m² |
| Functie | Bedrijfsruimte |
| Bedrijventerrein | KONINGSHOEK |
1 eenheid beschikbaar
1 eenheid beschikbaar
- Eenheid
- Oppervlakte
- Huurprijs
- Gebruik
- 1
- 303 m2
- € 40,59 m²/jaar
- Bedrijfsruimte
| OPPERVLAKTE | 303 m2 |
| HUURPRIJS | € 40,59 m²/jaar |
| GEBRUIK | Bedrijfsruimte |
Omschrijving
Omschrijving
Prachtige bedrijfshal met moderne uitstraling, gelegen op bedrijvenpark “Koningshoek”!
De hal is geschikt voor opslag en/of montagewerkzaamheden.
Geen las-, metaal-, of productiewerkzaamheden.
Indien nodig mag huurder in overleg met verhuurder een kantoorruimte realiseren op de verdieping.
Oppervlakte:
Ca. 183 m² begane grond
Ca. 120 m² verdieping (betonvloer)
Algemeen:
- Representatieve bedrijfshal
- Zelfstandige hal met eigen adres
- Goed geïsoleerd en moderne uitstraling!
- Uitgevoerd met hoge ramen (= inbraakveilig)
- Rondom verlicht
- Verhard buitenterrein aanwezig omheind met fraai hekwerk
- Uitgevoerd met overheaddeuren en betegeld toilet
- Vloer-, muur- en dakisolatie toegepast
- Internetaansluiting aanwezig
- Ideale ruimte voor kleine ondernemer!
Huurcondities:
- Huurbetaling per maand vooruit
- Huurtermijn is minimaal twee jaar
- Er wordt geopteerd voor een met BTW belaste verhuur
- Als zekerheidstelling wordt een bankgarantie/waarborgsom gevraagd ter grootte van 3 maanden huur exclusief BTW
- Huurcontract conform model ROZ
- Alles onder voorbehoud goedkeuring opdrachtgever
Bereikbaarheid
- Hoogemierdseweg 3 min. lopen
- Dorpsplein 8 min. lopen