Lemelerbergweg 60 137 - 421 m2 bedrijfsruimte te huur in Amsterdam
Kenmerken
| Huurprijs | € 125 m²/jaar |
| Functie | Bedrijfsruimte |
| Wijk / Buurt | Amstel III/Bullewijk |
| Bedrijventerrein | Amstel III Bedrijvenzone |
2 eenheden beschikbaar
2 eenheden beschikbaar
- Eenheid
- Oppervlakte
- Huurprijs
- Gebruik
Eenheid omschrijving
Kerngegevens:
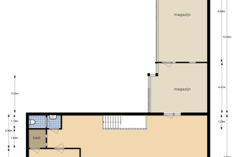
Bedrijfsunit van totaal circa 558 m², verdeeld over:
- 356 m² bedrijfsruimte op de begane grond
- 137 m² kantoorruimte op de verdieping
- 65 m² entresol
Goed bereikbaar, gelegen tussen de A1, A2 en A9.
4 parkeerplaatsen voor de unit.
Object:
De bedrijfsunit maakt onderdeel uit van Amstel Gateway, gelegen op Amstel III in Amsterdam Zuidoost. Het complex biedt onderdak aan een grote verscheidenheid aan huurders. Amstel Gateway wordt permanent beveiligd door camera beveiliging en een surveillance dienst.
Bereikbaarheid:
Amstel Gateway is strategisch gelegen in Amsterdam Zuidoost tussen de snelwegen A1, A2 en A9, op slechts 200 meter van de afslag S111 (afslag IKEA en AMC). Schiphol is binnen 15 autominuten te bereiken. Per openbaar vervoer is het terrein zeer goed bereikbaar: NS Intercity station Amsterdam Bijlmer Arena is 10 minuten lopen, Metrostation Bullewijk binnen 5 minuten en bushalte Holterbergweg (171, 255, 300, 356 vanaf Amsterdam Bijlmer Arena) is op 1 minuut loopafstand gelegen. Het centrum van Amsterdam bereikt u binnen 10 minuten met de auto of openbaar vervoer.
Parkeren:
De unit beschikt over 4 parkeerplaatsen.
Opleveringsniveau:
- 1 overheaddeur
- lichtstraat in de bedrijfsruimte
- vrije hoogte bedrijfsruimte ca. 7 m
- bedrijfsruimte voorzien van heater
- sanitair begane grond en eerste verdieping
- pantry
- kantoorruimte met centrale verwarming
Momenteel is de unit nog in gebruik bij huurder. Bij de foto's hebben wij daarom foto's van een vergelijkbare hal opgenomen, in lege staat.
Vloeroppervlakte:
Bedrijfsruimte van totaal circa 558 m², verdeeld over:
- 356 m² bedrijfsruimte op de begane grond
- 137 m² kantoorruimte op de verdieping
- 65 m² entresol
Beschikbaar per:
Per direct.
Huurprijs:
€ 125,- per m² per jaar te vermeerderen met BTW en servicekosten.
Voor de berekening van de jaarhuur worden de m²’s van de entresolvloer niet meegenomen. De jaarhuur komt op € 61.625,- per jaar (€ 5.135,42 per maand) te vermeerderen met BTW en servicekosten.
Servicekosten:
€ 5,- per m² per jaar te vermeerderen met BTW voor diverse leveringen en diensten.
Huurprijsindexatie:
Jaarlijks op basis van de consumentenprijsindex, reeks alle huishoudens (2015 = 100) zoals gepubliceerd door het Centraal Bureau voor de Statistiek.
Huurtermijn:
Een eerste huurtermijn tot en met 30 juni 2029. Kortere termijnen bespreekbaar.
Huurbetaling:
Per maand vooruit.
Bankgarantie:
Ter grootte van minimaal 3 maanden huur, te vermeerderen met servicekosten en de wettelijke verschuldigde BTW.
Bestemming:
De locatie valt onder het bestemmingsplan Amstel III West en is bestemd voor bedrijven die vallen in categorie 1 t/m 3.1
NB: kerkelijke gemeenschappen en evenementen locaties zijn niet toegestaan.
De vermelde informatie is van algemene aard.
Aan deze informatie kunnen geen rechten worden ontleend.
Eenheid omschrijving
Kerngegevens:
Bedrijfsunit van totaal circa 558 m², verdeeld over:
- 356 m² bedrijfsruimte op de begane grond
- 137 m² kantoorruimte op de verdieping
- 65 m² entresol
Goed bereikbaar, gelegen tussen de A1, A2 en A9.
4 parkeerplaatsen voor de unit.
Object:
De bedrijfsunit maakt onderdeel uit van Amstel Gateway, gelegen op Amstel III in Amsterdam Zuidoost. Het complex biedt onderdak aan een grote verscheidenheid aan huurders. Amstel Gateway wordt permanent beveiligd door camera beveiliging en een surveillance dienst.
Bereikbaarheid:
Amstel Gateway is strategisch gelegen in Amsterdam Zuidoost tussen de snelwegen A1, A2 en A9, op slechts 200 meter van de afslag S111 (afslag IKEA en AMC). Schiphol is binnen 15 autominuten te bereiken. Per openbaar vervoer is het terrein zeer goed bereikbaar: NS Intercity station Amsterdam Bijlmer Arena is 10 minuten lopen, Metrostation Bullewijk binnen 5 minuten en bushalte Holterbergweg (171, 255, 300, 356 vanaf Amsterdam Bijlmer Arena) is op 1 minuut loopafstand gelegen. Het centrum van Amsterdam bereikt u binnen 10 minuten met de auto of openbaar vervoer.
Parkeren:
De unit beschikt over 4 parkeerplaatsen.
Opleveringsniveau:
- 1 overheaddeur
- lichtstraat in de bedrijfsruimte
- vrije hoogte bedrijfsruimte ca. 7 m
- bedrijfsruimte voorzien van heater
- sanitair begane grond en eerste verdieping
- pantry
- kantoorruimte met centrale verwarming
Momenteel is de unit nog in gebruik bij huurder. Bij de foto's hebben wij daarom foto's van een vergelijkbare hal opgenomen, in lege staat.
Vloeroppervlakte:
Bedrijfsruimte van totaal circa 558 m², verdeeld over:
- 356 m² bedrijfsruimte op de begane grond
- 137 m² kantoorruimte op de verdieping
- 65 m² entresol
Beschikbaar per:
Per direct.
Huurprijs:
€ 125,- per m² per jaar te vermeerderen met BTW en servicekosten.
Voor de berekening van de jaarhuur worden de m²’s van de entresolvloer niet meegenomen. De jaarhuur komt op € 61.625,- per jaar (€ 5.135,42 per maand) te vermeerderen met BTW en servicekosten.
Servicekosten:
€ 5,- per m² per jaar te vermeerderen met BTW voor diverse leveringen en diensten.
Huurprijsindexatie:
Jaarlijks op basis van de consumentenprijsindex, reeks alle huishoudens (2015 = 100) zoals gepubliceerd door het Centraal Bureau voor de Statistiek.
Huurtermijn:
Een eerste huurtermijn tot en met 30 juni 2029. Kortere termijnen bespreekbaar.
Huurbetaling:
Per maand vooruit.
Bankgarantie:
Ter grootte van minimaal 3 maanden huur, te vermeerderen met servicekosten en de wettelijke verschuldigde BTW.
Bestemming:
De locatie valt onder het bestemmingsplan Amstel III West en is bestemd voor bedrijven die vallen in categorie 1 t/m 3.1
NB: kerkelijke gemeenschappen en evenementen locaties zijn niet toegestaan.
De vermelde informatie is van algemene aard.
Aan deze informatie kunnen geen rechten worden ontleend.
| OPPERVLAKTE | 421 m2 |
| GEBRUIK | Bedrijfsruimte |
| OPPERVLAKTE | 137 m2 |
| GEBRUIK | Kantoorruimte |
Omschrijving
Omschrijving
Kerngegevens:
Bedrijfsunit van totaal circa 558 m², verdeeld over:
- 356 m² bedrijfsruimte op de begane grond
- 137 m² kantoorruimte op de verdieping
- 65 m² entresol
Goed bereikbaar, gelegen tussen de A1, A2 en A9.
4 parkeerplaatsen voor de unit.
Object:
De bedrijfsunit maakt onderdeel uit van Amstel Gateway, gelegen op Amstel III in Amsterdam Zuidoost. Het complex biedt onderdak aan een grote verscheidenheid aan huurders. Amstel Gateway wordt permanent beveiligd door camera beveiliging en een surveillance dienst.
Bereikbaarheid:
Amstel Gateway is strategisch gelegen in Amsterdam Zuidoost tussen de snelwegen A1, A2 en A9, op slechts 200 meter van de afslag S111 (afslag IKEA en AMC). Schiphol is binnen 15 autominuten te bereiken. Per openbaar vervoer is het terrein zeer goed bereikbaar: NS Intercity station Amsterdam Bijlmer Arena is 10 minuten lopen, Metrostation Bullewijk binnen 5 minuten en bushalte Holterbergweg (171, 255, 300, 356 vanaf Amsterdam Bijlmer Arena) is op 1 minuut loopafstand gelegen. Het centrum van Amsterdam bereikt u binnen 10 minuten met de auto of openbaar vervoer.
Parkeren:
De unit beschikt over 4 parkeerplaatsen.
Opleveringsniveau:
- 1 overheaddeur
- lichtstraat in de bedrijfsruimte
- vrije hoogte bedrijfsruimte ca. 7 m
- bedrijfsruimte voorzien van heater
- sanitair begane grond en eerste verdieping
- pantry
- kantoorruimte met centrale verwarming
Momenteel is de unit nog in gebruik bij huurder. Bij de foto's hebben wij daarom foto's van een vergelijkbare hal opgenomen, in lege staat.
Vloeroppervlakte:
Bedrijfsruimte van totaal circa 558 m², verdeeld over:
- 356 m² bedrijfsruimte op de begane grond
- 137 m² kantoorruimte op de verdieping
- 65 m² entresol
Beschikbaar per:
Per direct.
Huurprijs:
€ 125,- per m² per jaar te vermeerderen met BTW en servicekosten.
Voor de berekening van de jaarhuur worden de m²’s van de entresolvloer niet meegenomen. De jaarhuur komt op € 61.625,- per jaar (€ 5.135,42 per maand) te vermeerderen met BTW en servicekosten.
Servicekosten:
€ 5,- per m² per jaar te vermeerderen met BTW voor diverse leveringen en diensten.
Huurprijsindexatie:
Jaarlijks op basis van de consumentenprijsindex, reeks alle huishoudens (2015 = 100) zoals gepubliceerd door het Centraal Bureau voor de Statistiek.
Huurtermijn:
Een eerste huurtermijn tot en met 30 juni 2029. Kortere termijnen bespreekbaar.
Huurbetaling:
Per maand vooruit.
Bankgarantie:
Ter grootte van minimaal 3 maanden huur, te vermeerderen met servicekosten en de wettelijke verschuldigde BTW.
Bestemming:
De locatie valt onder het bestemmingsplan Amstel III West en is bestemd voor bedrijven die vallen in categorie 1 t/m 3.1
NB: kerkelijke gemeenschappen en evenementen locaties zijn niet toegestaan.
De vermelde informatie is van algemene aard.
Aan deze informatie kunnen geen rechten worden ontleend.
Bereikbaarheid
- Holterbergweg 6 min. lopen
- Gebouw Atlas 6 min. lopen
- Karspeldreef 8 min. lopen
- Laarderhoogtweg 8 min. lopen