Lorentzstraat 85 19 - 297 m2 bedrijfsruimte te huur in Bleiswijk
Kenmerken
| Huurprijs | € 3.095 /maand |
| Functie | Bedrijfsruimte |
| Onderhoud buiten | Uitstekend |
| Onderhoud binnen | Goed |
| Wijk / Buurt | De Hoefslag |
| Bedrijventerrein | De Hoefslag |
2 eenheden beschikbaar
2 eenheden beschikbaar
- Eenheid
- Oppervlakte
- Huurprijs
- Gebruik
Eenheid omschrijving
Immobilia presenteert met trost een robuuste bedrijfshal gelegen op bedrijventerrein "de Hoefslag" in Bleiswijk. Het pand meet ca. 316m2 (BVO) verdeeld over een ruime bedrijfshal met entresol op de begane grond en een kantoorruimte met bedrijfshal/magazijn op de eerste verdieping. Aan de voorzijde van het pand tref je een stuk eigen terrein met een drietal eigen parkeerplaatsen.
Het bedrijventerrein is uitstekend bereikbaar vanaf de A12 (Den Haag-Utrecht) en de N209 tussen Zoetermeer en Rotterdam.
AUTOBEDRIJVEN/GARAGE ZIJN NIET TOEGESTAAN.
Begane grond:
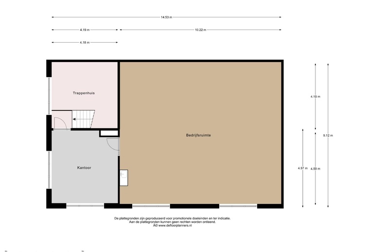
Entree in de ruime ontvangsthal van maar liefst 7 meter hoog, met toegang tot de bedrijfshal, het toilet, de trapkast en via de trap tot de kantoorruimte en de bedrijfshal/magazijn. De bedrijfshal is ca. 110m2 (VVO) en heeft door de hoekligging veel lichtinval door de ramen aan de zijkant. De uitvoering bestaat uit een heater, uitstortgootsteen, krachtstroom aansluiting en een elektrische overheaddeur van ca. 4 meter breed en 4 meter hoog. De entresol in de ruimte meet ca. 28m2 (VVO) en heeft een draagvermogen van 350kg/m2.
Via de ontvangst hal bereik je via de betonnen trap de eerste verdieping.
1e Verdieping:
Binnenkomst in de lichte kantoorruimte van ca. 19m2 (VVO). Door de hoekligging is er extra veel lichtinval. Voorzien van een airco-unit, inbouwarmaturen, diverse stopcontacten en een radiator. Middels een deur toegang tot de bedrijfshal van ca. 28m2 (VVO) met raampartij en tevens een lichtstraat. Perfecte ruimte te gebruiken voor opslag. Middels een gat in de betonnen vloer is het mogelijk om goederen naar boven te brengen. Gebruik je de ruimte liever als kantoorruimte is dat uiteraard ook mogelijk. De ruimte is uitgevoerd met een pantry en een heater.
Bestemming:
De voor 'Bedrijventerrein' aangewezen gronden zijn bestemd voor ter plaatse van de aanduiding 'bedrijf tot en met categorie 3.1': bedrijven tot en met milieucategorie 3.1 als opgenomen in de Staat van bedrijfsactiviteiten, als onderdeel van deze regels.
Bijzonderheden:
- Elektrisch bedienbare overheaddeur en aparte toegang via de hal.
- Toilet aanwezig.
- Gas heater op de begane grond en eerste verdieping voor verwarming.
- Drie (3) eigen parkeerplaatsen.
- Voldoende krachtstroom aanwezig.
- Stroomaansluiting is drie keer 35 ampère.
Vloerbelasting:
- Begane grond: 1.500 kg/m2
- Entresol: 350 kg/m2
- 1e Verdieping: 400 kg/m2
Huurspecificaties:
Huurprijs:
€ 37.140,- per jaar excl. btw en excl. servicekosten.
Huurtermijn:
Minimaal 24 maanden.
Huuringangsdatum:
Beschikbaar per direct.
Huurprijsherziening:
Jaarlijks op basis van de CPI-index van het CBS
Huurbetaling:
Per maand vooruit.
Nutsvoorzieningen:
Huurprijs excl. G/W/L
Servicekosten:
€ 60,- per maand excl. BTW.
Bankgarantie/waarborgsom:
Drie maanden huur excl. BTW
Huurovereenkomst:
Conform model ROZ.
BTW:
Verhuurder wenst te opteren voor BTW-belaste huur en verhuur. Ingeval huurder de BTW niet kan verrekenen zal de huurprijs worden verhoogd ter compensatie van de gevolgen van het vervallen van de mogelijkheid om te opteren voor BTW-belaste huur.
Eenheid omschrijving
Immobilia presenteert met trost een robuuste bedrijfshal gelegen op bedrijventerrein "de Hoefslag" in Bleiswijk. Het pand meet ca. 316m2 (BVO) verdeeld over een ruime bedrijfshal met entresol op de begane grond en een kantoorruimte met bedrijfshal/magazijn op de eerste verdieping. Aan de voorzijde van het pand tref je een stuk eigen terrein met een drietal eigen parkeerplaatsen.
Het bedrijventerrein is uitstekend bereikbaar vanaf de A12 (Den Haag-Utrecht) en de N209 tussen Zoetermeer en Rotterdam.
AUTOBEDRIJVEN/GARAGE ZIJN NIET TOEGESTAAN.
Begane grond:
Entree in de ruime ontvangsthal van maar liefst 7 meter hoog, met toegang tot de bedrijfshal, het toilet, de trapkast en via de trap tot de kantoorruimte en de bedrijfshal/magazijn. De bedrijfshal is ca. 110m2 (VVO) en heeft door de hoekligging veel lichtinval door de ramen aan de zijkant. De uitvoering bestaat uit een heater, uitstortgootsteen, krachtstroom aansluiting en een elektrische overheaddeur van ca. 4 meter breed en 4 meter hoog. De entresol in de ruimte meet ca. 28m2 (VVO) en heeft een draagvermogen van 350kg/m2.
Via de ontvangst hal bereik je via de betonnen trap de eerste verdieping.
1e Verdieping:
Binnenkomst in de lichte kantoorruimte van ca. 19m2 (VVO). Door de hoekligging is er extra veel lichtinval. Voorzien van een airco-unit, inbouwarmaturen, diverse stopcontacten en een radiator. Middels een deur toegang tot de bedrijfshal van ca. 28m2 (VVO) met raampartij en tevens een lichtstraat. Perfecte ruimte te gebruiken voor opslag. Middels een gat in de betonnen vloer is het mogelijk om goederen naar boven te brengen. Gebruik je de ruimte liever als kantoorruimte is dat uiteraard ook mogelijk. De ruimte is uitgevoerd met een pantry en een heater.
Bestemming:
De voor 'Bedrijventerrein' aangewezen gronden zijn bestemd voor ter plaatse van de aanduiding 'bedrijf tot en met categorie 3.1': bedrijven tot en met milieucategorie 3.1 als opgenomen in de Staat van bedrijfsactiviteiten, als onderdeel van deze regels.
Bijzonderheden:
- Elektrisch bedienbare overheaddeur en aparte toegang via de hal.
- Toilet aanwezig.
- Gas heater op de begane grond en eerste verdieping voor verwarming.
- Drie (3) eigen parkeerplaatsen.
- Voldoende krachtstroom aanwezig.
- Stroomaansluiting is drie keer 35 ampère.
Vloerbelasting:
- Begane grond: 1.500 kg/m2
- Entresol: 350 kg/m2
- 1e Verdieping: 400 kg/m2
Huurspecificaties:
Huurprijs:
€ 37.140,- per jaar excl. btw en excl. servicekosten.
Huurtermijn:
Minimaal 24 maanden.
Huuringangsdatum:
Beschikbaar per direct.
Huurprijsherziening:
Jaarlijks op basis van de CPI-index van het CBS
Huurbetaling:
Per maand vooruit.
Nutsvoorzieningen:
Huurprijs excl. G/W/L
Servicekosten:
€ 60,- per maand excl. BTW.
Bankgarantie/waarborgsom:
Drie maanden huur excl. BTW
Huurovereenkomst:
Conform model ROZ.
BTW:
Verhuurder wenst te opteren voor BTW-belaste huur en verhuur. Ingeval huurder de BTW niet kan verrekenen zal de huurprijs worden verhoogd ter compensatie van de gevolgen van het vervallen van de mogelijkheid om te opteren voor BTW-belaste huur.
| OPPERVLAKTE | 297 m2 |
| GEBRUIK | Bedrijfsruimte |
| OPPERVLAKTE | 19 m2 |
| GEBRUIK | Kantoorruimte |
Omschrijving
Omschrijving
Immobilia presenteert met trost een robuuste bedrijfshal gelegen op bedrijventerrein "de Hoefslag" in Bleiswijk. Het pand meet ca. 316m2 (BVO) verdeeld over een ruime bedrijfshal met entresol op de begane grond en een kantoorruimte met bedrijfshal/magazijn op de eerste verdieping. Aan de voorzijde van het pand tref je een stuk eigen terrein met een drietal eigen parkeerplaatsen.
Het bedrijventerrein is uitstekend bereikbaar vanaf de A12 (Den Haag-Utrecht) en de N209 tussen Zoetermeer en Rotterdam.
AUTOBEDRIJVEN/GARAGE ZIJN NIET TOEGESTAAN.
Begane grond:
Entree in de ruime ontvangsthal van maar liefst 7 meter hoog, met toegang tot de bedrijfshal, het toilet, de trapkast en via de trap tot de kantoorruimte en de bedrijfshal/magazijn. De bedrijfshal is ca. 110m2 (VVO) en heeft door de hoekligging veel lichtinval door de ramen aan de zijkant. De uitvoering bestaat uit een heater, uitstortgootsteen, krachtstroom aansluiting en een elektrische overheaddeur van ca. 4 meter breed en 4 meter hoog. De entresol in de ruimte meet ca. 28m2 (VVO) en heeft een draagvermogen van 350kg/m2.
Via de ontvangst hal bereik je via de betonnen trap de eerste verdieping.
1e Verdieping:
Binnenkomst in de lichte kantoorruimte van ca. 19m2 (VVO). Door de hoekligging is er extra veel lichtinval. Voorzien van een airco-unit, inbouwarmaturen, diverse stopcontacten en een radiator. Middels een deur toegang tot de bedrijfshal van ca. 28m2 (VVO) met raampartij en tevens een lichtstraat. Perfecte ruimte te gebruiken voor opslag. Middels een gat in de betonnen vloer is het mogelijk om goederen naar boven te brengen. Gebruik je de ruimte liever als kantoorruimte is dat uiteraard ook mogelijk. De ruimte is uitgevoerd met een pantry en een heater.
Bestemming:
De voor 'Bedrijventerrein' aangewezen gronden zijn bestemd voor ter plaatse van de aanduiding 'bedrijf tot en met categorie 3.1': bedrijven tot en met milieucategorie 3.1 als opgenomen in de Staat van bedrijfsactiviteiten, als onderdeel van deze regels.
Bijzonderheden:
- Elektrisch bedienbare overheaddeur en aparte toegang via de hal.
- Toilet aanwezig.
- Gas heater op de begane grond en eerste verdieping voor verwarming.
- Drie (3) eigen parkeerplaatsen.
- Voldoende krachtstroom aanwezig.
- Stroomaansluiting is drie keer 35 ampère.
Vloerbelasting:
- Begane grond: 1.500 kg/m2
- Entresol: 350 kg/m2
- 1e Verdieping: 400 kg/m2
Huurspecificaties:
Huurprijs:
€ 37.140,- per jaar excl. btw en excl. servicekosten.
Huurtermijn:
Minimaal 24 maanden.
Huuringangsdatum:
Beschikbaar per direct.
Huurprijsherziening:
Jaarlijks op basis van de CPI-index van het CBS
Huurbetaling:
Per maand vooruit.
Nutsvoorzieningen:
Huurprijs excl. G/W/L
Servicekosten:
€ 60,- per maand excl. BTW.
Bankgarantie/waarborgsom:
Drie maanden huur excl. BTW
Huurovereenkomst:
Conform model ROZ.
BTW:
Verhuurder wenst te opteren voor BTW-belaste huur en verhuur. Ingeval huurder de BTW niet kan verrekenen zal de huurprijs worden verhoogd ter compensatie van de gevolgen van het vervallen van de mogelijkheid om te opteren voor BTW-belaste huur.
Bereikbaarheid
- Heulslootweg 6 min. lopen
- Windmolen 7 min. lopen
- Edisonlaan 8 min. lopen
- Gruttostraat 10 min. lopen