Resultaten laden ...

Nieuw-Zeelandweg 15 B 565 m2 bedrijfsruimte te koop in Amsterdam

Kenmerken

Prijs € 695.000 k.k.
Functie Bedrijfsruimte
Onderhoud buiten Goed
Onderhoud binnen Goed
Wijk / Buurt Westelijk Havengebied
Bedrijventerrein Amerikahaven Zuidoost (Gemengd)

Kerngegevens:

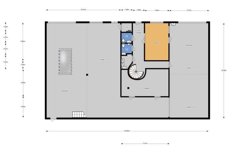
Moderne dubbele bedrijfsunit (huisnr. 15B+15C, zonder scheidingswand) in een bedrijfsverzamelgebouw bestaat uit:

349 m² BVO bedrijfsruimte op de begane grond (328 m² VVO) en

216 m² BVO kantoorruimte op de verdieping (199 m² VVO)

4 parkeerplaatsen met laad-en losmogelijkheden voor de 2 overheaddeuren

Object:

Dit bedrijfspand is qua formaat uniek aangezien het vanaf de bouw twee aaneengesloten panden betreft zonder scheidingswand. Dus bedrijfsruimte beneden met twee overheaddeuren en op de verdieping fraaie kantoorruimte met centrale opgang in het midden. Gelegen in het Westelijk Havengebied nabij de op- en afrit van snelweg A5 (Hornbach).

Bereikbaarheid:

Het object is goed bereikbaar met de auto via de ring A10 (afslag S102 Basisweg) of A5 afslag ter hoogte van de Hornbach. Met het openbaar vervoer is het object bereikbaar met buslijn 382 vanaf NS Station Sloterdijk.

Parkeren:

Per unit 1 parkeerplaats en volgens het huishoudelijk reglement per unit 1 parkeerplaats op de algemene parkeerplaats (langs het water) welke maximaal 3 weken aaneengesloten gebruikt mag worden.

Officieel: 4 parkeerplekken, in de praktijk: 6-8 parkeerplekken.

Opleveringsniveau:

De unit wordt opgeleverd in de huidige staat en is onder meer voorzien van:

- vrije hoogte circa 6 meter

- 2 overheaddeuren

- krachtstroom 3 x 80 ampère

- vloerbelasting: circa 1.500 kg/ m²

Kantoorruimte

- moderne scheidingswanden met glas

- hoogwaardige vloer

- kabelgoten

- pantry

- sanitaire voorzieningen

- verwarming d.m.v. radiatoren/convectoren

- te openen ramen

- airco

Beschikbaar:

In overleg, doch op korte termijn mogelijk.

Koopprijs:

€ 695.000,- k.k. (vrij van BTW)

Kadastrale gegevens:

Gemeente Sloten, sectie K, nummer 3058 A-2 + A-3.

Kadastrale stukken op aanvraag verkrijgbaar.

Meetrapport aanwezig.

Zakelijk recht:

Tijdelijk recht van erfpacht, lopende tot en met 31 december 2048. De algemene voorwaarden voor tijdelijke erfpacht in het Havengebied 1992 vastgesteld door de Gemeenteraad van Amsterdam zijn van toepassing.

Het object is bestemd in de uitgifte akte van erfpacht om te worden gebruikt voor het vestigen en exploiteren van een bedrijvenpark voor niet stofgevoelige bedrijven ten behoeve van handel, lichte industrie, transport en opslag, bouw en niet-zakelijke dienstverlening.

Bijzonderheden:

Voor de verkoop is toestemming nodig van de Haven Amsterdam.

VVE:

Koper wordt lid van de vve ‘Hempoort’.

Bijzonderheden:

1. Maximaal 30% van het bruto vloeroppervlak mag worden ingericht als kantoor of kantoorachtige ruimte ten behoeve van het in het perceel gevestigde bedrijf. Detailhandel is niet toegestaan.

2. Voor vestiging in het object is toestemming benodigd van Haven Amsterdam.

De vermelde informatie is van algemene aard.

Aan deze informatie kunnen geen rechten worden ontleend.

Bereikbaarheid

Tram, bus, metro
  • Maltaweg 2 min. lopen

Bijlagen

De aanbieder van dit object heeft een PDF Brochure beschikbaar gesteld.

Vraag brochure aan