Nijverheidsweg 1
107 - 443 m2 bedrijfsruimte te huur in Hengelo
Kenmerken
| Huurprijs | € 42.500 /jaar |
| Functie | Bedrijfsruimte |
| Wijk / Buurt | Verspreide huizen Dunsborg |
| Bedrijventerrein | Winkelskamp |
2 eenheden beschikbaar
2 eenheden beschikbaar
- Eenheid
- Oppervlakte
- Huurprijs
- Gebruik
- 1
- 443 m2
- Bedrijfsruimte
- 2
- 107 m2
- Kantoorruimte
| OPPERVLAKTE | 443 m2 |
| GEBRUIK | Bedrijfsruimte |
| OPPERVLAKTE | 107 m2 |
| GEBRUIK | Kantoorruimte |
Omschrijving
Omschrijving
Zeer nette bedrijfshal met kantoorruimte op het bedrijventerrein van Hengelo Gelderland.
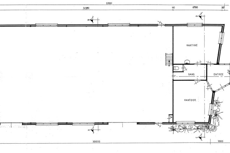
De functionele hal met een oppervlakte van ca. 350 m² is bereikbaar via een tweetal overheaddeuren aan de linkerzijde en een toegangsdeur. De vrije hoogte is ca. 5,5 m. Aan de voorzijde is er kantoorruimte gesitueerd op de begane grond en zo ook op de verdieping, die inclusief hal en gang samen een grootte van ca. 160 m² hebben.De linkerzijkant (de kant van de overheaddeuren) biedt een buitenruimte van ca. 8 meter breed, waarbij voor 5 meter een additioneel recht van overpad geldt. Aan de rechterzijde is de buitenruimte ca. 3 m breed en aan de achterzijde van de hal is deze weer ca. 8 meter breed. De hal is dus rondom prima bereikbaar. Verder is er parkeergelegenheid midden voor de deur.
OPPERVLAKTE
Het totale perceel is ca. 1200 m², bedrijfshal 350 m2 en kantoren ca. 160 m2. PARKEREN
6 gemarkeerde parkeerplaatsen voor de deur. BESTEMMINGSPLAN
De bestemming is Bedrijven volgens bestemmingsplan Stedelijk gebied; Veegplan 2017-2. HUURPRIJS
€ 3.500,00 exclusief BTW per maand. SERVICEKOSTEN
Huurder zet zelf benodigde contracten op naam. HUURBETALING
Per maand vooruit. HUURTERMIJN
5 +5 jaar, kortere of langere perioden zijn in overleg bespreekbaar. INGANGSDATUM
Het object is per 1 januari 2026 beschikbaar. OPZEGTERMIJN
12 (twaalf) maanden. ZEKERHEIDSSTELLING
Bankgarantie c.q. waarborgsom ter grootte van minimaal 3 maanden huur incl. BTW. INDEXERING
Jaarlijks op basis van het prijsindexcijfer volgens de consumenten-prijsindex (CPI), reeks CPI- alle huishoudens (op basis van het meest recente basisjaar), gepubliceerd door het Centraal Bureau voor de Statistiek (CBS). HUUROVEREENKOMST
De te sluiten huurovereenkomst zal worden opgemaakt conform het model welke door de Raad voor Onroerende Zaken (ROZ). BTW BELASTE HUUR
Een met BTW belaste huurprijs is voor verhuurder het uitgangspunt. Voldoet huurder niet aan de voor belaste verhuur gestelde criteria, dan behoudt verhuurder zich het recht voor om het alsdan ontstane financiële nadeel voor verhuurder volledig te compenseren.
?
DISCLAIMER
Alhoewel deze informatie met de grootst mogelijke zorgvuldigheid is samengesteld kan Thoma Post Bedrijfsmakelaars geen aansprakelijkheid aanvaarden voor eventuele onjuistheden dan wel voor verwachtingen gebaseerd op deze informatie, welke als vrijblijvende informatie dient te worden beschouwd. Overigens wordt onze aansprakelijkheid in alle gevallen beperkt tot het bedrag dat, in het desbetreffende geval wordt uitgekeerd krachtens de door ons afgesloten beroepsaansprakelijkheidsverzekering. Tenzij schriftelijk anders is overeengekomen, zijn op al onze werkzaamheden de Algemene Voorwaarden van de NVM van toepassing.