Resultaten laden ...

Nikkelstraat 17 c 4 126 m2 bedrijfsruimte te koop in Ridderkerk

Kenmerken

Prijs € 299.500 v.o.n.
Functie Bedrijfsruimte
Onderhoud buiten Goed
Onderhoud binnen Goed
Wijk / Buurt Donkersloot
Bedrijventerrein Donkersloot-Zuid

Op een fantastische gelegen locatie op bedrijventerrein Donkersloot-Zuid in Ridderkerk wordt een hoogwaardig afgewerkt bedrijfsverzamelcomplex ontwikkeld. Het complex wordt gesitueerd op zichtlocatie vanaf de Rotterdamseweg. Op dit moment zijn de units 18, 19 en 20 beschikbaar voor verkoop.

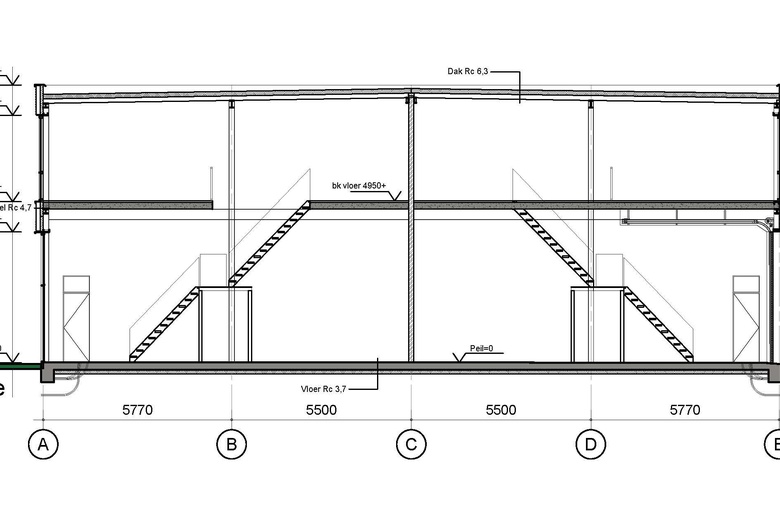
De aangeboden units worden opgeleverd met een functionele bedrijfsruimte op de begane grond net een vrije hoogte van maar liefst 4,70 meter en een afgewerkte betonnen verdiepingsvloer met veel daglichttoetreding. De verdieping is geschikt om eventueel als kantoor af te bouwen.

Locatie:

Bedrijventerrein Donkersloot-Zuid is uitstekend bereikbaar via de rijkswegen A15 (Europoort-Rotterdam-Gorinchem) en A16 (Rotterdam-Dordrecht-Breda). Tevens is het bedrijventerrein goed bereikbaar middels openbaar vervoer, het centrum ligt op 10 minuten loopafstand.

Afmetingen per unit:

- begane grond : ca. 63 m²;

- verdieping : ca. 63 m²;

- totaal : ca. 126 m².

Parkeren per unit:

2 eigen parkeerplaatsen.

Bestemming:

Bedrijfsdoeleinden t/m categorie 3.2.

Verwachte start bouw:

Oktober 2025.

Bouwaard/algemeen:

- onderheide betonfundering;

- onderheide en geïsoleerde betonvloer (Rc-3,7);

- opbouw staalconstructie;

- gasbeton unitscheidende wanden;

- gevels begane grond metselwerk met daarboven sandwichpanelen, geïsoleerde gevelbeplating (Rc-4,7) en deels hout sierelementen;

- hardhouten kozijnen, voorzien van draai-/kiepramen en HR++ beglazing;

- geïsoleerd staaldak (Rc-6,3) voorzien van PVC dakbedekking en twee dak doorvoeren;

- meterkast t.b.v. elektra (3x25A), water en glasvezel;

- brandblusmiddelen.

Voorzieningen/specificatie:

- monoliet afgewerkte betonvloer met een maximale vloerbelasting van 1.000 kg/m²;

- betonnen verdiepingsvloer met een maximale vloerbelasting van 350 kg/m² afgewerkt met zandcement deklaag;

- elektrisch bedienbare overheaddeur, ca. 3,00 meter breed en ca. 4,00 meter hoog;

- vrije hoogte begane grond ca. 4,65 meter;

- vrije hoogte op de verdiepingsvloer ca. 3,25 meter;

- toiletruimte met fonteintje;

- frame boven de overheaddeur ten behoeve van reclamevoering;

- houten trapopgang.

Voorzieningen/specificatie buitenterrein:

- gevelverlichting;

- verhard met betonklinkers;

- terreinriolering.

Koopprijs per unit:

€ 299.500,- v.o.n. exclusief BTW.

De notariskosten zijn voor rekening van koper.

Ondernemersfonds:

De gemeente Ridderkerk heeft per 1 januari 2026 een ondernemersfonds opgericht. De ondernemers die in het gebied gevestigd zijn bepalen gezamenlijk op welke manieren het fonds zal worden ingezet. Het fonds kan onder andere worden gebruikt om de leefbaarheid, veiligheid en/of uitstraling van het bedrijventerrein te verbeteren.

De kosten van dit ondernemersfonds bedragen per 1 januari 2026 € 35,- per € 100.000,- WOZ-waarde per jaar.

Vereniging van Eigenaren (VvE):

Voor het onderhoud en beheer van de gemeenschappelijke delen, waaronder het gemeenschappelijke buitenterrein, wordt van rechtswege een Vereniging van Eigenaren (kortweg VvE) opgericht waarvoor thans een beheerder is aangesteld. De eerste storting van € 1.000,- per unit wordt verrekend bij notarieel transport.

Appartementsrechten:

De grond en de daarop te realiseren bebouwing wordt gesplitst in appartementsrechten. Elke koper wordt eigenaar van een appartementsrecht, welk het recht geeft op het uitsluitende gebruik van de unit met bijbehorende parkeerplaatsen. Elke unit is separaat met een hypotheek te belasten en/of te verkopen/verhuren. Dit houdt onder meer in dat elke koper afzonderlijk wordt aangeslagen voor onroerend zaakbelasting, waterschapslasten, rioolrecht alsmede vastrecht voor diverse nutsvoorzieningen (water en elektriciteit).

Verwachte oplevering:

Eind Q2 2026.

Deze informatie is door ons met de nodige zorgvuldigheid samengesteld. Onzerzijds wordt echter geen enkele aansprakelijkheid aanvaard voor enige onvolledigheid, onjuistheid of anderszins, dan wel de gevolgen daarvan. Alle opgegeven maten en oppervlakten zijn indicatief.

Bereikbaarheid

Tram, bus, metro
  • Groenendijk 1 min. lopen
  • Donkerslootweg 8 min. lopen
  • Spinozastraat 8 min. lopen
  • Ridderpoort 8 min. lopen
  • Schlumberger 10 min. lopen

Bijlagen

De aanbieder van dit object heeft een PDF Brochure beschikbaar gesteld.

Vraag brochure aan