Resultaten laden ...

Plantageweg 14

990 m2 bedrijfsruimte te koop in Leusden

Kenmerken

Status Verkocht onder voorbehoud
Prijs € 895.000 k.k.
Functie Bedrijfsruimte
Onderhoud buiten Uitstekend
Onderhoud binnen Uitstekend
Wijk / Buurt Buitengebied Leusden-Centrum West
Bedrijventerrein t Spieghel - deelplan de Plantage

ALGEMEEN

Aan de rand van het groene Leusden bevindt zich het nieuwe kantoren- en bedrijvenpark De Plantage. Leusden is door de centrale ligging in Nederland een aantrekkelijke vestigingsplaats. Op een perceel van maar liefst 800 m² ligt het bedrijfsobject Plantageweg 14. De bedrijfsruimte beschikt over 2 overheaddeuren, die zorgen voor een optimale toegankelijkheid en gebruiksgemak. Daarnaast is er een ruim buitenterrein aanwezig van ca. 524 m², afgesloten met een hek, wat zorgt voor veiligheid en flexibiliteit in het gebruik. De locatie biedt een rustige werkomgeving, terwijl de uitvalswegen direct bereikbaar zijn. De bedrijfsruimte bevat twee afspuitbare opslagruimten, ideaal voor diverse opslag- en werkdoeleinden. De vrije hoogte van het pand bedraagt circa 6 meter, wat ruime mogelijkheden biedt voor logistieke of productieactiviteiten. Verder is er kantoorruimte aanwezig met een praktische kamerindeling, die geschikt is voor diverse zakelijke functies. Het pand is bovendien energiezuinig en toekomstbestendig, voorzien van 30 zonnepanelen en een warmtepomp, wat resulteert in lage energielasten en een duurzame bedrijfsvoering.

De opzet van het kantoren- en bedrijvenpark De Plantage kenmerkt zich door een eigen karakter en visie. Hierdoor is De Plantage een toplocatie die zowel sociale als zakelijke meerwaarde biedt. Het is een prettige werkomgeving waar gebruikers waardevolle contacten kunnen opbouwen. De Plantage is een geschikte plek vlakbij de Randstad om goed te ondernemen.

LOCATIE

De locatie bevindt zich in het goed ontwikkelde kantoren- en bedrijvenpark De Plantage, een van de zes bedrijventerreinen van Leusden. Leusden, met ca. 30.000 inwoners, ligt strategisch tussen Amersfoort en de Randstad. In de directe omgeving zijn gerenommeerde bedrijven gevestigd, waaronder Afas, Achmea en diverse lokale ondernemingen. Het bedrijventerrein staat bekend om zijn rustige en groene omgeving, wat een prettige werksfeer creëert.

BEREIKBAARHEID

Plantageweg 14 is uitstekend bereikbaar per auto, op slechts 2 minuten afstand van de A28 en circa 5 minuten van de A1. De bereikbaarheid per openbaar vervoer is eveneens goed; de dichtstbijzijnde bushalte bevindt zich op loopafstand en biedt een directe verbinding naar Station Amersfoort binnen ongeveer 20 minuten.

1 km tot de A28;

4 – 5 km tot de A1;

5 – 6 km tot station Amersfoort;

4 – 5 km tot centrum Amersfoort.

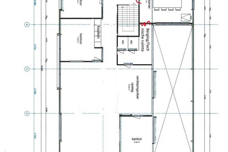
VLOEROPPERVLAK

De totale oppervlakte van het perceel bedraagt ca. 800 m².

De vloeroppervlakte van het pand bedraagt 466 m², verdeeld over de begane grond (276 m² bedrijfsruimte) en de bovenverdieping (kantoorruimte 190 m²).

Daarbij beschikt dit pand over 524 m² buitenruimte.

OPLEVERINGSNIVEAU

Het pand wordt in de huidige staat opgeleverd:

- systeemplafonds met verlichtingsarmaturen op de 1ste verdieping;

- laminaatvloer op de 1ste verdieping;

- 30 zonnepanelen;

- twee overheaddeuren;

- een gladde betonvloer;

- toilettengroep;

- 2 pantry's;

- heater;

- alarm;

- airco;

- warmtepomp.

KOOPPRIJS

De koopprijs bedraagt € 895.000,-- k.k.

PARKEREN

Er zijn diverse parkeerplaatsen voor het pand en mogelijkheden voor vrij parkeren op de openbare weg.

BTW

Uitgangspunt is een met btw belaste koopprijs. Daarom dient de koopprijs te worden vermeerderd met het van toepassing zijnde btw-percentage.

HUURSITUATIE

Vrij van huur.

KADASTER

Leusden E 6437

Perceelgrootte: 800m²

BOUWJAAR

2023

ZEKERHEIDSTELLING

Waarborgsom of bankgarantie van 10% van de overeengekomen koopprijs. Deze moet binnen twee weken na ondertekening van de koopakte worden voldaan bij de notaris.

AANVAARDING

In overleg.

Over Comma Vastgoed

Comma Vastgoed is dé makelaar voor woningen en commercieel vastgoed in de regio Amersfoort, waaronder Soest, Soesterberg, Leusden, Nijkerk en Bunschoten-Spakenburg. Met een jarenlange ervaring en een uitgebreide kennis van zowel de particuliere als commerciële vastgoedmarkt, staan wij klaar om u te helpen bij het kopen, verkopen, of verhuren van uw woning of bedrijfspand. Of u nu op zoek bent naar een appartement, eengezinswoning, winkelruimte of kantoor, bij Comma Vastgoed krijgt u deskundig advies en persoonlijke begeleiding. Neem vandaag nog contact met ons op voor meer informatie over ons aanbod in de regio Amersfoort.

Bijlagen

De aanbieder van dit object heeft een PDF Brochure beschikbaar gesteld.

Vraag brochure aan