Platinawerf 10
426 - 4.179 m2 bedrijfsruimte te huur in Beuningen
Kenmerken
| Huurprijs | Prijs op aanvraag |
| Functie | Bedrijfsruimte |
| Onderhoud buiten | Goed |
| Onderhoud binnen | Goed |
| Wijk / Buurt | Beuningen Schoenaker |
| Bedrijventerrein | Schoenaker |
2 eenheden beschikbaar
2 eenheden beschikbaar
- Eenheid
- Oppervlakte
- Huurprijs
- Gebruik
- 2
- 426 m2
- Prijs op aanvraag
- Kantoorruimte
| OPPERVLAKTE | 4.179 m2 |
| GEBRUIK | Bedrijfsruimte |
| OPPERVLAKTE | 426 m2 |
| GEBRUIK | Kantoorruimte |
Omschrijving
Omschrijving
Algemeen:
Multifunctionele bedrijfsruimte met showroom en kantoorruimte op een prominente zichtlocatie aan de A73 op bedrijventerrein ‘Schoenaker’ in Beuningen. Het object beschikt onder andere over drie overheaddeuren en voldoende parkeermogelijkheden op eigen terrein.
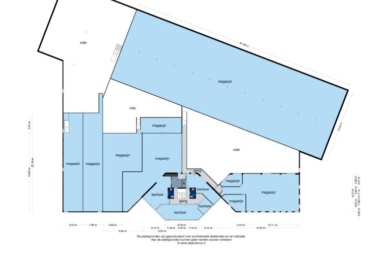
Vloeroppervlakte:
Voor verhuur is een totale oppervlakte beschikbaar van 4.605 m² (VVO), als volgt verdeeld:
- ca. 2.879 m² bedrijfsruimte;
- ca. 426 m² kantoorruimte;
- ca. 1.300 m² overige ruimtes.
Deelverhuur is mogelijk vanaf 3102 m².
Locatie:
Het object is gelegen op een strategische locatie in de stadsregio Arnhem-Nijmegen op bedrijventerrein 'Schoenaker' te Beuningen. Op het bedrijventerrein Schoenaker zijn diverse (inter)nationale bedrijven gesitueerd, waaronder; Paardekoper, Quantore, AG Logistics en InterCheM. Tevens heeft logistiek dienstverlener Cornelissen besloten haar activiteiten vanuit Nijmegen naar de Schoenaker te verplaatsen.
Bereikbaarheid:
Eigen vervoer: Bedrijventerrein ‘Schoenaker’ beschikt over een uitstekende ligging. Het terrein ligt op slechts enkele minuten van de Rijkswegen A73 en de A50, wat zorgt voor snelle verbindingen met belangrijke economische centra zoals Nijmegen, Arnhem, en 's-Hertogenbosch. Deze strategische ligging maakt het terrein bijzonder aantrekkelijk voor logistieke en distributieactiviteiten.
Openbaar vervoer: De meest dichtstbijzijnde bushalte is gelegen op loopafstand aan de Hadrianussingel. Vanaf deze halte rijdt buslijn 85, die Beuningen verbindt met Nijmegen Centraal Station. Deze buslijn biedt een regelmatige dienstregeling gedurende de werkweek.
Parkeren:
Er zijn 47 parkeerplaatsen voor personenauto’s aanwezig op eigen terrein.
Opleveringsniveau:
Het object wordt aangeboden in de huidige staat, onder andere voorzien van de navolgende voorzieningen:
- Betonvloer in de bedrijfsruimte;
- 3 overheaddeuren;
- Receptie;
- Kamerindeling;
- Vloerafwerking in de kantoren;
- Systeemplafonds in de kantoren;
- Verlichting;
- Verwarming;
- Topkoeling;
- Kleedruimten;
- Kantine;
- Toiletten;
- Douches;
- Brandpreventiemiddelen.
Huurprijs:
Op aanvraag.
Servicekosten:
Niet van toepassing.
Voor rekening van huurder komen alle kosten verbonden aan de levering, het gebruik, het vastrecht en de meteropname in het gehuurde van gas, water en elektra. Het object beschikt over eigen nutsaansluitingen en huurder dient zelf met de hiervoor verantwoordelijke nutsbedrijven overeenkomsten aan te gaan.
Bestemmingsplan:
De locatie valt onder het vigerende bestemmingsplan ‘Bedrijventerrein Schoenaker 2011 ' met de bestemming 'Bedrijf - 1', op basis waarvan de gronden zijn bestemd voor:
- Bedrijven in de milieucategorieën 2, 3.1 en 3.2;
- Kantoren;
- Productiegebonden detailhandel.
Informatie inzake gebruiksmogelijkheden en voorschriften is te verkrijgen via onze kantoren, bij de gemeente Beuningen en via .
Huurperiode:
Een huurperiode van 5 jaar, gevolgd door verlengingsperioden van telkens 5 jaar.
Opzegtermijn:
12 maanden.
Huurbetaling:
Per kwartaal vooruit.
Huurprijsindexering:
Jaarlijks, voor het eerst 1 jaar na huuringangsdatum, op basis van het maandprijsindexcijfer volgens de consumentenprijsindex CPI reeks CPI alle huishoudens (2015=100, dan wel meest recente tijdsbasis), gepubliceerd door het CBS.
Zekerheidsstelling:
Een bankgarantie of waarborgsom ter grootte van tenminste 3 maanden huur en BTW.
Model huurovereenkomst:
Model verhuurder, gebaseerd op het meest recente standaardmodel van de Raad voor Onroerende Zaken (ROZ) 2015.
Aanvaarding:
Per direct.