Resultaten laden ...

Prins Hendrikstraat 2 A 359 m2 bedrijfsruimte te huur in Gouda

Kenmerken

Perceeloppervlakte 770 m²
Functie Bedrijfsruimte
Wijk / Buurt De Korte Akkeren-Oud

TE HUUR

Bedrijfsunit te huur die geheel naar eigen wens kan worden afgewerkt en ingericht. Met een oppervlakte van in totaal 359 m² en parkeergelegenheid op eigen terrein, is dit een aantrekkelijk bedrijfsobject vlakbij de binnenstad van Gouda. Het betreft de oude kiosk van het tankstation en het naastgelegen pand.

De begane grond (228 m²) biedt volop ruimte voor productie, opslag of ontvangst. De ruimte op de eerste verdieping (131 m²) kan ingezet worden voor diverse doeleinden: denk aan extra werkplekken, opslag, of misschien zelfs een showroom. De afwerking en inrichting kunnen volledig naar eigen wens worden aangepast, zodat de ruimte aansluit op de bedrijfsactiviteiten.

LOCATIE

De Prins Hendrikstraat ligt in de wijk Korte Akkeren, een rustige wijk in Gouda, op korte afstand van het sfeervolle stadscentrum.

BEREIKBAARHEID

Per auto

De bedrijfsunit ligt op circa 10 minuten van de A12 (richting Utrecht) en de A20 (richting Rotterdam).

Per ov

Station Gouda is op slechts 5 minuten fietsafstand gelegen en biedt een directe verbinding naar verschillende grote steden, waaronder Rotterdam, Den Haag en Utrecht.

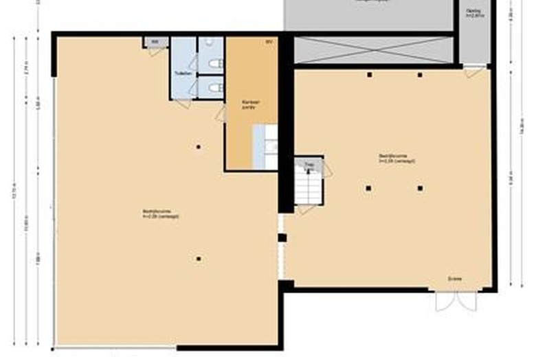
VLOEROPPERVLAKTE

De totale verhuurbare vloeroppervlakte van het gebouw bedraagt 359 m²

Verdieping Metrage (in m² v.v.o.)

Begane grond 228 m²

1e verdieping 131 m²

KADASTRALE GEGEVENS

Gemeente Gouda, Sectie E, nummer 6063.

Perceeloppervlakte 770 m²

BESTEMMING

Bestemming ‘Bedrijf’. De voor ‘bedrijf’ aangewezen gronden zijn bestemd voor bedrijfsactiviteiten tot en met milieucategorie 2.

PARKEREN

Parkeergelegenheid op eigen terrein.

VOORZIENINGEN

De ruimte op de begane grond is onder meer voorzien van:

• entree met dubbele deuren;

• kantoor/pantry;

• toiletgroep;

De ruimte op de 1e verdieping is onder meer voorzien van:

• cv-ketel;

HUURPRIJS

€ 25.000,- per jaar, te vermeerderen met BTW.

Indien de BTW niet kan worden verrekend dan zal de huurprijs met een nader vast te stellen bedrag worden verhoogd.

SERVICEKOSTEN

Nader te bepalen.

TRIPLE-NET

De huurovereenkomst zal bij voorkeur gebaseerd zijn op het ‘Triple-net’ principe waarbij uitsluitend huurder verantwoordelijk is voor alle kosten van instandhouding, onderhoud, herstel en vernieuwingen alsmede de belastingen en verzekeringen aangaande het gebouw en bijbehorende kavel, waarin/waarop het object is gesitueerd.

HUURPRIJSAANPASSING

Jaarlijks voor het eerst één jaar na datum ingebruikname, zal de huurprijs worden aangepast op basis van de wijziging van het maandindexcijfer volgens consumentenprijsindex (CPI), 2025=100, reeks alle huishoudens.

BETALINGEN

Huur en BTW per maand vooruit.

ZEKERHEIDSSTELLING

Bankgarantie ter grootte van drie maanden huur, inclusief servicekosten en BTW.

HUURTERMIJN

5 jaar, korter bespreekbaar.

VERLENGINGSTERMIJN

Nader overeen te komen.

OPZEGTERMIJN

Nader overeen te komen.

OVERIGE CONDITIES

Huurovereenkomst op basis van het standaardmodel van de Raad voor Onroerende Zaken (ROZ).

AANVAARDING

In overleg.

VOORBEHOUD

Elke transactie behoeft de nadrukkelijke goedkeuring van eigenaar.

BTW-STATUS

Over de huurprijs en servicekosten wordt BTW in rekening gebracht. Bij het vaststellen van de huurprijs is ervan uitgegaan dat huurder voor minimaal 90% belaste prestaties in het gehuurde verricht.

DISCLAIMER

Al het bovenstaande betreft informatie omtrent de verhuur van dit adres. De informatie is met zorg samengesteld, maar voor de juistheid ervan kan door Bij Abram Bedrijfsmakelaardij geen aansprakelijkheid worden aanvaard noch aan de vermelde gegevens enig recht worden ontleend. Nadrukkelijk is vermeld dat deze informatieverstrekking niet als een aanbieding of offerte mag worden beschouwd.

Bereikbaarheid

Tram, bus, metro
  • Constantijn Huygensstraat 8 min. lopen
  • Hoge Gouwe 9 min. lopen