Rietgraafsingel 6
95 m2 bedrijfsruimte te huur in Oosterhout
Kenmerken
| Huurprijs | Op aanvraag |
| Functie | Bedrijfsruimte |
| Onderhoud buiten | Uitstekend |
| Onderhoud binnen | Uitstekend |
| Wijk / Buurt | Verspreide huizen Oosterhout |
| Bedrijventerrein | Park15 |
1 eenheid beschikbaar
1 eenheid beschikbaar
- Eenheid
- Oppervlakte
- Huurprijs
- Gebruik
- 1
- 95 m2
- Bedrijfsruimte
| OPPERVLAKTE | 95 m2 |
| GEBRUIK | Bedrijfsruimte |
Omschrijving
Omschrijving
Algemeen:
Het betreft 20 bedrijfsunits met oppervlakten variërend van 95 m² (BVO) tot 202 m² (BVO). De oppervlakten van de units zijn evenredig verdeeld over de begane grond en verdiepingsvloer. Uitgangspunten voor het ontwerp zijn functionaliteit, kwaliteit met een eigen uitstraling.
De bedrijfsunits zijn direct gelegen aan de snelweg A15 op bedrijvenpark "Park15". Park15 is het toonbeeld van een nieuwe generatie duurzame bedrijvenparken in Nederland: tijdloos en met behoud van waarde op lange termijn. Kwalitatief hoogwaardig, groen en toekomstbestendig. Bereikbaarheid:
Multimodaal bereikbaar via weg, water en in de toekomst spoor. Centraal gelegen tussen de Rotterdamse havens en het Duitse Ruhrgebied. Zowel Arnhem en Nijmegen zijn snel te bereiken via de A325. Op korte afstand zijn via de A15 de A50 (Eindhoven), de A12 (Utrecht-Den Haag) en de A73 (Venlo-Maastricht) te bereiken. Deze wegen bieden een uitstekende connectie met de Rotterdamse havens, Schiphol, België en Duitsland. Vloeroppervlakten:
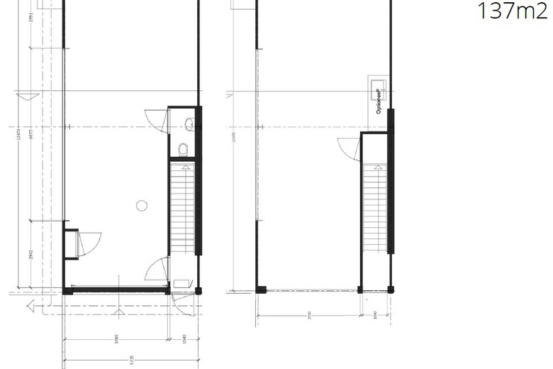
Unit 01: 137,06 m² (68,53 m² op de begane grond en 68,53 m² op de eerste verdieping);
Unit 02: 137,70 m² (68,85 m² op de begane grond en 68,85 m² op de eerste verdieping);
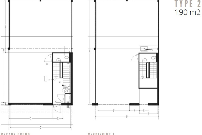
Unit 03: 189,24 m² (94,62 m² op de begane grond en 94,62 m² op de eerste verdieping);
Unit 04: 189,24 m² (94,62 m² op de begane grond en 94,62 m² op de eerste verdieping);
Unit 05: 189,24 m² (94,62 m² op de begane grond en 94,62 m² op de eerste verdieping);
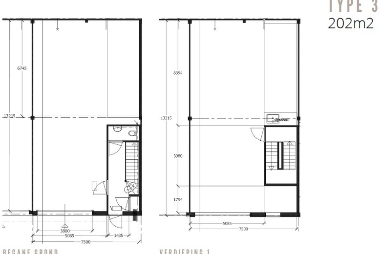
Unit 06: 202,50 m² (101,25 m² op de begane grond en 101,25 m² op de eerste verdieping);
Unit 07: 202,50 m² (101,25 m² op de begane grond en 101,25 m² op de eerste verdieping);
Unit 08: 202,50 m² (101,25 m² op de begane grond en 101,25 m² op de eerste verdieping);
Unit 09: 202,50 m² (101,25 m² op de begane grond en 101,25 m² op de eerste verdieping);
Unit 10: 202,50 m² (101,25 m² op de begane grond en 101,25 m² op de eerste verdieping);
Unit 11: 202,50 m² (101,25 m² op de begane grond en 101,25 m² op de eerste verdieping);
Unit 12: 202,50 m² (101,25 m² op de begane grond en 101,25 m² op de eerste verdieping);
Unit 13: 202,50 m² (101,25 m² op de begane grond en 101,25 m² op de eerste verdieping);
Unit 14: 101,25 m² op de begane grond;
Unit 15: 101,25 m² op de begane grond;
Unit 16: 94,62 m² op de begane grond;
Unit 17: 94,62 m² op de begane grond;
Unit 18: 189,24 m² (94,62 m² op de begane grond en 94,62 m² op de eerste verdieping);
Unit 19: 137,70 m² (68,85 m² op de begane grond en 68,85 m² op de eerste verdieping);
Unit 20: 137,06 m² (68,53 m² op de begane grond en 68,53 m² op de eerste verdieping). Bovenstaande metrages zijn op basis van bruto-vloeroppervlakten (BVO). Vrije hoogte:
- Units 01, 02, 19 en 20: ca. 2,7 m;
- Units 03 tot en met 18: ca. 6 m. Vloerbelasting:
Circa 1.500 kg per m² op de begane grond en circa 400 kg per m² op de verdieping. Opleveringsniveau:
De bedrijfsunits worden opgeleverd onder andere voorzien van de navolgende voorzieningen:
- Elektrisch bedienbare overheaddeur (niet aangesloten);
- Stalen trap inclusief leuning naar de verdieping;
- Betonnen kanaalplaatvloeren met daarop een druklaag en afgewerkt met een zandcementdekvloer op de verdieping;
- Aluminium buitenkozijnen;
- HR++ isolatieglas;
- Rioolaansluiting. Niet inbegrepen zijn de kosten die verbonden zijn aan de aanvraag en aanleg ten behoeve van water, elektra en cai. De algemene en technische omschrijving is op te vragen bij ons kantoor. Parkeren:
Elke is voorzien van voldoende parkeerplaatsen. Deze zijn als volgt toegekend:
- Units 01, 02, 19 en 20: 2 parkeerplaatsen;
- Units 03 t/m 17: 3 parkeerplaatsen. Bestemming:
De locatie valt onder het vigerende bestemmingsplan De Nieuwe Rietgraaf' met de bestemming 'Bedrijventerrein'. De voor 'Bedrijventerrein' aangewezen gronden zijn bestemd voor:
- Het uitoefenen van bedrijvigheid die voorkomt in de milieucategorieën 1 tot en met 4.2, zoals vermeld in de bij de regels behorende bijlage "Lijst van bedrijfsactiviteiten", alsmede voor bedrijven die beoordeeld naar de concrete bedrijfsactiviteit en invloed op de omgeving van het bedrijventerrein gelijk te stellen zijn met genoemde bedrijven;
- Productiegebonden detailhandel;
- Niet zelfstandige kantoren, als onderdeel van de bedrijven, mits het kantooraandeel niet meer bedraagt dan 40% van de bedrijfsvestiging. Informatie inzake gebruiksmogelijkheden en voorschriften is te verkrijgen via ons kantoor, bij de gemeente Overbetuwe of via omgevingswet.overheid.nl. Beschikbaarheid/koopprijzen: Unit 09: € 285.000,--
Unit 10: € 285.000,--
Unit 17: € 209.500,--
Unit 19: € 199.500,-- Bovenstaande koopprijzen zijn vrij op naam (VON), te vermeerderen met BTW en notariskosten. Het is mogelijk om units te huren (huurprijzen op aanvraag). Zekerheidstelling:
Waarborgsom ter grootte van 10% van de koopsom. Notaris:
Notarissen Elst. VVE:
Om de kwaliteit binnen het complex te waarborgen zal er een VVE worden opgericht. Alle eigenaren worden hier automatisch lid van. Nadere informatie en/of bezichtiging:
DK Makelaars
Oranjesingel 60
6511 NX Nijmegen
(024) 203 70 60
dkmakelaars.nl
Aanbevolen voor u
Bekijk
bedrijfsruimte in Oosterhout
of bekijk deze panden: