Segment 22 d 70 m2 bedrijfsruimte te huur in Duiven
Kenmerken
| Huurprijs | € 18.000 /jaar |
| Functie | Bedrijfsruimte |
| Onderhoud buiten | Uitstekend |
| Onderhoud binnen | Uitstekend |
| Wijk / Buurt | Verspreide huizen in het noorden |
| Bedrijventerrein | InnoFase uitbreiding |
1 eenheid beschikbaar
1 eenheid beschikbaar
- Eenheid
- Oppervlakte
- Huurprijs
- Gebruik
| OPPERVLAKTE | 70 m2 |
| GEBRUIK | Bedrijfsruimte |
Omschrijving
Omschrijving
Algemeen:
Te huur, nieuwbouw bedrijfsunit met twee parkeerplaatsen, gelegen op bedrijventerrein Centerpoort-Noord in Duiven.
Vloeroppervlakte:
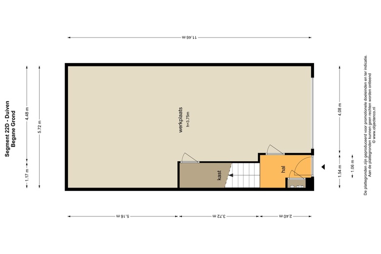
Voor verhuur is beschikbaar een totale oppervlakte van ca. 140 m² (BVO) verdeeld over:
- Begane grond: 70 m²
- Eerste verdieping: 70 m²
Parkeren:
2 parkeerplaatsen.
Opleveringsniveau:
Deze bedrijfsunit is afgebouwd in 2025 en wordt opgeleverd in de huidige staat, voorzien van onder andere:
- Elektrisch bedienbare overheaddeur;
- Systeemplafond met ingebouwde
verlichtingsarmaturen;
- Pantry met inbouwapparatuur;
- Toilet;
- Airco Installatie (t.b.v. verwarmen en verkoelen);
- Elektra en datapunten;
- Glasvezelaansluiting;
- LED verlichting in de bedrijfsruimte;
- PVC vloer op de verdieping;
- Te openen ramen.
Huurprijs:
€ 18.000,-- per jaar, te vermeerderen met servicekosten en BTW.
Servicekosten:
€ 20,-- per maand, te vermeerderen met BTW. De leveringen en diensten omvatten in ieder geval de navolgende zaken:
Onderhoud airco en overheaddeur.
Daarnaast dient huurder voor eigen rekening contracten met nutsbedrijven af te sluiten voor de levering en het verbruik van water en elektra.
Locatie:
Het object is gesitueerd op bedrijventerrein Center-poort-Noord. Op dit bedrijventerrein zijn ondernemingen als Melis Logistics, RRS Duiven en BOKS Betonboringen.
Bereikbaarheid:
De bereikbaarheid van het object met eigen vervoer is ideaal. Door haar ligging op steenworpafstand van op- en afritten van autosnelweg A12 is dit object gemakkelijk bereikbaar. Met openbaar vervoer is dit object goed bereikbaar door de verschillende bushaltes gelegen op de Innovatie. Het dichtstbijzijnde treinstation is station Duiven.
Bestemming:
De locatie valt onder het vigerende bestemmingsplan ‘Bedrijventerrein Centerpoort-Noord’ met bestemming ‘Bedrijventerrein’ met functie aanduiding ‘Bedrijf tot en met categorie 4.1’
Informatie inzake gebruiksmogelijkheden en voorschriften is te verkrijgen via ons kantoor of bij de gemeente Duiven, dan wel via de website .
Informatie / bezichtiging: