Steenkade 1 A
137 m2 bedrijfsruimte te koop in Beverwijk
Kenmerken
| Prijs | € 295.000 v.o.n. |
| Functie | Bedrijfsruimte |
| Wijk / Buurt | Wijkerbroek |
1 eenheid beschikbaar
1 eenheid beschikbaar
Omschrijving
Omschrijving
TE KOOP Deze prachtige bedrijfsunit op strategische locatie gelegen op bedrijventerrein 'De Pijp' in Beverwijk, direct nabij de snelweg A9 en A22 en ruime voorzieningen zoals de meubelboulevard en een breed scala aan ondernemingen.
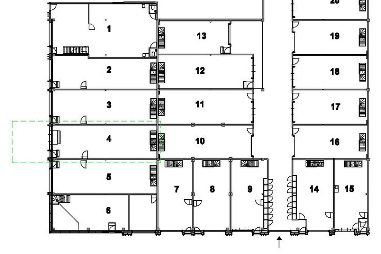
Deze bedrijfsunit, gelegen aan de buitenkant van het complex (bouwnummer 4) plaatselijk bekend als Steenkade 1A is groot ca. 83 m² BVO op de begane grond en ca. 54 m² BVO op de verdieping. In totaal worden er 23 bedrijfsunits variërend van ca. 78 m² tot ca. 192 m² BVO gerealiseerd.Alle bedrijfsunits worden voorzien van een verdiepingsvloer aan de achterzijde van de ruimte zodat aan de voorzijde van de unit de volledige hoogte (ca. 5,5 meter) beschikbaar is. De units krijgen een moderne en industriële uitstraling. Opleveringsniveau
De unit wordt opgeleverd voorzien van:
- Meterkast op de begane grond met 3x 25A stroomaansluiting en watermeter, voorbereiding op glasvezel.
- Voorbereiding voor elektrische verwarming en ventilatie met koelfunctie.
- Elektrische overheaddeur met afstandsbediening; dichte entreedeuren bij de unit.
- Toiletruimte met toilet en fontein met vloertegels wandtegels.
- Pantry met HPL aanrechtblad, gootsteen, en dubbele wandcontactdozen.
- Strakke, onafgewerkte wanden en plafonds.
- Hekwerk bij de vide op de eerste verdieping. Er worden diverse meerwerkopties aangeboden waaronder een afbouwpakket voor de begane grond en eerste verdieping en een duurzaamheidspakket. Zie voor alle opties de lijst van meerwerk in de dataroom. Koopprijs
€ 295.000,- v.o.n., excl. BTW. Parkeren
Elke bedrijfsunit krijgt de beschikking over één of meerdere opstelplaatsen voor voertuigen. Rondom het object en in de nabije omgeving is verder ruime parkeergelegenheid beschikbaar. Locatie en bereikbaarheid
Het bedrijfscomplex is gelegen op bedrijventerrein 'De Pijp'. De objecten hebben een uitstekende bereikbaarheid per auto en openbaar vervoer! Met de A9 en A22 (richting Amsterdam/Schiphol, Haarlem en Alkmaar, en bushalte bijna direct voor de deur en het NS station op ca. 3 min loopafstand is de locatie zeer goed bereikbaar. Bestemming
Bij de gemeente Beverwijk valt het perceel binnen het bestemmingsplan 'Haven De Pijp-Parallelweg'. Dit houdt in dat het perceel bestemd is voor 'Bedrijf', bedrijven t/m cat. 4.2 zijn toegestaan. Bij twijfel over het toestaan van uw bedrijfsvoering adviseren wij u zelf contact op te nemen met de Gemeente Beverwijk.
Kadastrale gegevens
Gemeente: Beverwijk.
Sectie: A.
Nummer 11924, 11925 en 12024. Model overeenkomst
Koop-aanneemovereenkomst. Zekerheidstelling
Een bankgarantie ter grootte van 10% van de koopsom, te vermeerderen met BTW. BTW
Over de koopsom is overdrachtsbelasting verschuldigd dit bedrag is reeds in de koopsom verwerkt en komt voor rekening van verkoper.
Er wordt geopteerd voor een BTW belaste levering. De koopsom is gebaseerd op het feit dat de koper prestaties verricht die volledig of minimaal het in de Wet op de Omzetbelasting 1968 genoemde percentage recht op aftrek van de omzetbelasting op grond van artikel 15 van de Wet op de Omzetbelasting 1968. Bij twijfel verzoeken wij u contact op te nemen met uw accountant. Bouwjaar/ oplevering
2025. Energielabel
Van het aangeboden object is nog geen energielabel beschikbaar. Omdat de bedrijfsunits een industriefunctie krijgen. Voorbehouden
Goedkeuring en gunning eigenaar. De realisatie van het project vindt plaats zodra er 15 van 23 bedrijfsunits verkocht zijn. De ontwikkelaar kan de gesloten koop-aanneemovereenkomst zonder verdere consequenties ontbinden indien er geen definitieve omgevingsvergunning wordt afgegeven door de Gemeente Beverwijk. Ook kunnen wijzigingen op verzoek van de Gemeente Beverwijk in het ontwerp en/of materialen en/of constructies en/of installaties aanleiding geven om de verkoopprijzen aan te passen.
Mocht dat leiden tot een prijsverhoging is de Koper gerechtigd om de koop-aanneemovereenkomst zonder verdere consequenties te ontbinden. De standaard aangebrachte brandwerende en bouwkundige voorzieningen die worden voorgeschreven door diverse overheidsinstellingen zijn van toepassing. Alle informatie is geheel vrijblijvend en houdt enkel in een uitnodiging tot het doen van een bieding. Alle gegevens zijn met zorg samengesteld en uit ons inziens betrouwbare bron afkomstig. Ten aanzien van de juistheid ervan kunnen wij echter geen aansprakelijkheid aanvaarden.
Bijlagen
Aanbevolen voor u
Bekijk
bedrijfsruimte in Beverwijk
of bekijk deze panden: