Resultaten laden ...

Uraniumweg 49 145 m2 bedrijfsruimte te koop in Amersfoort

Kenmerken

Prijs € 325.000 k.k.
Functie Bedrijfsruimte
Onderhoud buiten Uitstekend
Onderhoud binnen Uitstekend
Wijk / Buurt Uraniumweg
Bedrijventerrein Isselt

ALGEMEEN

Bedrijvenpark Het Element, gelegen aan de Uraniumweg in Amersfoort, is een dynamisch bedrijventerrein dat diverse ondernemingen huisvest. De uitstraling van Het Element is levendig, maar ook rustig en netjes. Het bedrijventerrein heeft een praktische en no-nonsense uitstraling. Dit zorgt voor een functionele en efficiënte werkomgeving.

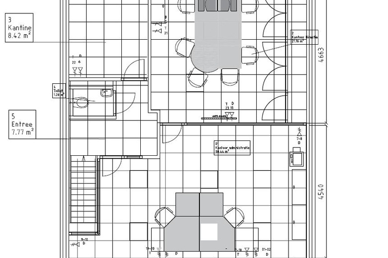
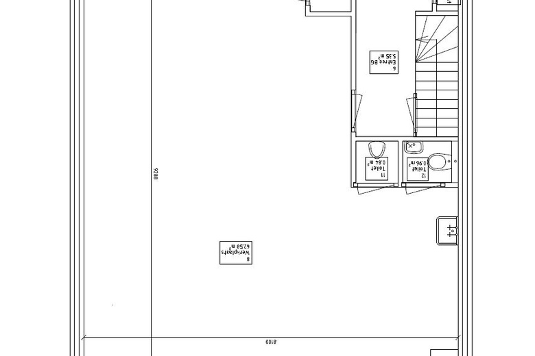
Aan de Uraniumweg 49 is een bedrijfsunit beschikbaar voor koop. Deze unit heeft een totale oppervlakte van circa 145 m², verdeeld over twee verdiepingen. Op de begane grond bevindt zich een bedrijfshal die toegankelijk is via zowel een ontvangsthal als een elektrische overheaddeur. Daarnaast zijn er gescheiden dames- en herentoiletten en een wateraansluiting aanwezig. Via een houten trap in de ontvangsthal bereikt men de eerste verdieping, waar een keuken/kantine en twee ruime kantoorkamers te vinden zijn. Een van deze kamers is voorzien van een grote kastenwand, wat zorgt voor voldoende opbergruimte. De ruimtes zijn gescheiden door een matglazen wand, waardoor de ruimte een moderne en open uitstraling krijgt.

LOCATIE

Bedrijventerrein Isselt ligt in het westen van Amersfoort en wordt doorsneden door de provinciale weg N199. Isselt grenst aan de Eem en heeft een eigen haven. Het terrein is ontwikkeld in de jaren '60 tot en met '80 en is bruto circa 200 hectare groot. Grote bedrijven op de Isselt zijn onder meer Drukkerij Wilco, Van de Burgt & Strooij, Nefkens, Serva en Gamma.

Bedrijventerrein Isselt is het grootste en oudste bedrijventerrein van Amersfoort.

Op de Isselt is een grootschalige renovatie van de infrastructurele voorzieningen nagenoeg afgerond. Goede verbindingen via doorgaande hoofdwegen, waterpartijen en groenvoorzieningen zien er goed en up to date uit. De afgelopen jaren zijn meerdere nieuwe bedrijfspanden gebouwd, wat het geheel een frisse dynamische aanblik geeft. Door allerlei maatregelen zorgt de gemeente dat het terrein vitaal blijft en goede ruimte biedt aan Amersfoortse bedrijven.

BEREIKBAARHEID

De Uraniumweg is zowel vanaf de snelwegen A28 en A1 als per openbaar vervoer uitstekend te bereiken.

0 – 100 m tot de bushalte;

3 – 4 km tot Station Amersfoort

4– 5 km tot de A28;

4 –5 km tot de A1.

VLOEROPPERVLAK

De totale oppervlakte bedraagt ca. 145 m².

OPLVERINGSNIVEAU

Het pand wordt in de huidige staat opgeleverd:

- systeemplafonds met verlichtingsarmaturen;

- een tegelvloer voorzien van vloerverwarming/koeling;

- 3 toiletten;

- pantry;

- heater;

- alarm;

- airco;

- electrische overheaddeur;

- electrische zonwering;

- warmtepomp.

KOOPPRIJS

De koopprijs bedraagt € 325.000,- k.k.

PARKEREN

Er zijn 2 eigen parkeerplaatsen voor het pand en mogelijkheden voor vrij parkeren aan de openbare weg.

BTW

Er is geen btw van toepassing. Koper is echter wel overdrachtsbelasting verschuldigd.

HUURSITUATIE

Uitgangspunt is dat de ruimte leeg wordt opgeleverd. Eventueel aanwezig meubilair is om niet over te nemen.

KADASTER

Amersfoort Amersfoort D 10005

Perceelgrootte: 81 m²

BOUWJAAR

2008

ZEKERHEIDSTELLING

Waarborgsom of bankgarantie van 10% van de overeengekomen koopprijs. Deze moet binnen twee weken na ondertekening van de koopakte worden voldaan bij de notaris.

AANVAARDING

In overleg.

Bereikbaarheid

Tram, bus, metro
  • Heliumweg 6 min. lopen
  • Kryptonweg 6 min. lopen
  • Isseltseveld 8 min. lopen
  • Argonweg 9 min. lopen
  • Goudsbloemstraat 9 min. lopen

Bijlagen

De aanbieder van dit object heeft een PDF Brochure beschikbaar gesteld.

Vraag brochure aan