Resultaten laden ...

Van Coulsterweg 1 b 127 m2 bedrijfsruimte te huur in Alblasserdam

Kenmerken

Huurprijs € 3.395 /maand
Functie Bedrijfsruimte
Onderhoud buiten Goed
Onderhoud binnen Goed
Wijk / Buurt Verspreide huizen
Bedrijventerrein Hoogendijk

Op uitstekende zichtlocatie op het representatieve bedrijventerrein Hoogendijk wordt deze uitstekend onderhouden en moderne bedrijfs-/kantoorruimte te huur aangeboden.

De bedrijfs-/kantoorruimte maakt deel uit van een in 2020 gebouwd modern en verzorgd bedrijfscomplex en is ideaal voor ondernemers die op zoek zijn naar een functionele, complete en goed bereikbare werkruimte.

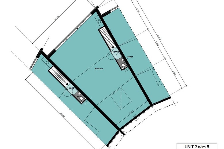
De bedrijfsruimte is o.a. voorzien van elektrisch bedienbare overheaddeur, betegelde toiletruimte, verwarming en LED-verlichting. De kantoorruimte heeft een eigen entree op de begane grond met trapopgang naar verdieping. De verdieping heeft een compleet en modern opleverniveau en is o.a. voorzien van indeling door middel van glazenwand, systeemplafond met LED-verlichting, airconditioning en betegelde toiletruimte.

Dankzij de combinatie van een uitstekende ligging en een compleet afwerkingsniveau is deze bedrijfs-/kantoorruimte uitermate geschikt voor uiteenlopende bedrijfs- en kantooractiviteiten.

Kortom: Een moderne en functionele bedrijfsruimte op een uitstekende locatie!

LOCATIE

De bedrijfsruimte is gelegen aan de rand van het bedrijventerrein Hoogendijk te Alblasserdam aan de Van Coulsterweg 1 b. Op korte afstand bevinden zich de op- en afritten van de rijksweg A15 (Rotterdam – Gorinchem) de goede verbinding naar rondweg N3 (Dordrecht). Op 1 minuut loopafstand bevinden zich bushalten met verbinding naar o.a. Rotterdam, Utrecht.

AFMETINGEN

Bedrijfsruimte (begane grond) : ca. 127 m² BVO

Kantoorruimte (1e verdieping) : ca. 127 m² BVO

PARKEERPLAATSEN

5 parkeerplaatsen.

BOUWJAAR

2020 (BAG-viewer).

ENERGIELABEL

A++ (geldig tot 30 juni 2033).

BESTEMMING

In het bestemmingsplan Herstelplan Alblasserdam (onherroepelijk, vastgesteld d.d. 31 maart 2015) heeft de bedrijfsruimte de bestemming ‘Bedrijventerrein-1’ met functieaanduiding ‘Bedrijf tot en met categorie 3.2’.

Bron .

BOUWAARD

– onderheide fundering;

– opbouw: staalconstructie;

– betonnen begane grond en verdiepingsvloeren;

– geïsoleerde metselwerk gevels;

– unitscheidende wanden gasbeton;

– geïsoleerde staaldak met pvc dakbedekking en dakluik;

– aluminium gevelkozijnen, ramen, puien en buitendeuren met geïsoleerde beglazing;

– kantoren binnenzijde metastud wanden;

– houten binnendeurkozijnen met stompe deuren;

– meterkast met aansluiting water en elektra (3x 25A);

– brandblusmiddelen.

VOORZIENINGEN

Bedrijfsruimte:

– monoliet afgewerkte betonvloer met een vloerbelasting van 1.500 kg/m²;

– elektrische bedienbare overheaddeur (4,34 m breed en 3,51 m hoog);

– vrije hoogte onder beton ca. 3,74 meter;

– vrije hoogte onder staalconstructie 3,40 meter;

– verwarming door middel van heater;

– uitstortgootsteen;

– betegelde toiletruimte voorzien van hangend toilet en wastafel.

Kantoorruimte:

- separate entree/hal begane grond met intercominstallatie en met PVC-beklede trapopgang;

- de verdieping is ingedeeld in 3 ruimten door middel van glazen scheidingswanden;

- vloer voorzien van tapijttegels;

– kabelgoten en diverse wandcontactdozen + datapunten;

- gesausd glasvlies wandafwerking;

– systeemplafond voorzien van LED-verlichting;

– mechanische ventilatie;

– airconditioning;

– betegelde toiletruimte voorzien van hangend toilet en wastafel;

– separate ruimte met opstelling pantry met onder- en bovenkastjes en voorzien van close-in boiler;

– aan de voorzijde is de kantoorruimte voorzien van grote raampartijen en de achterste kantoorruimte is voorzien van een lichtstraat.

HUURPRIJS

€ 3.395,- per maand exclusief servicekosten exclusief BTW.

SERVICEKOSTEN

Een vaste bijdrage servicekosten van € 100,- per maand ten behoeve van de volgende

leveringen en diensten:

- periodiek onderhoud- en keuring overheaddeur;

- periodiek onderhoud technische installaties;

- periodiek onderhoud brandblusmiddelen;

- periodieke glasbewassing;

- periodiek onderhoud buitenterrein;

- periodiek dakinspectie;

- 5% administratiekosten.

HUURPERIODE

In overleg.

HUURBETALING

Per maand vooruit.

HUURVERHOGING

Jaarlijks, voor het eerst 1 jaar na huuringangsdatum, conform de wijziging van het maandprijsindexcijfer volgens de Consumentenprijsindex (CPI), reeks CPI-alle huishoudens (2015 = 100), gepubliceerd door het Centraal Bureau voor de Statistiek (CBS).

HUUROVEREENKOMST

De te sluiten huurovereenkomst zal worden opgemaakt op basis van ROZ-model (Raad van Onroerende Zaken) kantoorruimte en andere bedrijfsruimte in de zin van artikel 7:230a BW, vastgesteld 05-03-2025 met bijbehorende Algemene Bepalingen gedeponeerd bij de griffie van de Rechtbank te Den Haag en op 03-06-2025 aldaar ingeschreven onder nummer 11/2025 en tevens gepubliceerd op de website

ZEKERHEIDSSTELLING

Bankgarantie/waarborgsom ter grootte van een kwartaalverplichting huur inclusief BTW.

OMZETBELASTING

De huurprijs wordt belast met de geldende omzetbelasting. Huurder en verhuurder opteren voor een BTW-belaste verhuur. Huurder verklaart door ondertekening van de huurovereenkomst dat hij het gehuurde blijvend gebruikt of blijvend laat gebruiken voor doeleinden waarvoor een volledig of nagenoeg volledig recht op aftrek van omzetbelasting op de voet van artikel 15 van de Wet op de omzetbelasting 1968 bestaat. Indien huurder niet meer voldoet aan dit criterium en/of er geen met omzetbelasting belaste verhuur wordt overeengekomen is huurder naast de huurprijs een door verhuurder nader vast te stellen afzonderlijke vergoeding aan verhuurder verschuldigd, ter compensatie van het nadeel dat verhuurder lijdt dan wel zal lijden, omdat de omzetbelasting op de investeringen en exploitatiekosten van verhuurder niet (meer) aftrekbaar is.

OPLEVERING

In overleg, 1e kwartaal 2025.

INTERESSE?

DKZ Bedrijfshuisvesting B.V.

Ohmweg 57f

Alblasserdam

tel. :

e-mail :

Deze informatie is zorgvuldig samengesteld, echter alle genoemde oppervlakte zijn indicatief en aan de hierbij verstrekte gegevens kunnen geen rechten worden ontleend.

Deze informatie mag niet als een aanbieding of offerte worden beschouwd.

Bereikbaarheid

Tram, bus, metro
  • Hoogendijk 2 min. lopen

Bijlagen

De aanbieder van dit object heeft een PDF Brochure beschikbaar gesteld.

Vraag brochure aan