Resultaten laden ...

Van Utrechtweg 20 y 343 m2 bedrijfsruimte te koop in Krimpen aan den IJssel

Kenmerken

Prijs € 630.000 v.o.n.
Functie Bedrijfsruimte
Onderhoud buiten Uitstekend
Onderhoud binnen Uitstekend
Wijk / Buurt Oud Krimpen
Bedrijventerrein Stormpolder

Algemeen:

Op Industrieterrein 'Stormpolder' in Krimpen aan den IJssel worden 12 hoogwaardige bedrijfsunits gerealiseerd, met een aantrekkelijke eigentijdse uitstraling. Deze bedrijfsunits zijn ideaal voor eigen gebruik door een ondernemer maar ook als belegging. Er zijn nog 3 ruime bedrijfsunits voor verkoop beschikbaar: deze hebben een oppervlakte van totaal circa 169 m² tot 343 m² verdeeld over 2 bouwlagen. Het is mogelijk om units te koppelen.

Standaard zijn de units voorzien van een overheaddeur met loopdeur en verdiepingsvloer. De units zijn multifunctioneel, flexibel in te delen en perfect geschikt als werkplaats en opslagruimte.

De units hebben een hoogte van circa 8 meter (exclusief 1e verdieping) en zijn voorzien van een elektrische overheaddeur. De toegang van het pand wordt mogelijk gemaakt door een aparte loopdeur in de aluminium entree pui. De maximale vloerbelasting van de begane grondvloer bedraagt ca. 1.500 kg/m².

- de bedrijfsunits staan op eigen grond

- parkeerplaatsen behoren tot het aan te kopen perceel

- prijzen zijn excl. BTW en vrij op naam (VON) dus geen overdrachtsbelasting van toepassing

- afmetingen zijn circa en op basis van het bruto oppervlakte

- verkoopprijzen zijn op basis van casco levering

Bereikbaarheid:

Net over de Algerabrug en langs de N210 bevind zich het industriegebied "Stormpolder". Op deze locatie vind u ondernemingen van het grote Hollandia en IHC tot aan de middenstand uit de bouw en industrie. Het industriegebied is goed te bereiken via een busverbinding naar metrostation Capelsebrug en Gouda, de waterbus richting de Drechtsteden en Rotterdam. Met de auto via de N210.

Beschikbaarheid:

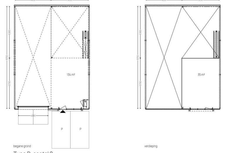
Type b: totaal 169 m²

134 m² begane grond / 35 m² 1e verdieping

2 parkeerplaatsen

huisnummers 20 W en 20 X

€ 420.000,- v.o.n.

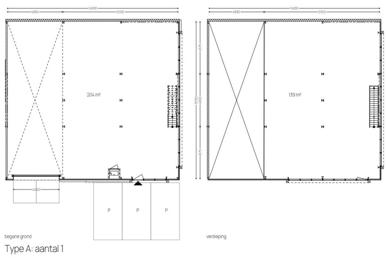
Type a: totaal 343 m²

204 m² begane grond / 139 m² 1e verdieping

3 parkeerplaatsen

huisnummer 20 Y

€ 630.000,- v.o.n.

Nota bene:

- vierkante meters zijn circa en bruto;

- de units bestaan uit 2 bouwlagen;

- koopsommen zijn exclusief omzetbelasting;

- makelaarskosten en notariskosten zijn in de koopsom inbegrepen;

- overdrachtsbelasting is bij nieuwbouw niet van toepassing (Vrij Op Naam);

- kosten voor financiering en eventuele aankoopmakelaar zijn voor rekening koper;

- unit 20 y: het buitenterrein van deze unit kan niet afsluitbaar gemaakt worden met een hek.

Vrije hoogte:

De units beschikken over een vrije hoogte van ca. 8 m1 meter op de begane grond, op het deel waar geen verdiepingsvloer boven ligt.

Maximale vloerbelasting:

Ca. 1.500 kg per m² op de begane grond en

ca. 350 kg per m² op de verdiepingsvloeren.

Het opleveringsniveau zal cascomatig geschieden, derhalve zonder (technische) installaties (wind- en waterdicht, de dragende constructie plus complete buitenafwerking), doch reeds voorzien van:

- elektrisch bedienbare overheaddeur met loopdeur;

- monolithisch afgewerkte betonvloer op de begane grond (vlakheidsklasse 5);

- kanaalplaat verdiepingsvloer en niet afgewerkt, naden gevuld met beton;

- afgedopte rioolaansluiting onder de trap;

- afgedopte waterleiding vanuit de meterkast onder de trap;

- mantelbuizen: 1 voor elektra, 1 voor data, 1 voor wateraansluiting en 1 voor loze buis.

- de bedrijfsunits beschikken bij oplevering over een elektrameter en een watermeter

Zie voor de complete weergave bouwkundig opleveringsniveau de technische omschrijving.

Bebouwing:

Staat omschreven in de technische omschrijving. Vraag deze aan voor meer informatie.

Afbouw op maat:

Afbouw op maat is mogelijk via meerwerk.

Projectnotaris:

Elan Notarissen te Bergambacht zal de juridische afwikkeling begeleiden. De koop van een unit wordt vastgelegd in een koop- aannemingsovereenkomst. Deze overeenkomsten zullen naar de notaris gestuurd worden waarna de notaris de akte van levering opstelt, ook wel de ‘leveringsakte genoemd’.

Vastlegging koop

De koop zal worden vastgelegd door middel van een koop-/aannemingsovereenkomst, die opgesteld wordt door van Herk Bedrijfsmakelaars.

Betalingstermijnen

De koop-/aanneemsom bestaat uit de volgende termijnen:

1. grondkosten (100%) bij de notariële levering van de grond

2. bij aanvang werkzaamheden: 30% van de aanneemsom

3. bij betonvloer gereed: 15% van de aanneemsom

4. bij staalconstructie gereed: 15% van de aanneemsom

5. bij verdiepingsvloer gereed: 15% van de aanneemsom

6. bij dakbedekking gereed: 15% van de aanneemsom

7. 14 dagen voor oplevering: 10% van de aanneemsom

Meerwerk: 50% bij de 3e termijn, 50% bij de laatste termijn

Alle genoemde bedragen zijn exclusief omzetbelasting.

Vereniging van Eigenaren (VvE):

Om de kwaliteit binnen het complex te waarborgen zal er een VvE worden opgericht. Alle eigenaren worden hier automatisch lid van.

Start bouw:

De bouw start in september 2025. Oplevering staat gepland voor februari 2026.

Aannemer:

AGB Bouw uit Stolwijk.

Bestemmingsinformatie:

Bestemmingsplan 'Stormpolder' van de Gemeente Krimpen aan den IJssel onherroepelijk d.d. 13-06-2013

Bestemming: Bedrijventerrein

Functieaanduiding: bedrijf tot en met categorie 3.2

Voor detailinformatie:

Al het bovenstaande betreft informatie omtrent de verkoop van Van Utrechtweg 20 n tot en met y te Krimpen aan den IJssel. De informatie is met zorg samengesteld, maar voor de juistheid ervan kan door Van Herk Bedrijfsmakelaars geen aansprakelijkheid worden aanvaard noch aan de vermelde gegevens enig recht worden ontleend. Nadrukkelijk is vermeld dat deze informatieverstrekking niet als een aanbieding of offerte mag worden beschouwd.

De in kleur afgebeelde gevelaanzicht is een impressie, zodat hieraan geen rechten ontleend kunnen worden. Indien de opgegeven grootte (ondermaat/overmaat) van de onroerende zaak niet juist is, ontleent geen van partijen daaraan rechten.

Bereikbaarheid

Tram, bus, metro
  • Van Utrechtweg 1 min. lopen
  • Van der Giessenweg 3 min. lopen
  • Hollandia 3 min. lopen
  • Stormsweg 5 min. lopen
  • Van der Hoopstraat 5 min. lopen

Bijlagen

De aanbieder van dit object heeft een PDF Brochure beschikbaar gesteld.

Dit object is verkocht, brochure is niet meer beschikbaar.

Vraag brochure aan