Venenweg 1
                
            
            169 m2 bedrijfsruimte te koop in Zwanenburg
 
                        
                    
                
            
        
        
    
    
        
            
                
                    
                        
                             
                        
                    
                
            
        
        
    
    
        
            
                
                    
                        
                             
                        
                    
                
            
        
        
    
    
        
            
                
                    
                        
                             
                        
                    
                
            
        
        
    
    
        
            
                
                    
                        
                             
                        
                    
                
            
        
        
    
    
        
            
                
                    
                        
                             
                        
                    
                
            
        
        
    
                                Kenmerken
| Prijs | € 289.500 v.o.n. | 
| Functie | Bedrijfsruimte | 
| Onderhoud buiten | Uitstekend | 
| Onderhoud binnen | Uitstekend | 
| Wijk / Buurt | Zwanenburg-Dijk | 
| Bedrijventerrein | De Weeren | 
1 eenheid beschikbaar
1 eenheid beschikbaar
Omschrijving
Omschrijving
                                        HOOGWAARDIGE NIEUWBOUW BEDRIJFSUNITS TE KOOP
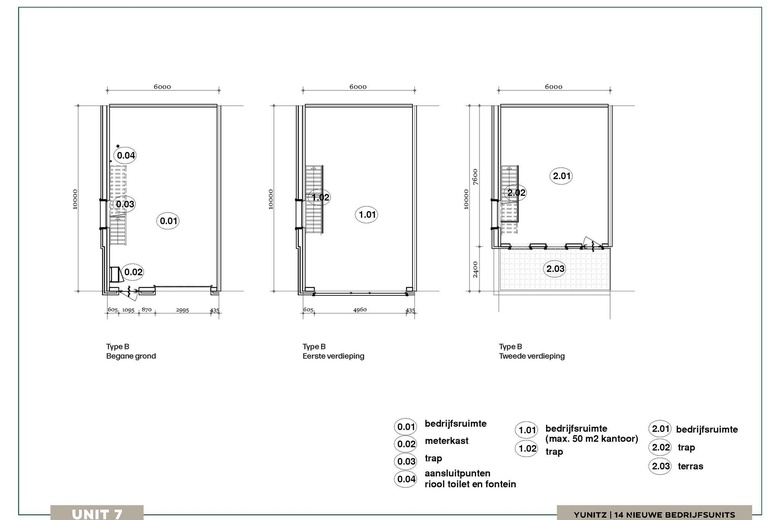
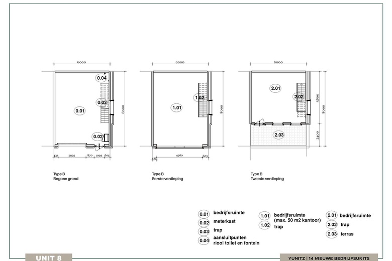
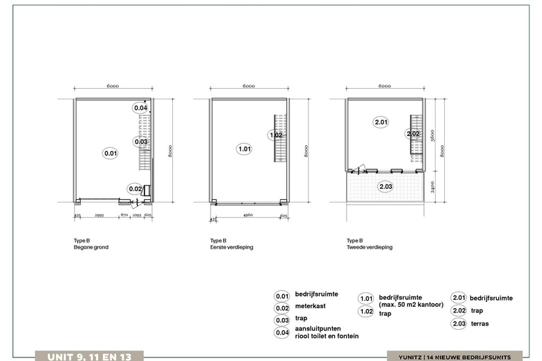
Units vanaf totaal 132,6 m² verdeeld over 3 lagen
Elke unit is voorzien van een dakterras
Te koop vanaf € 289.500,- v.o.n. excl. BTW
2 of 3 parkeerplaatsen per unit
Eigen grond.
De 14 gasloze bedrijfsunits hebben twee verdiepingen en bieden vele mogelijkheden. De locatie en ruimten lenen zich uitstekend voor bedrijven in de handel, productie, logistiek of dienstverlening. Bereikbaarheid:
Strategisch gelegen tussen de economische centra van Amsterdam en Haarlem. Via de nabijgelegen A200, A9 en A5 snel en gemakkelijk bereikbaar. Ook Schiphol is binnen 10 minuten te bereiken, wat de locatie ideaal maakt voor bedrijven met internationale relaties of logistieke behoeften. Op slechts enkele minuten loopafstand bevindt zich NS-station
Halfweg-Zwanenburg, met directe verbindingen naar Amsterdam Centraal en Haarlem. Nog beschikbaar:
no. 1 en 7 hoekunits totaal 168,6 m²: 61,2 m² bgg, 61,2 m² 1e verd., 46,2 m², 2e verd., 3 pp, € 389.000,-*
no. 2 tot 6 tussenunits totaal 168,6 m²: 61,2 m² bgg, 61,2 m² 1e verd., 46,2 m² 2e verd., 3 pp, € 375.000,-*
no. 14 hoekunit totaal 132,6 m²: 49,2 m² bgg, + 49,2 m² 1e verd. + 34,2 m² 2e verd, 2 pp, € 299.000,-*
no. 9 en 13 tussenunits totaal 132,6 m²: 49,2 m² bgg, + 49,2 m² 1e verd. + 34,2 m² 2e verd., 2 pp, € 289.500,-*
* de genoemde koopsom is v.o.n. te vermeerderen met BTW.
Alle genoemde metrage is BVO.
Alle units hebben een dakterras van 14,4 m²
Plattegrondtekeningen op aanvraag verkrijgbaar. Parkeren:
Zie bovengenoemd overzicht voor de bijbehorende parkeerplaatsen (pp) per unit.
Er zijn totaal 6 parkeerplaatsen te koop voor € 12.500 v.o.n. te vermeerderen met BTW per parkeerplaats. Oplevering:
De units worden casco opgeleverd en zijn onder meer voorzien van:
- elektrische overheaddeur
- voorbereiding vloerverwarming
- meterkast met elektra-aansluiting (3 x 25A)
- draai- en kiepramen op de verdiepingen
- vloerbelasting begane grond: 1.000 kg/m², 1e verdieping 500 kg/m² en 2e verdieping 250 kg/m²
Voor het exacte opleveringsniveau verwijzen wij u naar de technische omschrijving (op aanvraag verkrijgbaar). Bestemming
De projectlocatie maakt deel uit van het bestemmingsplan “Zwanenburg West en de Heeren” en heeft als enkelbestemming ‘Bedrijventerrein’. De locatie is daarmee bestemd voor bedrijven en bedrijfsactiviteiten die zijn genoemd in bedrijvenlijst tot en met milieucategorie 3.2.
Koper dient zelf te toetsen of de beoogde activiteiten passen binnen het vigerende bestemmingsplan. Waarborgsom:
Een koper dient binnen 10 dagen na ondertekening van de overeenkomst een waarborgsom van 10% van de koopsom over te maken naar het notariskantoor dat het transport verzorgt. Betaling:
De betaling vindt plaats in termijnen. De eerste termijn betreft de aankoop van de grond. Naar mate de bouw vordert worden de verschillende termijnen in rekening gebracht. In het geval er een hypothecaire lening is afgesloten zal de bank doorgaans de betalingen verrichten. Nutsvoorzieningen:
De aansluitingen t.b.v. water en elektra worden tot in de meterkast aangelegd. De gebruiker is zelf verantwoordelijk voor het aanvragen van de aansluitingen bij de desbetreffende nuts bedrijven. Aansluitkosten zijn voor rekening van de gebruiker/koper. Vereniging van eigenaars:
Zoals gebruikelijk bij een bedrijfsverzamelgebouw wordt het geheel gesplitst in appartementsrechten. Kopers zijn automatisch lid van de vereniging van eigenaars die beheerd wordt door een externe beheerder. Iedere eigenaar heeft stemrecht in de vereniging. De vereniging is er om de kwaliteit van het complex te waarborgen. Zaken die geregeld kunnen worden binnen de VVE zijn bijvoorbeeld:
- Opstalverzekering
- Aansprakelijkheidsverzekering
- Onderhoudsreserveringen voor met name het dak.
Er zal € 250,- exclusief btw aan opstartkosten VvE in rekening worden gebracht per unit. Disclaimer
Hoewel aan de samenstelling en inhoud van deze omschrijving de grootst mogelijke zorg is besteed, kan de uitgever niet aansprakelijk worden gesteld voor onverhoopte fouten en gebreken, noch kunnen aan de inhoud rechten worden ontleend. De gebruikte afbeeldingen betreffen artist impressions. De uiteindelijke feitelijke situatie kan afwijken ten opzichte van deze artist impressions. De vermelde informatie is van algemene aard.
Aan deze informatie kunnen geen rechten worden ontleend.
Bijlagen
Aanbevolen voor u
Bekijk 
                                            
                                                bedrijfsruimte in Zwanenburg
                                             of bekijk deze panden:
                                        
                                    
                                    
                                
 
                
            
        
    
    
                                            
                                         
                
            
        
    
    
                                            
                                         
                
            
        
    
    
                                            
                                         
                
            
        
    
    
                                            
                                         
                
            
        
    
    
                                            
                                         
                
            
        
    
    
                                            
                                         
                
            
        
    
    
                                            
                                         
                
            
        
    
    
                                            
                                         
                
            
        
    
    
                                            
                                         
                
            
        
    
    
                                            
                                         
                
            
        
    
    
                                            
                                         
                
            
        
    
    
                                            
                                         
                
            
        
    
    
                                            
                                         
                
            
        
    
    
                                            
                                         
                
            
        
    
    
                                            
                                         
                
            
        
    
    
                                            
                                         
                
            
         
                
            
         
            
            
                 
            
            
                