Resultaten laden ...

Voltweg 0 ong

101 m2 bedrijfsruimte te koop in Hoogerheide

Kenmerken

Prijs € 169.900 v.o.n.
Functie Bedrijfsruimte
Onderhoud buiten Uitstekend
Onderhoud binnen Uitstekend
Wijk / Buurt Industrieterrein De Kooy
Bedrijventerrein DE KOOI

16 moderne flexibele bedrijfsunits - flexibel, duurzaam en centraal gelegen!

Grijp nu uw kans om uw bedrijf te vestigen of uit te breiden op het dynamische bedrijventerrein "De Kooi". Aan de Voltweg 3 wordt dit moderne en hoogwaardig bedrijvencentrum gerealiseerd, bestaande uit 16 multifunctionele en koppelbare units.
Deze units bieden een unieke combinatie van kwaliteit, veelzijdigheid en een uitstekende bereikbaarheid.

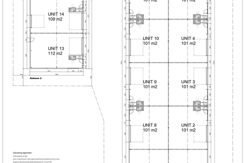
UNIT    Bruto vloeropp. begane grond             
1             101 m²                                     
2             101 m²                                      
3             101 m²                                     
4             101 m²                                   
5             101 m²                                      
6             101 m²         
7             101 m²                                     
8             101 m²                                      
9            101 m²                                     
10           101 m²                                   
11           101 m²                                      
12           101 m²   
13           112 m²                                   
14           109 m²                                      
15           109 m²     
16           112 m²    

4 unit's bieden een eigen, afgesloten buitenterrein:
Unit 13: 123 m² (gelegen aan de zij- en achterkant)
Unit 14: 34 m² (gelegen aan de achterkant)
Unit 15: 34 m² (gelegen aan de achterkant)
Unit 16: 123 m² (gelegen aan de zij- en achterkant)                      

KOOPSOM
Vanaf € 169.900,- V.O.N. exclusief BTW.
VVE kosten worden later bepaald.

Een Strategische Toplocatie
De bedrijfsunits zijn strategisch gelegen op het levendige bedrijventerrein "De Kooi", op korte afstand van de snelweg A4/A58. Hierdoor zijn steden als Antwerpen, Rotterdam en Breda binnen handbereik. Het terrein kent een mix van nationaal en internationaal opererende bedrijven en biedt, mede door de nabijheid van Vliegbasis Woensdrecht, extra zakelijke kansen.

Flexibiliteit en Maatwerk
De 16 units zijn ontworpen met flexibiliteit als uitgangspunt. Met oppervlaktes variërend van 101 m² tot 112 m², kunt u de unit kiezen die perfect aansluit bij uw bedrijfsbehoeften. Bovendien zijn de units koppelbaar, waardoor u uw bedrijfsruimte
kunt uitbreiden tot 600 m² of zelfs meer. De units kunnen optioneel worden voorzien van een verdiepingsvloer, die u naar eigen wens kunt indelen.

Locatie & Flexibiliteit
Op een absolute toplocatie, uitstekend bereikbaar via de A4 en A58. Steden als Bergen op Zoom, Rotterdam en Antwerpen zijn binnen korte tijd te bereiken. Elke unit beschikt over een eigen voorterrein met parkeerplaatsen direct voor de deur.
De units zijn flexibel in te delen en te combineren tot oppervlakten van ca. 100 m² tot 600 m² of meer. De verdiepingsvloer kan volledig naar wens worden ingericht, zodat de ruimte perfect aansluit op de bedrijfsbehoefte.

Hoogwaardige Specificaties
Gebouwd met kwaliteit en duurzaamheid als uitgangspunt. De robuuste staalconstructie en zwaar belastbare betonvloer (1.500 kg/m²) maken de units geschikt voor uiteenlopende bedrijfsactiviteiten.
Met een vrije hoogte van 6,5 meter en hoge isolatiewaarden is er volop ruimte, comfort en energiezuinigheid. Brede raampartijen en lichtvensters in de overheaddeur zorgen voor een prettige werkomgeving. Het dak is voorbereid op zonnepanelen. Geschikt voor bedrijven tot milieucategorie 3.2.

Complete Voorzieningen
Elke unit is voorzien van een elektrische overheaddeur, krachtstroom (3x25A), water- en internetaansluiting, en aansluitingen voor toilet en pantry. Buitenverlichting met schemerschakelaar draagt bij aan een veilige omgeving.

Financieel & Oplevering
De units worden aangeboden vrij op naam (V.O.N.) – u betaalt geen overdrachtsbelasting.
Dankzij de centrale ligging, hoogwaardige afwerking en flexibele indelingsmogelijkheden zijn de units aantrekkelijk als belegging of voor eigen gebruik.
Oplevering gepland eind 2026 (onder voorbehoud).

Bijlagen

De aanbieder van dit object heeft een PDF Brochure beschikbaar gesteld.

Vraag brochure aan