Resultaten laden ...

Voorwillenseweg 63 1.289 m2 bedrijfsruimte te koop in Gouda

Kenmerken

Prijs € 24.115 v.o.n.
Functie Bedrijfsruimte
Onderhoud buiten Uitstekend
Onderhoud binnen Uitstekend
Wijk / Buurt Voorwillenseweg

Betreft

Nieuwbouw moderne en duurzame opslagruimtes gelegen op de 1e en 2e verdieping aan de Voorwillenseweg 63 te Gouda.

De opslagunits op de begane grond zijn inmiddels allemaal verkocht. Op de 1e en 2e verdieping zijn 18 diverse functionele opslagunits beschikbaar in afmeting variërend van vanaf 18,5 m² tot 68,5 m². Deze units zijn bereikbaar middels een goederenlift. Het combineren van units is mogelijk. Het bestemmingsplan biedt ruimte aan bedrijven in milieu categorie 1 en 2.

Kadastrale gegevens

Gemeente : Gouda

Sectie : K

Nummer : 5820

Grootte : 1.669 m²

Oplevering

De oplevering staat gepland voor het 1e kwartaal van 2026

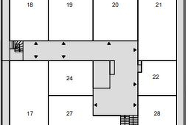
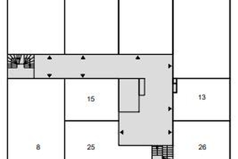
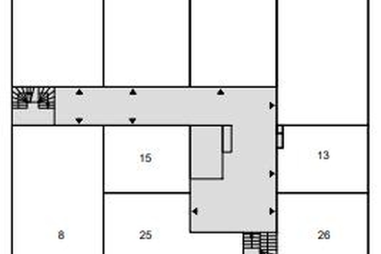
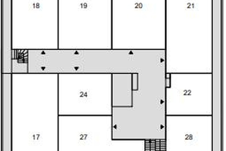
Indeling/koopsom

Unit Netto oppervlakte m² Verdieping Koopsom* Status

25 39 m² 1e verdieping € 67.841,= Beschikbaar

8 55 m² 1e verdieping € 95.673,= Beschikbaar

9 55 m² 1e verdieping € 95.673,= Beschikbaar

10 53 m² 1e verdieping € 92.194,= Beschikbaar

11 53 m² 1e verdieping € 92.194,= Beschikbaar

12 68,5 m² 1e verdieping € 119.156,= Beschikbaar

13 23 m² 1e verdieping € 40.009,= Beschikbaar

26 31 m² 1e verdieping € 53.925,= Beschikbaar

15 22,5 m² 1e verdieping € 39.139,= Beschikbaar

27 29,5 m² 2e verdieping € 38.453,= Beschikbaar

17 39 m² 2e verdieping € 50.837,= Beschikbaar

18 39 m² 2e verdieping € 50.837,= Beschikbaar

19 47 m² 2e verdieping € 61.265,= Beschikbaar

20 47 m² 2e verdieping € 61.265,= Beschikbaar

21 50 m² 2e verdieping € 65.175,= Beschikbaar

22 18,5 m² 2e verdieping € 24.115,= Beschikbaar

28 20,5 m² 2e verdieping € 26.722,= Beschikbaar

24 22,5 m² 2e verdieping € 29.329,= Beschikbaar

*de koopsom is V.O.N. en exclusief BTW

Opleveringsniveau

De opslagunits op de 1e en 2e verdieping worden opgeleverd inclusief de navolgende voorzieningen:

- Gezamenlijk entree op de begane grond middels een elektrisch bedienbare overheaddeur (3,30 breed x 3,35 hoog);

- Separate loopdeur;

- Goederenlift met een maximale belasting van 2.000 kg;

- Stalen trappen naar verdiepingen;

- Algemeen toilet voorzien van wateraansluiting en afvoer op de begane grond;

- Hoofdaansluitingen voor elektra per verdieping;

- Verwarming en koeling middels een luchtbehandelingskast;

- Betonvloer met een vloerbelasting van 500 kg/m²;

- Vrije hoogte 2,90 m.

Vereniging van eigenaren

Er zal een Vereniging van Eigenaren worden opgericht. De periodieke bijdrage en de opstartkosten voor de VVE zullen nog worden vastgesteld.

Parkeren

De bij het object behorende parkeerplaatsen zijn voor algemeen gebruik.

Huur

Huur behoort tot de mogelijkheden, voorwaarden in overleg.

Algemeen

Ondanks de zorg en aandacht die wordt besteed aan de samenstelling van deze projectinformatie en de hierin opgenomen gegevens, kan Goud Bedrijfshuisvesting niet instaan voor de volledigheid, juistheid of voortdurende actualiteit van de gegevens en wijst iedere vorm van aansprakelijkheid van de hand voor onvolkomenheden, onvolledigheden, dan wel onjuistheden in de weergegeven informatie. Nadrukkelijk is vermeld dat deze informatie niet als een aanbieding of offerte mag worden beschouwd.

Bereikbaarheid

Tram, bus, metro
  • Dunantsingel 5 min. lopen
  • Hertzogstraat 8 min. lopen
  • De Kortestraat 8 min. lopen
  • Doorslag 8 min. lopen
  • Bothastraat 9 min. lopen