Kerkweg 18
1.511 m2 horeca te huur in Haarle
Kenmerken
| Functie | Horeca |
| Secundair gebruik | Hotel |
| Contract Type | Direct |
| Wijk / Buurt | Dorp Haarle |
| Bouwjaar | 1985 |
1 eenheid beschikbaar
1 eenheid beschikbaar
- Eenheid
- Oppervlakte
- Huurprijs
- Gebruik
- Verdieping Begane grond
- 1.511 m2
- Prijs op aanvraag
- Horeca
| OPPERVLAKTE | 1.511 m2 |
Omschrijving
Omschrijving
Hotel de Haarlerberg
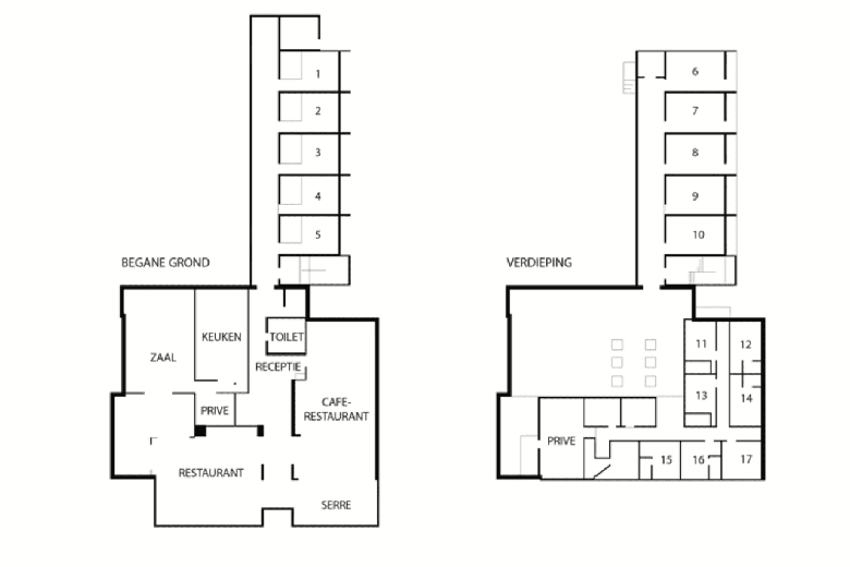
Aan de voet van de Haarlerberg en onderdeel van de Sallandse Heuvelrug is hotel de Haarlerberg gelegen. Een markant en goed onderhouden bedrijfspand in het centrum van Haarle. Fraaie voorgevel met een mooie frontbreedte. Voorzien van serre een groot terras over de gehele frontbreedte. Gunstig gelegen in het centrum en goede verbinding met de rijksweg N35. Haarle kenmerkt zich door de bosrijke omgeving en telt 2.155 inwoners (meting 2018). De gemeente bestaat uit de kernen Nijverdal, Hellendoorn, Daarlerveen en Daarle. Het bedrijfspand: Horecaruimte Het betreft een entree met toegang tot een keurig moderne hal met receptie, restaurant en zaal. Zowel aan de linker- als de rechtervoorzijde van het pand is een serre gesitueerd. Achter de serre bevindt zich links het restaurant en rechts de zaalruimte. Wat maakt dat diverse activiteiten gelijktijdig kunnen plaatsvinden. De keuken is centraal gelegen, biedt direct toegang tot het restaurant en qua routing prima gesitueerd. Vanaf de buitenzijde van het pand is directe bevoorrading mogelijk. Aan de achterzijde van de receptie is een gescheiden dames en herentoiletgroep aanwezig en biedt het toegang tot het hotelgedeelte. Op de begane grond bevinden zich vijf keurig onderhouden hotelkamers. Tevens zijn er op de begane grond diverse dienstruimten aanwezig. De kelder, welke toegankelijks is middels een vaste trap is in gebruik als opslagruimte (voormalige zaalruimte). De eerste verdieping, welke toegankelijk is middels een vaste trap bestaat uit een overloop met twaalf hotelkamers en enkele dienstruimten. Hotelkamers Alle hotelkamers zijn op driesterrenniveau ingericht. Vijf hotelkamers zijn op de begane grond en twaalf op de eerste verdieping gesitueerd. Op de begane grond zijn de vijf kamers voorzien van terras met uitzicht op de tuin. De bovenliggende hotelkamers (vijf ) zijn voorzien van een balkon. Bedrijfswoning: Aan de voorzijde van het pand bevindt zich op de eerste verdieping een bedrijfswoning, voorzien van een zelfstandige entree. De woning is als volgt ingedeeld: Een gang met woonkamer en keuken, slaapkamers, badkamer, wasruimte en dakterras. Situering: Het betreft een vrijstaand pand in het centrum van Haarle. Aan de linkerzijde vanhet pand bevindt zicht een woning, rechts een appartementencomplex en aan de voorzijde een openbare parkeerplaats. Aan de achterzijde bevinden zich tevens woningen. Haarle is omringd door de Sallandse Heuvelrug, Nijverdal, Hellendoorn en Raalte. Omgeving: Hotel de Haarlerberg hotel ligt aan de voet van de Haarlerberg en aan de rand van het natuurgebied de Sprengenberg. De Sprengenberg ligt aan de westzijde van de Sallandse heuvelrug. Het bestaat uit uitgestrekte heidevelden met prachtige vergezichten, bossen, weilanden, waar Schotse Hooglanders lopen, en de Haarlerenk met schaapskooi en bouwlanden. Het 900 ha. grote natuurgebied wordt sinds 1985 door Natuurmonumenten beheert. Deze organisatie heeft er verschillende wandelroutes uitgezet en organiseert er regelmatig excursies met Haarle als vertrekpunt, dus makkelijk te bereiken vanaf ons hotel. Financiële informatie Huurprijs : nader overeen te komen Huurtermijn in overleg Inclusief bedrijfswoning Mogelijke Herontwikkeling Naast de huidige invulling van de Haarlerberg bestaat er bij eventuele herontwikkeling van het pand de mogelijkheid om een kleinere horecaruimte te realiseren, bijvoorbeeld geschikt voor een brasserie, lunchroom of vergelijkbaar concept.Heeft u interesse in een dergelijke invulling? Dan komen wij graag met uw in gesprek om samen de mogelijkheden te bespreken.
Verwachting: Huurder /exploitant dient over eigen vermogen te beschikken om huurwaarborg en aanpassingen t.a.v. de bedrijfsvoering te bekostigen, huur van het geheel is inclusief de huidige inventaris. Disclaimer & contactinformatie: Er heeft door JLC Horeca geen controle plaatsgevonden op juistheid van de gegevens. Aan de in deze aanbieding vermelde maten kunnen geen rechten worden ontleend. Niets uit deze aanbieding mag op welke wijze dan ook worden vermenigvuldigd en/of gekopieerd dan na schriftelijke toestemming van JLC Horeca. De informatie wordt vertrekt onder het voorbehoud van gunning en goedkeuring door de eigenaar van het hotel. Wij willen u vriendelijk verzoeken geen contact op te nemen met de eigenaar/ondernemers, het personeel, de accountant, leveranciers, brouwerijen en/of derden die in relatie staan tot de eigenaar/ondernemers. U kunt direct contact opnemen met JLC Horeca om een bezichtiging in te plannen of nadere informatie aan te vragen. Alle mondelinge en schriftelijke communicatie dient uitsluitend te verlopen via JLC Horeca