Munnikenhof 14 62 m2 horeca te huur in Heino
Kenmerken
| Huurprijs | Prijs op aanvraag |
| Functie | Horeca |
| Onderhoud buiten | Goed |
| Onderhoud binnen | Goed |
| Wijk / Buurt | Heino-West |
1 eenheid beschikbaar
1 eenheid beschikbaar
- Eenheid
- Oppervlakte
- Huurprijs
- Gebruik
Eenheid omschrijving
Druk bezocht Italiaans restaurant in hoekpand in het gezellige Heino.
In het gemoedelijke dorp Heino komt op een zeer mooie locatie dit kansrijke bedrijf gevestigd in een hoekpand beschikbaar. Op deze locatie wordt al 25 jaar lang het drukbezochte en enige Italiaanse restaurant in Heino La Dolce Vita geëxploiteerd. De huidige uitbaters geven met liefde het bedrijf over aan de nieuwe generatie.
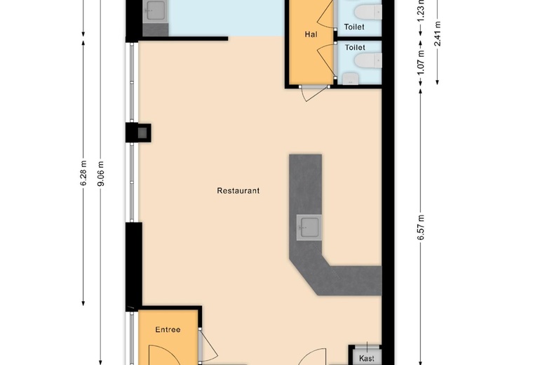
Het restaurant ligt aan het Marktplein en de gezellige Dorpsstraat, temidden van een ruim aanbod aan winkels en horeca. De oppervlakte van het object bedraagt 62 m². Het perceel waarop het adres ligt is 139 m² groot. De afgelopen jaren is de ruimte ingericht als huiselijk Italiaans restaurant. Er kunnen in het restaurant 25 gasten plaatsnemen. De zachte lichtinval aan beide zijden van het pand maakt de ambiance erg sfeervol. Er is een kleine bar gerealiseerd en een uitgifteplaats voor afhaalpizza’s. Zodra het weer het toelaat, kan er buiten een terras gecreëerd worden met plaats voor ongeveer 30 gasten.
Vraagprijs: prijs op aanvraag
| OPPERVLAKTE | 62 m2 |
| GEBRUIK | Horeca |
Omschrijving
Omschrijving
Druk bezocht Italiaans restaurant in hoekpand in het gezellige Heino.
In het gemoedelijke dorp Heino komt op een zeer mooie locatie dit kansrijke bedrijf gevestigd in een hoekpand beschikbaar. Op deze locatie wordt al 25 jaar lang het drukbezochte en enige Italiaanse restaurant in Heino La Dolce Vita geëxploiteerd. De huidige uitbaters geven met liefde het bedrijf over aan de nieuwe generatie.
Het restaurant ligt aan het Marktplein en de gezellige Dorpsstraat, temidden van een ruim aanbod aan winkels en horeca. De oppervlakte van het object bedraagt 62 m². Het perceel waarop het adres ligt is 139 m² groot. De afgelopen jaren is de ruimte ingericht als huiselijk Italiaans restaurant. Er kunnen in het restaurant 25 gasten plaatsnemen. De zachte lichtinval aan beide zijden van het pand maakt de ambiance erg sfeervol. Er is een kleine bar gerealiseerd en een uitgifteplaats voor afhaalpizza’s. Zodra het weer het toelaat, kan er buiten een terras gecreëerd worden met plaats voor ongeveer 30 gasten.
Vraagprijs: prijs op aanvraag
Bereikbaarheid
- Marktplein 2 min. lopen
- Marktplein richting Enschede 2 min. lopen
- Marktplein richting Zwolle 2 min. lopen
- Van der Capellenweg 7 min. lopen
- Het Sterrenrijk 7 min. lopen