Resultaten laden ...

St.Severusstraat 16 0 m2 horeca te koop in Boxtel

Kenmerken

Prijs € 325.000 k.k.
Functie Horeca
Onderhoud buiten Uitstekend
Onderhoud binnen Uitstekend
Wijk / Buurt Boxtel-Noord

Algemeen

Deze horecaruimte is gelegen op een prettige en goed bereikbare locatie in Boxtel, in een omgeving met een mix van wonen en lokale voorzieningen. In de directe nabijheid bevinden zich diverse dagelijkse voorzieningen zoals winkels, supermarkten en praktische services. Het centrum van Boxtel is op korte afstand gelegen en biedt een compleet aanbod aan detailhandel en voorzieningen. Daarnaast is de locatie goed ontsloten richting de belangrijkste uitvalswegen en is ook het openbaar vervoer in de omgeving aanwezig, wat zorgt voor een goede bereikbaarheid voor zowel bezoekers als personeel.

Bouwjaar

In 2014 volledig herbouwd.

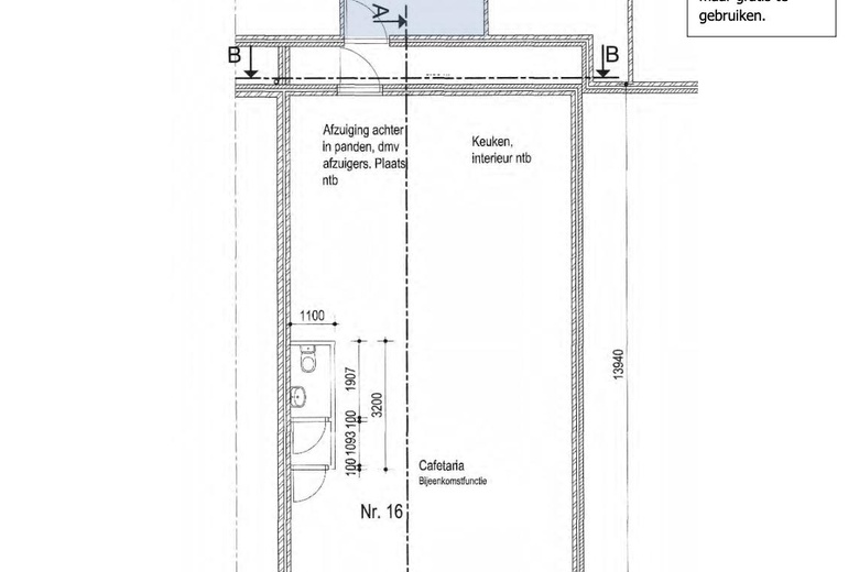
Vloeroppervlakte:

Horecaruimte eigendom : ca. 102 m²

Opslagruimte bruikleen : ca. 22 m²

Totaal : ca. 124 m²

Bestemming:

Het object valt binnen het bestemmingsplan “Boxtel-Noord”, vastgesteld op 2 december 2010, waarin het de bestemming “Gemengd-1” heeft gekregen met de aanduiding “horeca”. De voor “Gemengd 1” aangewezen gronden zijn bestemd voor:

a. gebouwen ten behoeve van:

1. detailhandel, zakelijke en maatschappelijke dienstverlening op de begane grond;

2. woningen al dan niet in combinatie met ruimte voor een aan-huis-verbonden beroep;

3. complementaire daghoreca op de begane grond;

4. horeca op de begane grond ter plaatse van de aanduiding “horeca” op de verbeelding;

5. coffeeshops, automatenhallen, discotheken, hotels en nachtclubs zijn niet toegestaan;

6. garageboxen, ter plaatse van de aanduiding “specifieke bouwaanduiding-garageboxen” op de verbeelding;

7. parkeervoorzieningen al dan niet ondergronds;

8. nutsvoorzieningen;

Voor een afschrift van dit bestemmingsplan kunt u contact met ons kantoor opnemen.

Frontbreedte:

Circa 7,5 meter.

Indeling

Entree aan de straatzijde, horecagedeelte met zitplaatsen, baliefunctie met bakwand voorzien van friteuses, doorgang naar spoelkeuken en opslagruimte. Een gedeelte van de opslagruimte is in bruikleen en geen eigendom.

Kadastrale gegevens

Gemeente : Boxtel

Sectie : M

Nummer : 819

Grootte : 118 m²

Voorzieningen

• Eigen meterkast met aansluitingen voor elektra, gas en water;

• Volledig ingericht cafetaria;

• Mogelijkheid tot het hebben van een terras aan de straatzijde;

• In 2014 geheel opnieuw opgebouwd;

• Systeemplafond met verlichting;

• Airconditioning;

• Koeling en vriezer;

• Tegelvloeren voorzien van vloerverwarming;

• Bakwand (5,5 meter breed), voorzien van 4 frituurketels met elk 4 mandjes, au bain-marie en spiegelbakplaat;

• Raspatatmachine;

• Koelvitrine met gekoelde ruimtes voorzien van deurtjes;

• Magnetron;

• Digitale tv schermen boven de bakwand;

• Kassasysteem met pinautomaat;

• Softijsmachine;

• Slagroom machine;

• Vaatwasser;

• Gasfornuis 6-pits en afzuigkap;

• Tafels en stoelen voor meer dan 50 gasten.

Parkeren

Ruim voldoende gratis parkeergelegenheid in de directe omgeving.

Achteruitgang

Achterom/nooduitgang tevens zonder extra kosten te gebruiken als opslagruimte (22 m²).

Ook voor leveringen achterom

Oplevering

In overleg, op korte termijn mogelijk.

Verkoopvoorwaarden

Wij bieden het object aan op basis van onder meer de volgende voorwaarden:

• Uitgangspunt is een zonder BTW belaste levering;

• De kosten verbonden aan de eigendomsoverdracht zijn voor rekening van de koper;

• Instrumenterend notaris is te bepalen door de koper;

• Een bankgarantie/waarborgsom ter grootte van 10% van de koopsom, te storten bij instrumenterend notaris uiterlijk 14 dagen na het ondertekenen van de koopovereenkomst.

Bereikbaarheid

Tram, bus, metro
  • Achterberghstraat 5 min. lopen
  • Parkweg 5 min. lopen
  • Molenwijkseweg 5 min. lopen
  • Dukaat 8 min. lopen
  • De Ketting 10 min. lopen

Bijlagen

De aanbieder van dit object heeft een PDF Brochure beschikbaar gesteld.

Vraag brochure aan