3e Binnenvestgracht 23 S 137 m2 kantoorruimte te huur in Leiden
Kenmerken
| Huurprijs | Prijs op aanvraag |
| Functie | Kantoorruimte |
| Onderhoud buiten | Goed |
| Onderhoud binnen | Goed |
| Wijk / Buurt | Levendaal-Oost |
1 eenheid beschikbaar
1 eenheid beschikbaar
- Eenheid
- Oppervlakte
- Huurprijs
- Gebruik
Eenheid omschrijving
Bedrijfsverzamelgebouw Nieuwe Energie is gevestigd in de prachtig gerenoveerde spinnerij van een voormalige textielfabriek. Dit geeft het pand een industriële uitstraling in combinatie met modern comfort. Speerpunten binnen Nieuwe Energie zijn communicatie, innovatie, design en duurzaamheid en dit is vertaald in zestien units waarin ondernemers zijn gevestigd uit onder andere de communicatie- en creatieve sector. Webdesigners, grafisch ontwerpers, uitgevers, architecten en communicatiespecialisten bij elkaar onder één dak. Kleine en middelgrote ondernemingen werken hier in zelfstandige units, maar kunnen ook elkaars samenwerking zoeken. Het pand beschikt over energielabel B.
Het betreft hier een kantoorruimte gelegen in een inspirerende kantooromgeving, nabij de historische Leidse binnenstad in monumentaal bedrijfsverzamelgebouw ‘Nieuwe Energie’. Het gebouw is recent geheel gerenoveerd en biedt onderdak aan onder andere 16 bedrijfsunits en woningcorporatie Portaal. Binnen het gebouw zijn diverse faciliteiten aanwezig waaronder een gezamenlijke receptie, vergaderzalen en een restaurant.
Locatie
Bedrijfsverzamelgebouw ‘Nieuwe Energie’ is prachtig gelegen aan de Maresingel in Leiden, op steenworp afstand van het Centraal Station en de binnenstad van Leiden.
Het object kenmerkt zich door de uitstekende bereikbaarheid met het openbaar vervoer en per auto. Het NS Station Leiden Centraal is gelegen op slechts 10 wandelminuten en biedt aansluiting op het intercitynet. Via dit station is Schiphol binnen 15 minuten bereikbaar. Direct naast het station bevindt zich een belangrijk knooppunt voor stads- en streekvervoer met regelmatige busverbindingen.
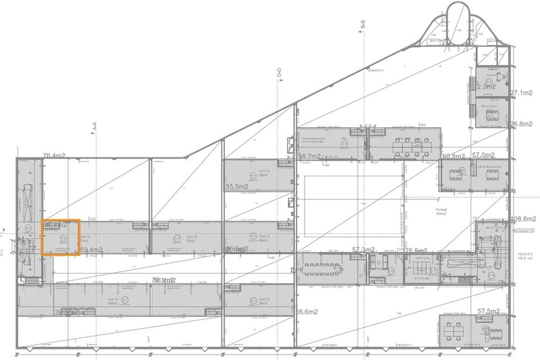
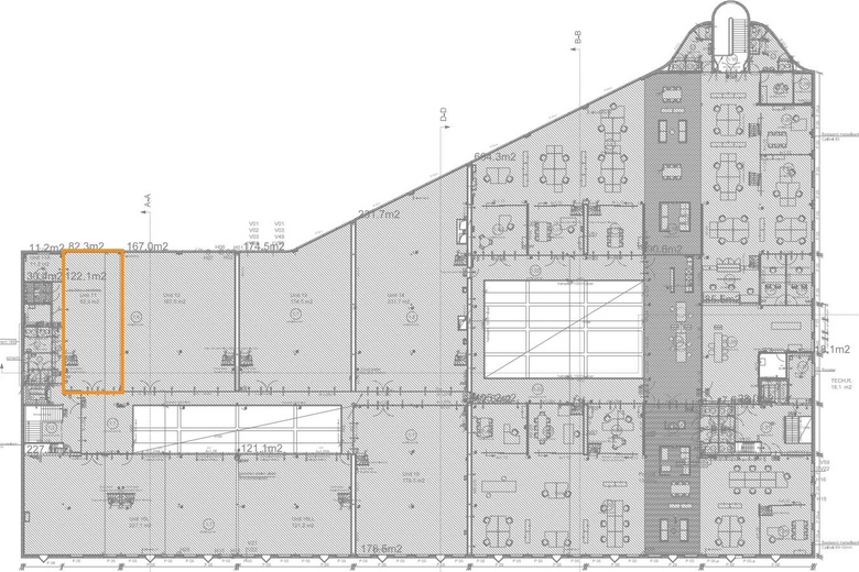
Oppervlak
137,59 m² VVO kantoorruimte beschikbaar.
Extra voor huurders
Huurders hebben het gebruiksrecht van gemeenschappelijke faciliteiten:
- een uitstekend restaurant (met wifi);
- een bemande centrale receptie.
Tegen betaling kunnen ook de zeer representatieve zalen voor bijvoorbeeld vergaderingen, congressen en presentaties worden gehuurd.
Wijze van oplevering
In huidige staat.
Bestemming/gebruik
Kantoorruimte.
Huurvoorwaarden
Vraaghuurprijs
Op aanvraag beschikbaar.
Servicekosten
€ 45,- per m² per jaar, te vermeerderen met de wettelijk verschuldigde omzetbelasting, gerekend over het verhuurbaar vloeroppervlak.
Huurdersvereniging
Ca. € 4,25 per m² per jaar, gerekend over het verhuurbaar vloer oppervlak.
Doelstelling huurdersvereniging: het stimuleren van onderlinge contacten tussen huurder en medewerkers. Daarnaast organiseert de huurdersvereniging een aantal activiteiten:
- regelmatig een nieuwsbrief;
- regelmatig een borrel;
- regelmatig een ondernemerslunch.
Huurtermijn
5 jaar + 5 verlengingsjaren.
Huurprijsbetaling
Per maand vooruit.
Huurprijsaanpassing
Jaarlijks, per 1 juli, conform het prijsindexcijfer Alle Huishoudens (2015=100), gepubliceerd door het Centraal Bureau voor de Statistiek te Voorburg/Heerlen.
Zekerheidstelling
Bij ondertekening van de huurovereenkomst zal huurder een bankgarantie stellen of waarborgsom storten ter grootte van een bruto betalingsverplichting van drie maanden huur.
Huurcontract
Model ROZ (Raad voor Onroerende Zaken).
BTW
Verhuurder wenst te opteren voor BTW-belaste huur en verhuur. Ingeval huurder de BTW niet kan verrekenen zal de huurprijs in overleg met huurder worden verhoogd ter compensatie van de gevolgen van het vervallen van de mogelijkheid om te opteren voor BTW-belaste verhuur.
Aanvaarding
In overleg.
Energielabel
Energielabel B.
Parkeervoorzieningen
Diverse parkeergarages in de omgeving.
| OPPERVLAKTE | 137 m2 |
| GEBRUIK | Kantoorruimte |
Omschrijving
Omschrijving
Bedrijfsverzamelgebouw Nieuwe Energie is gevestigd in de prachtig gerenoveerde spinnerij van een voormalige textielfabriek. Dit geeft het pand een industriële uitstraling in combinatie met modern comfort. Speerpunten binnen Nieuwe Energie zijn communicatie, innovatie, design en duurzaamheid en dit is vertaald in zestien units waarin ondernemers zijn gevestigd uit onder andere de communicatie- en creatieve sector. Webdesigners, grafisch ontwerpers, uitgevers, architecten en communicatiespecialisten bij elkaar onder één dak. Kleine en middelgrote ondernemingen werken hier in zelfstandige units, maar kunnen ook elkaars samenwerking zoeken. Het pand beschikt over energielabel B.
Het betreft hier een kantoorruimte gelegen in een inspirerende kantooromgeving, nabij de historische Leidse binnenstad in monumentaal bedrijfsverzamelgebouw ‘Nieuwe Energie’. Het gebouw is recent geheel gerenoveerd en biedt onderdak aan onder andere 16 bedrijfsunits en woningcorporatie Portaal. Binnen het gebouw zijn diverse faciliteiten aanwezig waaronder een gezamenlijke receptie, vergaderzalen en een restaurant.
Locatie
Bedrijfsverzamelgebouw ‘Nieuwe Energie’ is prachtig gelegen aan de Maresingel in Leiden, op steenworp afstand van het Centraal Station en de binnenstad van Leiden.
Het object kenmerkt zich door de uitstekende bereikbaarheid met het openbaar vervoer en per auto. Het NS Station Leiden Centraal is gelegen op slechts 10 wandelminuten en biedt aansluiting op het intercitynet. Via dit station is Schiphol binnen 15 minuten bereikbaar. Direct naast het station bevindt zich een belangrijk knooppunt voor stads- en streekvervoer met regelmatige busverbindingen.
Oppervlak
137,59 m² VVO kantoorruimte beschikbaar.
Extra voor huurders
Huurders hebben het gebruiksrecht van gemeenschappelijke faciliteiten:
- een uitstekend restaurant (met wifi);
- een bemande centrale receptie.
Tegen betaling kunnen ook de zeer representatieve zalen voor bijvoorbeeld vergaderingen, congressen en presentaties worden gehuurd.
Wijze van oplevering
In huidige staat.
Bestemming/gebruik
Kantoorruimte.
Huurvoorwaarden
Vraaghuurprijs
Op aanvraag beschikbaar.
Servicekosten
€ 45,- per m² per jaar, te vermeerderen met de wettelijk verschuldigde omzetbelasting, gerekend over het verhuurbaar vloeroppervlak.
Huurdersvereniging
Ca. € 4,25 per m² per jaar, gerekend over het verhuurbaar vloer oppervlak.
Doelstelling huurdersvereniging: het stimuleren van onderlinge contacten tussen huurder en medewerkers. Daarnaast organiseert de huurdersvereniging een aantal activiteiten:
- regelmatig een nieuwsbrief;
- regelmatig een borrel;
- regelmatig een ondernemerslunch.
Huurtermijn
5 jaar + 5 verlengingsjaren.
Huurprijsbetaling
Per maand vooruit.
Huurprijsaanpassing
Jaarlijks, per 1 juli, conform het prijsindexcijfer Alle Huishoudens (2015=100), gepubliceerd door het Centraal Bureau voor de Statistiek te Voorburg/Heerlen.
Zekerheidstelling
Bij ondertekening van de huurovereenkomst zal huurder een bankgarantie stellen of waarborgsom storten ter grootte van een bruto betalingsverplichting van drie maanden huur.
Huurcontract
Model ROZ (Raad voor Onroerende Zaken).
BTW
Verhuurder wenst te opteren voor BTW-belaste huur en verhuur. Ingeval huurder de BTW niet kan verrekenen zal de huurprijs in overleg met huurder worden verhoogd ter compensatie van de gevolgen van het vervallen van de mogelijkheid om te opteren voor BTW-belaste verhuur.
Aanvaarding
In overleg.
Energielabel
Energielabel B.
Parkeervoorzieningen
Diverse parkeergarages in de omgeving.
Bereikbaarheid
- Plantage 2 min. lopen
- Kraaierstraat 2 min. lopen
- Hogewoerd 6 min. lopen
- Oosterkerkstraat 7 min. lopen
- Korevaarstraat 7 min. lopen