Resultaten laden ...

ABC Westland 145 - 149 307 m2 kantoorruimte te huur in Poeldijk

Kenmerken

Huurprijs € 5.075 /maand
Functie Kantoorruimte
Onderhoud buiten Uitstekend
Onderhoud binnen Uitstekend
Wijk / Buurt Verspreide huizen
Bedrijventerrein ABC Westland

Op bedrijventerrein ABC Westland te Poeldijk komt in het representatieve kantorencomplex 'Westlandse Poort' de gehele 4e verdieping beschikbaar voor de verhuur. Het moderne kantoor met label A++ biedt een mooi uitzicht over de omgeving en huisvest meerdere kantoorgebruikers en een openbare horecavoorziening op de begane grond. Ideaal voor de zakelijke lunch met uw relaties of collega's.

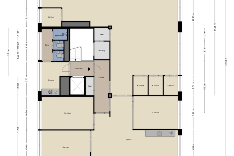
KANTOORRUIMTE

Via een representatieve entree op de begane grond bereikt u, per trap of lift, de kantoorruimte op de 4e verdieping. Het kantoor beslaat de hele 4e verdieping en beschikt daarmee over zelfstandige keuken- en sanitair voorzieningen. De totale oppervlakte is ca. 307 m2BVO (inclusief pantry en toiletgroep) en het kantoor is recentelijk geheel opnieuw ingericht en is daarmee onder meer voorzien van:

• 2 pantryruimtes met inbouwvoorzieningen

• Diverse werk- en spreekkamers voorzien van glazen scheidingswanden;

• Stilte cabines (belcellen);

• Serverruimte;

• Luchtbehandeling (voor koelen en verwarmen);

• Data- en elektra aansluitingen;

• Verlaagd plafond met LED lichtarmaturen;

• Voldoende natuurlijk lichtinval door grote raampartijen;

• Vloertapijt;

• Intercomsysteem;

• Elektrische zonwering;

• Zonwering inpandig.

De Westlandse Poort is verder toegankelijk via een tag-systeem en beveiligd door middel van een alarm- en brandmeldinstallatie. Tevens is het complex voorzien van een ruim parkeerterrein, welke eveneens toegankelijk is voor bezoekers.

BOUWJAAR

Het kantorencomplex is in 2010 gebouwd en opgeleverd.

PARKEREN

Bij het complex behoort een ruim parkeerterrein, welke eveneens toegankelijk is voor bezoekers. Er zijn laadpalen aanwezig op het parkeerterrein.

LIGGING EN BEREIKBAARHEID

Bedrijventerrein ABC Westland is gelegen in het hart van het Westland, waardoor belangrijke doorvoerhavens als de Port of Rotterdam en de Stena Line terminal Hoek van Holland uitstekend bereikbaar zijn.

Het bedrijventerrein huisvest een groot aantal ketenspelers binnen de Agri- en foodsector (AGF-sector), waardoor een sterke corridor van bedrijvigheid is gecreëerd op het terrein. Denk hierbij aan verpakkingscentra, import- en exportbedrijven, sorteerbedrijven, logistieke dienstverleners, koelhuizen, telersverenigingen en dienstverlenende bedrijvigheid.

Vanwege de ligging direct aan de Nieuweweg (N211) zijn de rijkswegen A20 en A4 per auto uitstekend bereikbaar. De bereikbaarheid met openbaar vervoer is goed te noemen. Aan de entree van het bedrijventerrein is de bushalte gelegen, waar busverbindingen 35 en 36 frequent langsrijden. Deze staan in verbinding met plaatsen als Naaldwijk, Midden-Delfland, Hoek van Holland, Schiedam en Den Haag.

BESTEMMING

Conform vigerend bestemmingsplan ‘Bedrijventerrein ABC Westland’ zijn op de locatie kantooractiviteiten toegestaan.

HUURPRIJS

De huurprijs van het object bedraagt € 5.074,61 excl. BTW per maand (prijspeil 1 januari 2026).

SERVICEKOSTEN

Het voorschot voor de servicekosten bedraagt € 75,- per m² per jaar excl. BTW. Dit komt neer op een bedrag van € 1.700,- excl. BTW per maand. De servicekosten hebben onder meer betrekking op:

• Glazenwassen van het gevelglas aan de buitenzijde alsmede het glas in de algemene ruimten;

• Het schoonmaken van de algemene ruimten;

• Groenonderhoud buitenterrein;

• Schoonmaak buitenterrein;

• Gladheidsbestrijding;

• Vuilafvoer door middel van het ledigen van de centraal geplaatste containers en het reinigen hiervan;

• Jaarlijkse kosten van liftonderhoud en liftkeuring door het liftinstituut;

• Kosten met betrekking tot het onderhoud van de klimaatinstallatie w.o. De luchtbehandeling, koeling, verwarming, e.d.;

• Jaarlijkse controle van de melders en centrale van de brandbeveiligingsinstallatie en de brandblusvoorzieningen;

• Leges en voorzieningen ten behoeve van de aansluiting op de brandweercentrale inzake aansluiting brandweer;

• Doormeldinstallatie via aansluiting meldkamer - telefoonlijn voor het doormelden van technische alarmen;

• Verzorgen beveiligingsdienst voor terreinbewaking;

• Het vervangen van de lampen in de algemene verkeersruimten, noodtrappenhuis en de technische ruimten;

• Verbruik elektra- en water in het gehuurde, alsmede het gebruik van elektra en water voor de collectieve voorzieningen zoals luchtbehandelings-, koelinstallatie en overige componenten;

• Kosten met betrekking tot het gas- en elektraverbruik van de cv-installatie;

• Glasverzekering t.a.v. De volledige buitenbeglazing;

• Kosten met betrekking tot het opnemen en onderhoud van alle energiemeters van warmtemeter alsmede de kosten voor het administreren en verwerken van de energiekosten;

• Over vermelde leveringen en diensten verschuldigde omzetbelasting;

• Administratiekosten over de bedoelde leveringen en diensten, verhoogd met de daarover verschuldigde omzetbelasting.

De huurprijs per m² en de servicekosten per m² worden berekend over de netto oppervlaktes van de 4e verdieping (272 m²).

HUURGARANTIE

Een bankgarantie of waarborgsom ter grootte van een betalingsverplichting van drie maanden huur inclusief BTW en servicekosten.

BESCHIKBAAR

Beschikbaar per 1 juli 2026, of zoveel eerder als later als mogelijk en in nader overleg.

ENERGIELABEL

Het object beschikt over energielabel A++ en is geldig tot en met 29-08-2032.

HUURINGANGSDATUM

In overleg.

HUURTERMIJN

Uitgangspunt is een huurovereenkomst voor 5 + 5 jaar. Overige termijnen zijn in overleg met de eigenaar bespreekbaar .

HUUROVEREENKOMST

De te sluiten huurovereenkomst zal worden opgemaakt conform het model dat door de Raad van Onroerende Zaken met bijbehorende Algemene Bepalingen is vastgesteld in maart 2025.

HUURBETALING

Per maand vooruit.

HUURPRIJSHERZIENING

Jaarlijks per 1 januari, voor het eerst per 1 januari 2026, op basis van de wijziging van het maandindexcijfer volgens de consumentenprijs index (CPI) reeks alle huishoudens (2015 = 100), gepubliceerd door het Centraal Bureau voor de Statistiek (CBS), met dien verstande, dat de huurprijs nimmer zal dalen beneden de laatst geldende huurprijs.

OMZETBELASTING

Over de huurprijs is BTW verschuldigd. Uitgangspunt bij het tot stand komen van een huurovereenkomst is, dat huurder het gehuurde voor 90% of meer gebruikt voor met BTW belaste prestaties. Huurder zal zich zoveel als in zijn vermogen ligt inspannen om ervoor te zorgen dat niet van dit standpunt wordt afgeweken. Indien op enig moment een situatie aan de zijde van de huurder intreedt waardoor geen recht meer wordt gedaan aan dit uitgangspunt, is huurder gehouden om het daaruit voor verhuurder voortvloeiende nadeel te vergoeden.

COURTAGE

Indien door bemiddeling van Batenburg Bedrijfshuisvesting bij dit object een transactie tot stand wordt gebracht, dan zult u ons hiervoor geen kosten of courtage verschuldigd zijn.

VOORBEHOUD

Eventuele transacties dienen ter goedkeuring voorgelegd te worden aan opdrachtgever c.q. eigenaar van het gebouw.

ALGEMEEN

De informatie met betrekking tot het voormelde onroerend goed is met zorg samengesteld. Batenburg Bedrijfshuisvesting aanvaardt echter geen enkele aansprakelijkheid voor de juistheid, volledigheid of actualiteit van de verstrekte gegevens. Aan deze informatie kunnen geen rechten worden ontleend. Deze informatieverstrekking vormt geen aanbod en kan niet worden beschouwd als een offerte. Wijzigingen en tussentijdse aanpassingen zijn uitdrukkelijk voorbehouden.

Bereikbaarheid

Tram, bus, metro
  • ABC Westland 3 min. lopen
  • Paul Captijnlaan 4 min. lopen

Bijlagen

De aanbieder van dit object heeft een PDF Brochure beschikbaar gesteld.

Vraag brochure aan