Resultaten laden ...

Abe Lenstra boulevard 50 25 - 127 m2 kantoorruimte te huur in Heerenveen

Kenmerken

Functie Kantoorruimte
Wijk / Buurt Midden

Algemeen: Waar kun je mooier zitten dan in het plangebied Sportstad Heerenveen. In het moderne en hoogwaardig afgewerkte kantoorverzamelgebouw bieden wij 4 nette kantoorruimtes te huur aan op de tweede verdieping, met een totale oppervlakte van 127 m².

Locatie: Vanuit je kantoor kijk je recht op het Abe Lenstra Stadion van voetbalclub Heerenveen.

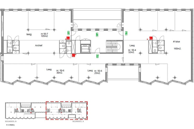
Reeds gevestigd in het gebouw o.a. : 4Value, AC Adviseurs, Aditech B.V., Archytes Groep B.V., V.O.F. BA32, Eduhint B.V. Inzet Uitzendgroep B.V. en kontour Vastgoed.

Bereikbaarheid: Gelegen op loopafstand van het centrum en nabij aansluiting op autosnelwegen A32 (Leeuwarden - Meppel) en A7 (Groningen - Amsterdam).

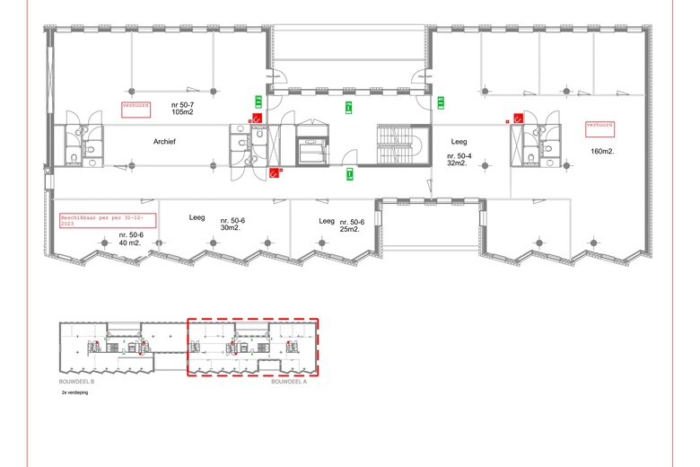
Vloeroppervlakte: Voor verhuur is beschikbaar een totale oppervlakte van circa 127 m².

Deze kantoorruimte is gelegen op de tweede verdieping van bouwdeel A en als volgt verdeeld:

Unit 50-4   32 m²

Unit 50-6   25 m²

Unit 50-6   30 m²

Unit 50-6   40 m²

Indeling: Zie de plattegrondtekeningen in de bijlagen.

Opleveringsniveau: Voorzieningen:

- Representatieve gemeenschappelijke entree;

- Eigen entree voor kantoorruimte op de begane grond;

- Lift;

- Vrij bereikbaar voor rolstoelgebruikers;

- Energiezuinig (koeling en verwarming d.m.v. betonkernactivering);

- Eigen en/of gemeenschappelijke buitenruimte (balkon);

- Intercom-/videofooninstallatiesysteem;

- luxe sanitaire voorzieningen (eigen pantry en toilet);

- Oplevering met vloerbedekking; *

- Plafonds met verlichtingsarmaturen;

- Databekabeling voor telefonie en ICT is aanwezig; *

- Goede reclamemogelijkheden;

De middels (*) aangeduide voorzieningen worden ‘om niet’ en in huidige technisch fysieke staat beschikbaar gesteld. Verhuurder aanvaardt geen aansprakelijkheid of verantwoording ten aanzien van deze zaken of voorzieningen. De kosten van onderhoud, herstel en vervanging van deze zaken komen voor rekening van huurder.

Bestemming: Kantoorruimte

Informatie inzake gebruiksmogelijkheden en voorschriften is te verkrijgen via ons kantoor, bij de gemeente of via de website van ruimtelijke plannen.

Huurprijs: € 110,- per m² per jaar te vermeerderen met de geldende BTW.

BTW: Uitgangspunt is een met BTW belaste huurprijs. Indien een huurder niet voldoet aan de voor belaste verhuur gestelde criteria zal de huurprijs zodanig worden verhoogd dat het voor verhuurder ontstane financiële nadeel volledig wordt gecompenseerd.

Servicekosten: Verrekenbaar voorschot van € 35,- per m² per jaar, te vermeerderen met de geldende BTW.

Huurtermijn: Huurperiode van 5 jaar gevolgd door verlengingstermijnen van telkens 5 jaar.

Kortere huurtermijnen zijn bespreekbaar.

Opzegtermijn: 12 maanden.

Huurbetaling: De totale betalingsverplichting dient per kwartaal vooruit te worden voldaan.

Zekerheidstelling: Een bankgarantie ter grootte van drie maanden huur en servicekosten te vermeerderen met de geldende BTW.

Huurindexatie: De huurprijs zal jaarlijks, voor het eerst 1 jaar na de huuringangsdatum, worden verhoogd op basis van de consumentenprijsindex (CPI) zoals wordt gepubliceerd door het Centraal Bureau voor de Statistiek (CBS).

Huurovereenkomst: De huurovereenkomst zal zijn gebaseerd op het model zoals is vastgesteld door de Raad voor Onroerende Zaken (ROZ) 2015, inclusief de algemene bepalingen.

Aanvaarding: Direct.

Bereikbaarheid

Tram, bus, metro
  • Abe Lenstraboulevard 5 min. lopen
  • Burg. Kuperusplein 8 min. lopen

Bijlagen

De aanbieder van dit object heeft een PDF Brochure beschikbaar gesteld.

Vraag brochure aan