Afrikalaan 12 F 40 - 288 m2 kantoorruimte te huur in Den Bosch
Kenmerken
| Huurprijs | Prijs op aanvraag |
| Functie | Kantoorruimte |
| Onderhoud buiten | Goed |
| Onderhoud binnen | Goed |
| Wijk / Buurt | Bedrijventerrein De Herven |
| Bedrijventerrein | Bedrijventerrein De Herven |
1 eenheid beschikbaar
1 eenheid beschikbaar
- Eenheid
- Oppervlakte
- Huurprijs
- Gebruik
Eenheid omschrijving
TE HUUR
Kantoorruimte circa 288 m², vanaf ca. 40 m²
De diverse kantoorunits zijn gelegen aan de Afrikalaan 12 F in ’s-Hertogenbosch op bedrijventerrein De Herven. Bedrijventerrein De Herven is een gemengd bedrijventerrein aan de snelweg A2 met een grote verscheidenheid in functies en uitstraling.
De zichtlocatie aan de A2 bestaat gedeeltelijk uit grote moderne kantoorgebouwen, bijvoorbeeld het Bolduc-gebouw en het nieuwe SAP-gebouw. Daar achter is ook een aantal kleinschalige kantoorgebouwen gerealiseerd. Een groot gedeelte van het terrein is in gebruik als bedrijventerrein met productie, groothandel en logistiek. Kenmerkend is de omvangrijke woonboulevard met grootschalige winkels voor wooninrichting, bouwmarkt en horeca. Daarnaast is er een autoboulevard.
De kwaliteit van het bedrijventerrein is op lange termijn veel beter gegarandeerd doordat ondernemers zelf actief betrokken zijn en georganiseerd zijn in de ondernemersvereniging De Herven.
In de directe omgeving bevinden zich onder andere: EBIKE-KIT, Van Der Plas Meubels, Installatie Maatschappij H.Ek en diverse automotive bedrijven.
Object
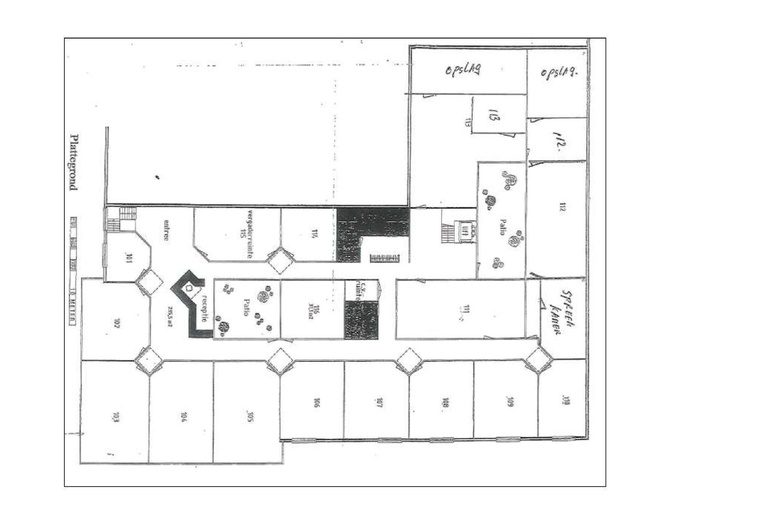
Het betreft een kantoorverzamelobject waar diverse luxe kantoorruimten te huur worden aangeboden conform onderstaand schema :
Huurprijzen en servicekosten per kantoorruimte conform onderstaand schema.
Kamer Oppervlakte Prijs per jaar Servicekosten Beschikbaarheid
m² exclusief btw per jaar exclusief btw
105 Circa 73 m² € 6.750,00 € 2.920,00
109 Circa 55 m² € 4.950,00 € 2.200,00 VERHUURD
111 Circa 73 m² € 6.570,00 € 2.920,00
113 Circa 100 m² € 9.000,00 € 4.000,00
116 Circa 42 m² € 3.780,00 € 1.680,00
Kenmerken van de kantoorruimte
- Systeemplafond v.v. Tl-verlichtingsarmaturen
- Kabelgoten v.v. databekabeling
- Glasvezel aanwezig
- Patchruimte
- Dames en herentoiletten inclusief voorportaal
- Deuropeningsinstallatie
- Vloerbedekking
- Gemeenschappelijk spreekkamer
- Diverse patio’s
- CV d.m.v. radiatoren
- Koeling/ventilatie
Huurtermijn:
in overleg;
Huurbetaling:
per maand vooruit;
Bankgarantie:
ter grootte van drie maanden huur inclusief servicekosten en te vermeerderen met overheidswege verschuldigde B.T.W.;
Indexering:
jaarlijks, voor het eerst één jaar na huuringangsdatum, op basis van de wijziging van het
maandprijsindexcijfer van de consumentenprijsindex (CPI) Alle Huishoudens (2006 = 100) als
gepubliceerd door het Centraal Bureau voor de Statistiek;
Aanvaarding:
in overleg.
Terrein
Het buitenterrein is voorzien van klinkerbestrating en er zijn voldoende parkeerplaatsen op eigen terrein aanwezig.
Locatie
Het pand is gelegen aan een zijstraat van de Balkweg en geeft via de Reitscheweg aansluiting op de rijksweg A2 (Amsterdam - Maastricht) die vervolgens weer op steenworp afstand aansluiting geeft op de rijksweg A59 (Zevenbergen - Waalwijk - ’s- Hertogen-bosch - Oss).
De bereikbaarheid per auto is met een directe oprit aan de snelweg ideaal. Ook het openbaar vervoer is uitstekend. Er zijn goede busverbindingen met het centrum en het NS-station ’s-Hertogenbosch Oost is op loopafstand.
| OPPERVLAKTE | Vanaf 40 m2 tot 288 m2 |
| GEBRUIK | Kantoorruimte |
Omschrijving
Omschrijving
TE HUUR
Kantoorruimte circa 288 m², vanaf ca. 40 m²
De diverse kantoorunits zijn gelegen aan de Afrikalaan 12 F in ’s-Hertogenbosch op bedrijventerrein De Herven. Bedrijventerrein De Herven is een gemengd bedrijventerrein aan de snelweg A2 met een grote verscheidenheid in functies en uitstraling.
De zichtlocatie aan de A2 bestaat gedeeltelijk uit grote moderne kantoorgebouwen, bijvoorbeeld het Bolduc-gebouw en het nieuwe SAP-gebouw. Daar achter is ook een aantal kleinschalige kantoorgebouwen gerealiseerd. Een groot gedeelte van het terrein is in gebruik als bedrijventerrein met productie, groothandel en logistiek. Kenmerkend is de omvangrijke woonboulevard met grootschalige winkels voor wooninrichting, bouwmarkt en horeca. Daarnaast is er een autoboulevard.
De kwaliteit van het bedrijventerrein is op lange termijn veel beter gegarandeerd doordat ondernemers zelf actief betrokken zijn en georganiseerd zijn in de ondernemersvereniging De Herven.
In de directe omgeving bevinden zich onder andere: EBIKE-KIT, Van Der Plas Meubels, Installatie Maatschappij H.Ek en diverse automotive bedrijven.
Object
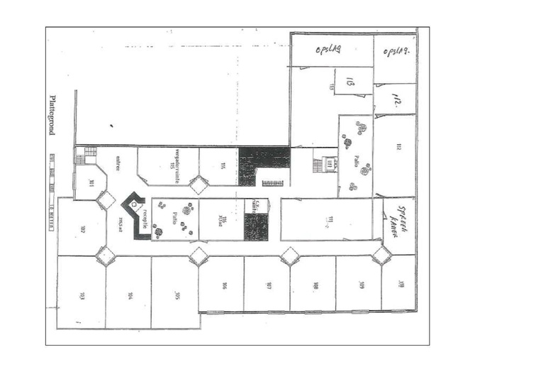
Het betreft een kantoorverzamelobject waar diverse luxe kantoorruimten te huur worden aangeboden conform onderstaand schema :
Huurprijzen en servicekosten per kantoorruimte conform onderstaand schema.
Kamer Oppervlakte Prijs per jaar Servicekosten Beschikbaarheid
m² exclusief btw per jaar exclusief btw
105 Circa 73 m² € 6.750,00 € 2.920,00
109 Circa 55 m² € 4.950,00 € 2.200,00 VERHUURD
111 Circa 73 m² € 6.570,00 € 2.920,00
113 Circa 100 m² € 9.000,00 € 4.000,00
116 Circa 42 m² € 3.780,00 € 1.680,00
Kenmerken van de kantoorruimte
- Systeemplafond v.v. Tl-verlichtingsarmaturen
- Kabelgoten v.v. databekabeling
- Glasvezel aanwezig
- Patchruimte
- Dames en herentoiletten inclusief voorportaal
- Deuropeningsinstallatie
- Vloerbedekking
- Gemeenschappelijk spreekkamer
- Diverse patio’s
- CV d.m.v. radiatoren
- Koeling/ventilatie
Huurtermijn:
in overleg;
Huurbetaling:
per maand vooruit;
Bankgarantie:
ter grootte van drie maanden huur inclusief servicekosten en te vermeerderen met overheidswege verschuldigde B.T.W.;
Indexering:
jaarlijks, voor het eerst één jaar na huuringangsdatum, op basis van de wijziging van het
maandprijsindexcijfer van de consumentenprijsindex (CPI) Alle Huishoudens (2006 = 100) als
gepubliceerd door het Centraal Bureau voor de Statistiek;
Aanvaarding:
in overleg.
Terrein
Het buitenterrein is voorzien van klinkerbestrating en er zijn voldoende parkeerplaatsen op eigen terrein aanwezig.
Locatie
Het pand is gelegen aan een zijstraat van de Balkweg en geeft via de Reitscheweg aansluiting op de rijksweg A2 (Amsterdam - Maastricht) die vervolgens weer op steenworp afstand aansluiting geeft op de rijksweg A59 (Zevenbergen - Waalwijk - ’s- Hertogen-bosch - Oss).
De bereikbaarheid per auto is met een directe oprit aan de snelweg ideaal. Ook het openbaar vervoer is uitstekend. Er zijn goede busverbindingen met het centrum en het NS-station ’s-Hertogenbosch Oost is op loopafstand.
Bereikbaarheid
- Tinnegieterstraat 4 min. lopen
- Ploegweg 7 min. lopen
- Europalaan 8 min. lopen
- Hintham 9 min. lopen