Resultaten laden ...

Arnhemseweg 12 69 m2 kantoorruimte te huur in Barendrecht

Kenmerken

Huurprijs € 600 /maand
Functie Kantoorruimte
Onderhoud buiten Goed
Onderhoud binnen Goed
Wijk / Buurt Voordijk
Bedrijventerrein Vaanpark

Kantoorunits op de 2e verdieping van een vrijstaand bedrijfs-/kantoorgebouw gelegen op eigen afsluitbaar terrein met volop parkeervoorzieningen, op bedrijventerrein Vaanpark 4 in Barendrecht.

De kantoorunit beschikt over ruime daglichttoetreding en is o.a. voorzien van airco. Het gebouw is voorzien van een lift, ruime sanitaire voorzieningen en parkeergelegenheid op het eigen terrein.

Locatie:

Bedrijventerrein Vaanpark is gesitueerd aan de rand van wijk Carnisselande in Barendrecht. Op het terrein zijn o.a. gevestigd Ikea, Karwei, Praxis, Buva Bouwmaterialen, Babypark en het Inge de Bruijn Sportfondsenbad.k.

Vaanpark 4 is gelegen aan het knooppunt Vaanplein, waar de snelwegen A15 (Europoort-Rotterdam-Gorinchem) en A29 (Rotterdam-Roosendaal-Zierikzee) samen komen. Tevens biedt dit knooppunt een uitstekende verbinding van en naar rijksweg A16 (Rotterdam-Dordrecht-Breda).

Afmetingen:

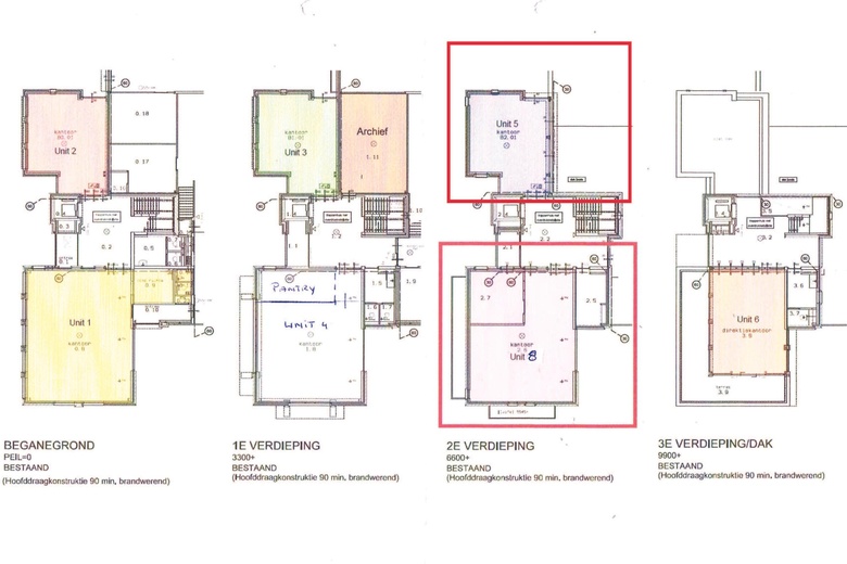
Unit 5

Ca. 69 m² VVO (netto 41 m²) kantoorruimte

2 eigen parkeerplaatsen

Huurprijs: € 600,-

Servicekosten: € 85,-

Energiekosten: € 95,-

Bestemming:

Bedrijfsdoeleinden t/m categorie 3.

Energielabel:

C, geldig t/m 14 februari 2028.

Voorzieningen/specificaties:

- representatieve entree met ontvangstbalie;

- liftinstallatie;

- stalen bordestrap met hardhouten treden;

- gezamenlijke pantry-/kantineruimte op de 1e verdieping;

- aluminium buitenkozijnen met isolerende beglazing;

- linoleum vloerafwerking;

- wanden afgewerkt met gesausd glasweefsel;

- systeemplafonds met verlichtingsarmaturen;

- verwarming middels c.v.-installatie met blokconvectoren en radiatoren;

- airconditioning middels cassette-units;

- diverse betegelde toiletgroepen en pantry’s;

- optioneel te huren archiefruimte;

- intercominstallatie;

- alarminstallatie;

- centraal stofzuigsysteem;

- brandblusmiddelen.

Reclamevoering:

Uitsluitend in overleg met en na goedkeuring van eigenaar/verhuurder.

Huurprijs:

€ 950,- per maand exclusief service-/energiekosten exclusief BTW.

Bovengenoemde huurprijs is inclusief gebruik van de algemene ruimten en kantineruimte op de 1e verdieping.

Servicekosten:

Per maand wordt een bedrag in rekening gebracht als voorschot op onderstaande leveringen en diensten:

- periodiek onderhoud groenvoorzieningen;

- periodiek onderhoud / controle brandblusmiddelen;

- periodiek onderhoud liftinstallatie;

- periodiek onderhoud airco-installatie;

- periodiek onderhoud cv-installatie;

- periodiek onderhoud alarminstallatie;

- periodieke glasbewassing binnen- en buitenzijde;

- glasverzekering;

- schoonhouden algemene ruimten;

- deelname collectieve beveiliging;

- 5% administratiekosten.

Huurperiode:

In nader overleg.

Huurbetaling:

Per maand vooruit.

Huurverhoging:

Jaarlijks, voor het eerst 1 jaar na huuringangsdatum, conform de wijziging van het maandprijsindexcijfer volgens de Consumentenprijsindex (CPI), reeks CPI-alle huishoudens (2015 = 100), gepubliceerd door het Centraal Bureau voor de Statistiek (CBS).

Huurovereenkomst:

De te sluiten huurovereenkomst zal worden opgemaakt op basis van het ROZ-model (Raad van Onroerende Zaken) kantoorruimte en andere bedrijfsruimte in de zin van artikel 7:230a BW, vastgesteld 30-01-2015 met bijbehorende Algemene Bepalingen gedeponeerd bij de griffie van de Rechtbank te Den Haag en op 17-02-2015 aldaar ingeschreven onder nummer 15/21

Zekerheidstelling:

Bankgarantie of waarborgsom ter grootte van een kwartaalverplichting huur inclusief servicekosten inclusief BTW.

Omzetbelasting:

De huurprijs wordt belast met de geldende omzetbelasting. Huurder en verhuurder opteren voor een BTW-belaste verhuur. Indien op basis van de nieuwe BTW-wetgevingsvoorstelling huurder niet meer aan het criterium meer dan 90% BTW-belaste prestaties verricht voldoet, en zodoende het verzoek om BTW-belaste verhuur niet geaccepteerd wordt, dan zal de

huurprijs worden verhoogd met een nader door verhuurder vast te stellen percentage.

Collectieve beveiliging:

Huurder is verplicht om zich aan te sluiten en deel te nemen aan het collectieve beveiligingsplan van de Gemeente Barendrecht. De kosten bedragen ca.

€ 750,- per jaar exclusief BTW.

Oplevering:

Per direct beschikbaar.

De vermelde informatie is van algemene aard en is niet meer dan een uitnodiging om in onderhandeling te treden. Aan de inhoud van deze informatie kunnen geen rechten worden ontleend.

Bereikbaarheid

Tram, bus, metro
  • Zwembad 8 min. lopen
  • Vaanpark II 10 min. lopen

Bijlagen

De aanbieder van dit object heeft een PDF Brochure beschikbaar gesteld.

Vraag brochure aan