Azielaan 5 a 250 m2 kantoorruimte te huur in Vroomshoop
Kenmerken
| Huurprijs | € 4.000 /maand |
| Functie | Kantoorruimte |
| Onderhoud buiten | Goed |
| Onderhoud binnen | Uitstekend |
| Wijk / Buurt | Verspreide huizen Vroomshoop-Oost |
| Bedrijventerrein | VROOMSHOOP OOST |
1 eenheid beschikbaar
1 eenheid beschikbaar
- Eenheid
- Oppervlakte
- Huurprijs
- Gebruik
| OPPERVLAKTE | 250 m2 |
| GEBRUIK | Kantoorruimte |
Omschrijving
Omschrijving
Luxe kantoorruimte - beschikbaar voor huur óf koop!
Op bedrijventerrein Vroomshoop Oost bieden wij deze luxe en representatieve kantoorruimte te huur aan. De kantoorruimte is gelegen aan de voorzijde van een bedrijfsverzamelgebouw, heeft twee verdiepingen en beschikt over een eigen garage en 6 parkeerplaatsen. Het geheel is volledig verbouwd in 2024.
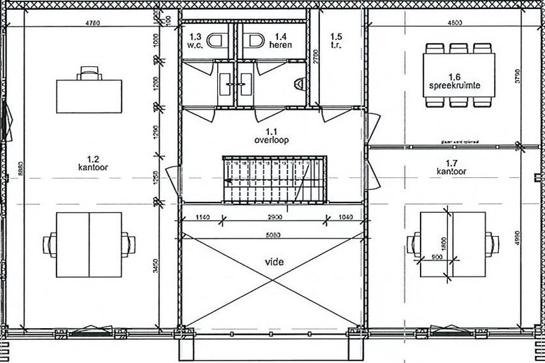
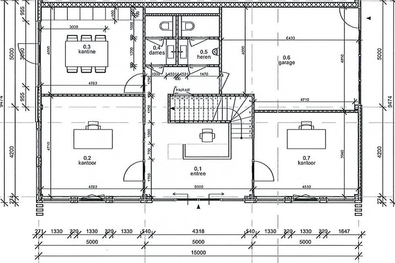
Oppervlakte: Het totale verhuurbare vloeroppervlakte is circa 250 m², waarvan circa 135 m² op de begane grond en circa 115 m² op de verdieping.
Indeling:
Begane grond: entree met airco-unit, twee kantoorruimtes, kantine met pantry en toegang tot het terras, vaste kast, toiletgroep en garage/opslagruimte.
Verdieping 1: Overloop met vide, pantry en toiletgroep, technische ruimte en twee kantoorruimtes/spreekkamers die vrij zijn in te delen.
Huurprijs: € 4.000,- per maand exclusief BTW en exclusief water en elektra. Huurder dient hiervoor zelf een contract af te sluiten.
Huurtermijn: In overleg met verhuurder, uitgangspunt is minimaal 2 jaar.
Vraagprijs: € 480.000,= k.k. excl. BTW.
Bereikbaarheid:
Het object is gelegen op bedrijventerrein Vroomshoop-Oost. Het object is goed bereikbaar via nabijgelegen N-wegen, waaronder de N36. Ook beschikt Vroomshoop over een treinstation.
Aanvaarding:
In overleg met de verhuurder. Snelle aanvaarding is mogelijk..
Voorzieningen:
- Luxe afwerking met glazen binnenwanden;
- Volledig v.v. luchtbehandeling met airco en verwarming middels een warmtepomp;
- Elke ruimte v.v. eigen klimaatregeling;
- 30 zonnepanelen;
- Kantoren v.v. kabelgoten en systeemplafond;
- Volledig ledverlichting;
- Kunststof kozijnen met triple glas;
- Beneden- en bovenverdieping hebben een eigen pantry;
- Garage/opslagruimte met eigen elektrische overheaddeur.