Resultaten laden ...

Berkstraat 100

30 - 1.154 m2 kantoorruimte te huur in Oldenzaal

Kenmerken

Huurprijs € 4.140 /jaar
Functie Kantoorruimte
Onderhoud buiten Goed
Onderhoud binnen Goed
Wijk / Buurt Het Inslag en omgeving

Bent u op zoek naar een plek als startend ondernemer? Een kleine kantoorruimte of misschien wel een grote ruimte voor compleet iets anders? Dan biedt bedrijvencentrum "de Berkenborgh" aan de Berkstraat 100 te Oldenzaal uitkomst!

Bedrijvencentrum "de Berkenborgh" dankt zijn naam aan de Berkstraat, waaraan het complex gelegen is. Een unieke toplocatie, dichtbij de afslag naar de snelweg en op loopafstand van Oldenzaals gezellige centrum. Het busstation en NS station zijn in de nabijheid gelegen.

In dit centrum bieden wij functionele representatieve kantoorruimtes van verschillende afmetingen die variëren vanaf ca. 30 m² tot zo'n 600 m² te huur aan. De ruimtes lenen zich bij uitstek voor diverse functies: kantoor, vergaderen, instructie, showroom en/of presentatie en bevinden zich in een prettige atmosfeer om ongestoord te kunnen werken; een ideale, van alle gemakken (zoals basis aansluiting internet-Wifi-TV, alarmbeveiliging en systeemplafonds met ledverlichting) voorziene werkplek voor ZZP'ers, zakelijke dienstverleners, samenwerkingsverbanden enz.

De kantoorruimtes zijn gelegen op de begane grond, eerste verdieping en tweede verdieping. De kantoorruimtes op de begane grond kunnen evt. turnkey worden opgeleverd. Rondom het gebouw is een zeer ruim parkeerterrein aanwezig met een elektrische laadpaal en plaats voor totaal circa 75 auto’s. De plaatsen kunnen naar rato van de gehuurde ruimte worden benut.

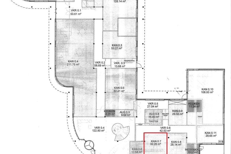
Momenteel zijn nog de volgende vertrekken voor de verhuur beschikbaar:

Begane grond
Circa 30 m² kantoorruimte (één vertrek) op de begane grond (exclusief algemene ruimten w.o. (gedeelde) keuken v.v. 2 vaatwassers, een koel/vriescombinatie en een magnetron, vergader-,/instructie-,/showroomruimte. Voor het gebruik van deze algemene ruimten wordt een opslag van 20% op het aantal gehuurde vierkante meters gehanteerd).

Huurprijs: € 115,- per m² / per jaar, exclusief BTW. De service- en verbruikskosten (g/w/e) zijn niet inbegrepen in de huurprijs en bedragen € 47,50 per m² / per jaar, exclusief BTW. Voor de schoonmaak en het onderhoud van de gezamenlijke entree, hal, toiletruimte en de raampartijen (binnenzijde) wordt een toeslag van circa € 23,- per medewerker per maand in rekening gebracht (afhankelijk van het aantal medewerkers). Indien gewenst kunnen parkeerplaatsen worden gehuurd voor € 250,- per stuk per jaar, exclusief BTW.

Eerste verdieping
Totaal circa 1154 m² kantoorruimte op de eerste verdieping, waarvan nog beschikbaar:

- Unit 1: circa 390 m² kantoorruimte, inclusief algemene ruimte (let op: géén lift). Onderverdeling d.m.v. scheidingswanden. Huurprijs: € 115,- per m² / per jaar, exclusief BTW. De service- en verbruikskosten (g/w/e) zijn niet inbegrepen in de huurprijs en bedragen € 47,50 per m² / per jaar, exclusief BTW. Voor de schoonmaak en het onderhoud van de gezamenlijke hal, trap, toiletruimte en de raampartijen (binnenzijde) wordt een toeslag van circa € 23,- per medewerker per maand in rekening gebracht (afhankelijk van het aantal medewerkers). Indien gewenst kunnen parkeerplaatsen worden gehuurd voor € 250,- per stuk per jaar, exclusief BTW.

- Unit 2: circa 213 m² kantoorruimte, inclusief algemene ruimte. Huurprijs: € 115,- per m² / per jaar, exclusief BTW. De service- en verbruikskosten (g/w/e) zijn niet inbegrepen in de huurprijs en bedragen € 47,50 per m² / per jaar, exclusief BTW. Voor de schoonmaak en het onderhoud van de gezamenlijke hal, trap, toiletruimte en de raampartijen (binnenzijde) wordt een toeslag van circa € 23,- per medewerker per maand in rekening gebracht (afhankelijk van het aantal medewerkers). Indien gewenst kunnen parkeerplaatsen worden gehuurd voor € 250,- per stuk per jaar, exclusief BTW.

- Unit 3: circa 350 m² kantoorruimte, inclusief algemene ruimte. Huurprijs: € 115,- per m² / per jaar, exclusief BTW. De service- en verbruikskosten (g/w/e) zijn niet inbegrepen in de huurprijs en bedragen € 47,50 per m² / per jaar, exclusief BTW. Voor de schoonmaak en het onderhoud van de gezamenlijke hal, trap, toiletruimte en de raampartijen (binnenzijde) wordt een toeslag van circa € 23,- per medewerker per maand in rekening gebracht (afhankelijk van het aantal medewerkers). Indien gewenst kunnen parkeerplaatsen worden gehuurd voor € 250,- per stuk per jaar, exclusief BTW.

- Unit 4: circa 42 m² kantoorruimte, exclusief algemene ruimte. Deze unit kan desgewenst worden opgesplitst in twee afzonderlijke ruimtes door middel van een glazen (geluidswerende) scheidingswand, evt. (gedeeltelijk) te voorzien van raamfolie. Dit maakt de unit bij uitstek geschikt voor bijvoorbeeld een directiekantoor of vergaderruimte. Voor het gebruik van de algemene ruimten wordt een opslag van 20% op het aantal gehuurde vierkante meters gehanteerd. Huurprijs: € 115,- per m² / per jaar, exclusief BTW. De service- en verbruikskosten (g/w/e) zijn niet inbegrepen in de huurprijs en bedragen € 47,50 per m² / per jaar, exclusief BTW. Voor de schoonmaak en het onderhoud van de gezamenlijke hal, trap, toiletruimte en de raampartijen (binnenzijde) wordt een toeslag van circa € 23,- per medewerker per maand in rekening gebracht (afhankelijk van het aantal medewerkers). Indien gewenst kunnen parkeerplaatsen worden gehuurd voor € 250,- per stuk per jaar, exclusief BTW.

Tweede verdieping
Circa 520 m² kantoorruimte + circa 80 m² terras op de tweede verdieping (géén lift). De ruimte is voorzien van nieuwe vloerbedekking en (grotendeels) fraaie glazen scheidingswanden. Daarnaast beschikt de aangeboden ruimte over een eigen pantry, douche en gescheiden toiletten. Huurprijs: € 55.000,- per jaar, exclusief BTW. De service- en verbruikskosten (g/w/e) zijn niet inbegrepen in de huurprijs en bedragen € 47,50 per m² / per jaar, exclusief BTW. Voor de schoonmaak en het onderhoud van de gezamenlijke hal, trap en de raampartijen (binnenzijde) wordt een toeslag van circa € 15,- per medewerker per maand in rekening gebracht (afhankelijk van het aantal medewerkers). Indien gewenst kunnen parkeerplaatsen worden gehuurd voor € 250,- per stuk per jaar, exclusief BTW.

Deze units zijn door middel van verplaatsbare scheidingswanden naar wens in te delen qua grootte en vorm.

De kantoorruimtes worden in een nette staat aangeboden, onder meer voorzien van:
- gezamenlijke representatieve entree voorzien van een fraaie lift;
- systeemplafonds voorzien van ledverlichting;
- gezamenlijke sanitaire voorzieningen, aparte toiletten voor dames en heren;
- kabelgoten voorzien van aanwezige wandcontactdozen t.b.v. databekabeling;
- aanwezige vloerbedekking;
- gezamenlijke pantry op de begane grond en eerste verdieping;
- verwarming (d.m.v. radiatoren/convectoren);
- topkoeling met per vertrek ingebouwde extra airco's die per kantoorruimte individueel kunnen worden bediend.
- meervoudige mechanische ventilatie met een gloednieuwe (!) topkoeling.
- Basis Wifi aansluiting (KPN) aanwezig.

Pantry’s
De aanwezige pantry’s zijn voorzien van inbouwkeuken, incl. koel/vriescombinatie, elektrische kookplaat, afzuigkap en vaatwasser.

Kelder
Onder het gebouw bevindt zich een kelder met een compleet ingericht oud-Hollands bruin café en vier grote archiefruimtes, voorzien van stellages en opbergkasten. Deze is/zijn eventueel (deels) bij te huren. De kelder heeft een totale grootte van circa 145 m².

*** SERVICEKOSTEN:
Deze kosten hebben betrekking op de volgende leveringen en diensten:
- Onderhoud en periodieke controle van de verwarming, koeling, en ventilatie installaties.
- Onderhoud en periodieke keuring elektrische toegangsdeuren.
- Onderhoud en periodieke keuring van de elektrische installatie, waaronder begrepen de elektrische apparatuur in de keukenunits.
- Onderhoud en servicekosten buitenverlichting.
- Onderhouds- vervangings- en servicekosten buitenverlichting en elektrische laadpaal.
- Schoonmaak- en onderhoudskosten van terrassen, tuin en parkeerplaatsen.
- Glasbewassing ruiten buitenzijde rondom.
- Opruimkosten blad- en vuilverwijdering plakke daken, alsmede reiniging goten.
- Reiniging gevels rondom, alsmede reclameborden en lantaarns.
- WOZ-heffing eigenaar, alsmede riool- en reinigingsrechten eigenaar.
- Kosten van reparatie aan- en voor hekwerken en diverse installaties, alsmede de hiervoor benodigde onderdelen.
- Assurantiepremie voor de buitenbeglazing.
- Onderhoudsabonnement dubbele elektrische laadpaal.
- Onderhoud en periodieke controle lift. Niet opgenomen. Momenteel niet in gebruik.

*** VERBRUIKERSKOSTEN: gas, elektra en water.
Verhuurder is bevoegd na overleg met Huurder de bovengenoemde levering van zaken en diensten naar soort en omvang te (laten) verzorgen of te wijzigen of op een andere wijze te laten verzorgen c.q. te laten leveren of te berekenen of deze te laten vervallen.

*** OVERIGE KOSTEN voor huurder:
- Waterschaps- en rioolbelasting gebruiker, alsmede eventuele toekomstige
heffingen door of vanwege de gemeente Oldenzaal.
- Aanslag WOZ-waarde en reinigings- en rioolrechten gebruiker.

Alle in de toekomst zich voordoende kosten (bijv. gladheids- of ongediertebestrijding), welke in collectief verband noodzakelijk en/of verplicht zijn om de parkeerplaatsen rond het kantoorpand te bereiken en in een deugdelijke staat te houden, zal het totale hiervoor uitgegeven bedrag in verhouding tot het gehuurde aantal m²’s oppervlakte worden doorbelast aan Huurder.

Locatie:
Bedrijvencentrum "de Berkenborgh" is gelegen op een fraaie zichtlocatie aan de rand van de bebouwde kom en aan een hoofdweg richting het gezellige binnenstadscentrum. Het object is gelegen op loopafstand van het Oldenzaalse binnenstadscentrum en uitstekend te bereiken. Daarnaast is de Rijksweg A1 richting Amsterdam en Duitsland via de provinciale rondweg snel, in enkele autominuten bereikbaar en liggen een bushalte en het NS-station Oldenzaal in de directe nabijheid.

Energielabel:
Voor “de Berkenborgh” is afgegeven energielabel A+.

Bijlagen

De aanbieder van dit object heeft een PDF Brochure beschikbaar gesteld.

Vraag brochure aan