Bijsterhuizen 3177
35 - 103 m2 kantoorruimte te huur in Wijchen
Kenmerken
| Huurprijs | € 1.090 /maand |
| Functie | Kantoorruimte |
| Onderhoud buiten | Uitstekend |
| Onderhoud binnen | Uitstekend |
| Wijk / Buurt | Industrieterrein Zesweg |
| Bedrijventerrein | Bijsterhuizen (Nijmegen/Wijchen) |
1 eenheid beschikbaar
1 eenheid beschikbaar
- Eenheid
- Oppervlakte
- Huurprijs
- Gebruik
| OPPERVLAKTE | Vanaf 35 m2 tot 103 m2 |
| GEBRUIK | Kantoorruimte |
Omschrijving
Omschrijving
Algemeen:
4 turnkey kantoorunits in nieuwbouw bedrijfspand op goed bereikbare locatie op bedrijventerrein Bijsterhuizen. De units zijn gelegen op de tweede verdieping en beschikken over een hoogwaardige afwerkingsniveau.
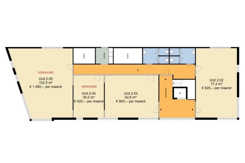
Voor de verhuur is in totaal 277,5 m² (VVO) kantoorruimte beschikbaar op de tweede verdieping, als volgt verdeeld:
- Unit 2.02: 77,4 m²;
- Unit 2.03: 62,6 m²;
- Unit 2.04: 35,0 m²;
- Unit 2.05: 102,5 m². Deelverhuur per unit is mogelijk. Locatie:
Het object is gelegen op bedrijventerrein Bijsterhuizen in Wijchen. Bijsterhuizen biedt ruimte aan bedrijven uit onder andere de logistieke sector, de bouw, handel en productiebedrijven. Vanwege haar gunstige ligging is Bijsterhuizen vooral voor logistieke dienstverleners een
interessante locatie. Daarnaast heeft het bedrijventerrein door haar ruime en groene opzet een kwalitatief hoogwaardige uitstraling. Bereikbaarheid:
Eigen vervoer: Het object ligt nabij de snelweg A326 en in de nabijheid liggen tevens de op- en afritten van de snelwegen A50 én A73. Openbaar vervoer: De meest dichtbij zijnde bushalte ligt op loopafstand van het object op circa 350 meter afstand. Opleveringsniveau:
De kantoorunits worden aangeboden in huidige turn key staat, onder andere voorzien van de
navolgende voorzieningen:
- PVC vloerafwerking;
- Systeemplafonds voorzien van LED-verlichting;
- Pantry (gedeeld);
- Toiletten (gedeeld);
- Vloerverwarming én vloerkoeling;
- Airco-units;
- Liftinstallatie;
- Alarminstallatie. Huurprijzen:
Unit 2.02: € 920,--
Unit 2.03: € 800,--
Unit 2.04: € 520,--
Unit 2.05: € 1.090,-- Bovengenoemde huurprijzen dienen te worden vermeerderd met BTW en servicekosten. Servicekosten:
De vaste servicekosten bedragen € 35,-- per m² per jaar, te vermeerderen met BTW.
Door verhuurder worden de volgende zaken en diensten verzorgd:
- Water- en elektriciteitsverbruik, inclusief vastrecht;
- Onderhoud en periodieke controle van verwarmings- en/of uchtbehandelingsinstallatie(s);
- Onderhoud en periodieke controle van de liftinstallatie;
- Onderhoud en periodieke controle van brandmeld-, gebouwbewakings-, storingsmeld- en noodstroominstallatie(s);
- Schoonmaakkosten van de gemeenschappelijke ruimten;
- Schoonmaakkosten van de beglazing buitenzijde en buitengevel;
- Onderhoud van het buitenterrein;
- Assurantiepremie buitenbeglazing en beglazing gemeenschappelijke ruimten. Bestemming:
De locatie valt onder het vigerende bestemmingsplan ‘Bijsterhuizen’ met de bestemming ‘Bedrijventerrein - 1’ met de functie aanduiding ‘bedrijf tot en met categorie 4.2’. De voor deze bestemming aangewezen gronden zijn bestemd voor:
- Bedrijven voorzover deze voorkomen in categorie 1 t/m 4.2 van de als bijlage opgenomen Staat van bedrijfsactiviteiten;
- Zelfstandige kantoorruimte. Informatie inzake gebruiksmogelijkheden en voorschriften is te verkrijgen via ons kantoor of bij de gemeente Wijchen, dan wel via de website omgevingswet.overheid.nl. Aanvaarding:
Per direct.
Bijlagen
Aanbevolen voor u
Bekijk
kantoorruimte in Wijchen
of bekijk deze panden: