Bonairelaan 2 21 - 60 m2 kantoorruimte te huur in Hilversum
Kenmerken
| Huurprijs | Prijs op aanvraag |
| Functie | Kantoorruimte |
| Onderhoud buiten | Uitstekend |
| Onderhoud binnen | Uitstekend |
| Wijk / Buurt | Landelijk gebied 93 |
1 eenheid beschikbaar
1 eenheid beschikbaar
- Eenheid
- Oppervlakte
- Huurprijs
- Gebruik
- 1
- Vanaf 21 m2 tot 60 m2
- Prijs op aanvraag
- Kantoorruimte
| OPPERVLAKTE | Vanaf 21 m2 tot 60 m2 |
| GEBRUIK | Kantoorruimte |
Omschrijving
Omschrijving
In deze representatieve en karakteristieke kantoorvilla, op slechts enkele minuten van de A27, zijn op de eerste etage 2 kantoorkamers beschikbaar voor verhuur.
De villa huisvest meerdere ondernemingen en biedt een inspirerende werkomgeving.
De kantoorvilla ligt op een ruim perceel, omgeven door groen en grenzend aan het bos, in een rustige en besloten villawijk.
Het voorschot op de servicekosten omvat onder meer:
- levering en verbruik van water, gas en elektra;
- onderhoud van de tuin;
- inzameling en afvoer van kantoorafval;
- internet (wifi).
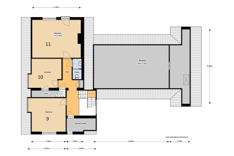
Thans te huur:
1e verdieping:
2 naast elkaar gelegen kamers, ca. 21 m² en ca. 39 m² (incl. toedeling algemene ruimten)
Deze kamers zijn afzonderlijk te huur of gezamenlijk.
Kamer 10, ca. 21 m², € 350,- per maand, excl. btw en voorschot servicekosten (€ 100,- per maand excl. btw)
Kamer 11, ca. 39 m², € 750,- per maand, excl. btw en voorschot servicekosten (€ 200,- per maand excl. btw)
Gunning verhuurder voorbehouden.
Bereikbaarheid
- Arenapark 4 min. lopen
- Oostereind 9 min. lopen
- Surinamelaan 9 min. lopen
- Ziekenhuis Tergooi 10 min. lopen