Castricummer Werf 138 65 m2 kantoorruimte te huur in Castricum
Kenmerken
| Huurprijs | € 750 /maand |
| Functie | Kantoorruimte |
| Onderhoud buiten | Goed |
| Onderhoud binnen | Goed |
| Wijk / Buurt | Beverwijkerstraatweg |
1 eenheid beschikbaar
1 eenheid beschikbaar
- Eenheid
- Oppervlakte
- Huurprijs
- Gebruik
| OPPERVLAKTE | 65 m2 |
| GEBRUIK | Kantoorruimte |
Omschrijving
Omschrijving
TE HUUR:
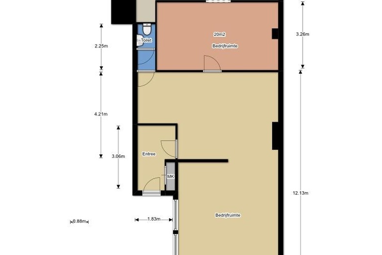
Bedrijfsruimte gelegen op bedrijventerrein De Castricummer Werf te Castricum. Het betreft een zelfstandige bedrijfsruimte met een oppervlakte van circa 65 m² (BVO). De ruimte is geschikt voor onder meer kantoor-, showroom- of andere bedrijfsdoeleinden.
INDELING / OPLEVERINGSNIVEAU:
De ruimte beschikt over een eigen entree en is voorzien van een pantry/keuken en een eigen toilet. Daarnaast heeft de ruimte een eigen meterkast. Verwarming en koeling geschieden middels een airco-installatie. Het pand wordt opgeleverd in de huidige staat.
GROOTTE:
Ca. 65 m² (BVO)
LOCATIE EN BEREIKBAARHEID:
Gelegen op bedrijventerrein De Castricummer Werf in de gemeente Castricum, provincie Noord-Holland. De locatie is goed bereikbaar per auto via de A9 en A22, op circa 15 autominuten afstand. NS-station Castricum bevindt zich op circa 10 minuten loopafstand.
PARKEREN:
Vrij parkeren is mogelijk voor de deur.
BESTEMMING:
Volgens het vigerende bestemmingsplan Bedrijventerreinen Castricum geldt de bestemming Bedrijventerrein. Huurder is zelf verantwoordelijk voor het verkrijgen van de benodigde toestemming voor het beoogde gebruik. Nadere informatie is te verkrijgen via
OPLEVERING:
Beschikbaar per 1 juni 2026.
KADASTRALE GEGEVENS:
Gemeente: Castricum
Sectie: B
Nummer: 11641
HUURPRIJS:
€ 750,- per maand.
HUURBETALING:
Per maand bij vooruitbetaling.
ZEKERHEIDSSTELLING:
Waarborgsom of bankgarantie ter grootte van twee maanden huurverplichting.
HUURTERMIJN:
5 jaar.
BTW:
Geen BTW van toepassing.
Alle gegevens zijn met zorg samengesteld en uit ons inziens betrouwbare bron afkomstig. Ten aanzien van de juistheid ervan kunnen wij echter geen aansprakelijkheid aanvaarden.
Bereikbaarheid
- Castricum 10 min. lopen