Dorpsstraat vo Steenstraat 14 64 - 130 m2 kantoorruimte te huur in De Bilt
Kenmerken
| Huurprijs | Prijs op aanvraag |
| Functie | Kantoorruimte |
| Onderhoud buiten | Uitstekend |
| Onderhoud binnen | Uitstekend |
2 eenheden beschikbaar
2 eenheden beschikbaar
- Eenheid
- Oppervlakte
- Huurprijs
- Gebruik
Eenheid omschrijving
ONDERNEMEN IN DE BILT
Waar historie en toekomst samenkomen
- Centrale locatie
- Op steenworp afstand van Utrecht
- Goed bereikbaar met auto, fiets en OV
- Nabij de A27 en de A28
- Bij Sciencepark Utrecht én Bilthoven
- 2 parkeerplaatsen op eigen terrein
- Fiets stallen op eigen terrein
- Voorzieningen op loopafstand
- Natuur op loopafstand
Een modern complex met 17 levensloopbestendige huurwoningen en 2 commerciële units. Vestig je onderneming en groei mee met de buurt. Woon betaalbaar in een historisch karaktervolle omgeving.
ZICHT EN POTENTIE AAN DE DORPSSTRAAT
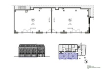
Op de begane grond van dit project komen één of twee casco commerciële units beschikbaar, variërend van één unit van ca. 130m² tot twee units van elk ca. 64m² vvo. Ideaal voor kleinschalige bedrijven, maatschappelijke dienstverlening, ambachtelijke ondernemingen of kantoorruimte.
EIGEN PARKEERPLAATS
De units beschikken allebei over één parkeerplaats op het terrein, wat gemak en bereikbaarheid garandeert. Dankzij de centrale ligging in een levendige straat is dit de perfecte plek om je onderneming te vestigen en mee te groeien met de buurt.
OPLEVERING
De units worden casco opgeleverd, wat volop ruimte biedt voor een eigen inrichting en uitstraling. Verwachte oplevering medio zomer 2027 — grijp nu je kans om straks jouw bedrijf hier te laten schitteren!
SPECIFICATIES
Adres: Dorpsstraat VO Steenstraat 14 De Bilt
Prijs: Op aanvraag
Oppervlakte: ca. 64m²/130m²
Energielabel: A+ / A++
Bereikbaarheid: Goed
Parkeren: Ja
GOEDKEURING
Het bovenstaande is onder finaal voorbehoud van de eigenaar.
Disclaimer: Ondanks dat deze publicatie met de grootst mogelijke zorgvuldigheid is samengesteld is de Online Bedrijfsmakelaar BV niet aansprakelijk te stellen voor onjuiste of onvolledige informatie die in deze publicatie vermeld staan. Aan deze gegevens kunnen geen rechten worden ontleend.
====================
Alle beschikbare informatie ontvangen?
Benieuwd naar alle beschikbare informatie over het pand? Vraag dan nu, onder de grote contactbutton, de gratis objectbrochure van de Dorpsstraat vo Steenstraat 14 in De Bilt aan en ontvang de objectbrochure binnen 5 minuten in uw mailbox. Uiteraard kunt u ook direct een geheel vrijblijvende bezichtiging met de beheerder van het pand inplannen.
Eenheid omschrijving
ONDERNEMEN IN DE BILT
Waar historie en toekomst samenkomen
- Centrale locatie
- Op steenworp afstand van Utrecht
- Goed bereikbaar met auto, fiets en OV
- Nabij de A27 en de A28
- Bij Sciencepark Utrecht én Bilthoven
- 2 parkeerplaatsen op eigen terrein
- Fiets stallen op eigen terrein
- Voorzieningen op loopafstand
- Natuur op loopafstand
Een modern complex met 17 levensloopbestendige huurwoningen en 2 commerciële units. Vestig je onderneming en groei mee met de buurt. Woon betaalbaar in een historisch karaktervolle omgeving.
ZICHT EN POTENTIE AAN DE DORPSSTRAAT
Op de begane grond van dit project komen één of twee casco commerciële units beschikbaar, variërend van één unit van ca. 130m² tot twee units van elk ca. 64m² vvo. Ideaal voor kleinschalige bedrijven, maatschappelijke dienstverlening, ambachtelijke ondernemingen of kantoorruimte.
EIGEN PARKEERPLAATS
De units beschikken allebei over één parkeerplaats op het terrein, wat gemak en bereikbaarheid garandeert. Dankzij de centrale ligging in een levendige straat is dit de perfecte plek om je onderneming te vestigen en mee te groeien met de buurt.
OPLEVERING
De units worden casco opgeleverd, wat volop ruimte biedt voor een eigen inrichting en uitstraling. Verwachte oplevering medio zomer 2027 — grijp nu je kans om straks jouw bedrijf hier te laten schitteren!
SPECIFICATIES
Adres: Dorpsstraat VO Steenstraat 14 De Bilt
Prijs: Op aanvraag
Oppervlakte: ca. 64m²/130m²
Energielabel: A+ / A++
Bereikbaarheid: Goed
Parkeren: Ja
GOEDKEURING
Het bovenstaande is onder finaal voorbehoud van de eigenaar.
Disclaimer: Ondanks dat deze publicatie met de grootst mogelijke zorgvuldigheid is samengesteld is de Online Bedrijfsmakelaar BV niet aansprakelijk te stellen voor onjuiste of onvolledige informatie die in deze publicatie vermeld staan. Aan deze gegevens kunnen geen rechten worden ontleend.
====================
Alle beschikbare informatie ontvangen?
Benieuwd naar alle beschikbare informatie over het pand? Vraag dan nu, onder de grote contactbutton, de gratis objectbrochure van de Dorpsstraat vo Steenstraat 14 in De Bilt aan en ontvang de objectbrochure binnen 5 minuten in uw mailbox. Uiteraard kunt u ook direct een geheel vrijblijvende bezichtiging met de beheerder van het pand inplannen.
| OPPERVLAKTE | Vanaf 64 m2 tot 130 m2 |
| GEBRUIK | Zorg |
| OPPERVLAKTE | Vanaf 64 m2 tot 130 m2 |
| GEBRUIK | Bedrijfsruimte |
Omschrijving
Omschrijving
ONDERNEMEN IN DE BILT
Waar historie en toekomst samenkomen
- Centrale locatie
- Op steenworp afstand van Utrecht
- Goed bereikbaar met auto, fiets en OV
- Nabij de A27 en de A28
- Bij Sciencepark Utrecht én Bilthoven
- 2 parkeerplaatsen op eigen terrein
- Fiets stallen op eigen terrein
- Voorzieningen op loopafstand
- Natuur op loopafstand
Een modern complex met 17 levensloopbestendige huurwoningen en 2 commerciële units. Vestig je onderneming en groei mee met de buurt. Woon betaalbaar in een historisch karaktervolle omgeving.
ZICHT EN POTENTIE AAN DE DORPSSTRAAT
Op de begane grond van dit project komen één of twee casco commerciële units beschikbaar, variërend van één unit van ca. 130m² tot twee units van elk ca. 64m² vvo. Ideaal voor kleinschalige bedrijven, maatschappelijke dienstverlening, ambachtelijke ondernemingen of kantoorruimte.
EIGEN PARKEERPLAATS
De units beschikken allebei over één parkeerplaats op het terrein, wat gemak en bereikbaarheid garandeert. Dankzij de centrale ligging in een levendige straat is dit de perfecte plek om je onderneming te vestigen en mee te groeien met de buurt.
OPLEVERING
De units worden casco opgeleverd, wat volop ruimte biedt voor een eigen inrichting en uitstraling. Verwachte oplevering medio zomer 2027 — grijp nu je kans om straks jouw bedrijf hier te laten schitteren!
SPECIFICATIES
Adres: Dorpsstraat VO Steenstraat 14 De Bilt
Prijs: Op aanvraag
Oppervlakte: ca. 64m²/130m²
Energielabel: A+ / A++
Bereikbaarheid: Goed
Parkeren: Ja
GOEDKEURING
Het bovenstaande is onder finaal voorbehoud van de eigenaar.
Disclaimer: Ondanks dat deze publicatie met de grootst mogelijke zorgvuldigheid is samengesteld is de Online Bedrijfsmakelaar BV niet aansprakelijk te stellen voor onjuiste of onvolledige informatie die in deze publicatie vermeld staan. Aan deze gegevens kunnen geen rechten worden ontleend.
====================
Alle beschikbare informatie ontvangen?
Benieuwd naar alle beschikbare informatie over het pand? Vraag dan nu, onder de grote contactbutton, de gratis objectbrochure van de Dorpsstraat vo Steenstraat 14 in De Bilt aan en ontvang de objectbrochure binnen 5 minuten in uw mailbox. Uiteraard kunt u ook direct een geheel vrijblijvende bezichtiging met de beheerder van het pand inplannen.
Bereikbaarheid
- De Holle Bilt 4 min. lopen
- KNMI 5 min. lopen
- Hessenweg 7 min. lopen
- Houdringe 8 min. lopen
- Looydijk 9 min. lopen