Ekkersrijt 7501 954 m2 kantoorruimte te huur in Son en Breugel
Kenmerken
| Huurprijs | € 85 m²/jaar |
| Functie | Kantoorruimte |
| Onderhoud buiten | Goed |
| Onderhoud binnen | Goed |
| Wijk / Buurt | Industrieterrein Ekkersrijt |
| Bedrijventerrein | EKKERSRIJT |
3 eenheden beschikbaar
3 eenheden beschikbaar
Gezamenlijk aangeboden De eenheden worden als één geheel aangeboden.
- Eenheid
- Oppervlakte
- Huurprijs
- Gebruik
- Unit 1
- 318 m2
- Zie Kenmerken
- Kantoorruimte
- Unit 2
- 318 m2
- Zie Kenmerken
- Kantoorruimte
- Unit 3
- 318 m2
- Zie Kenmerken
- Kantoorruimte
| OPPERVLAKTE | 318 m2 |
| HUURPRIJS | Zie Kenmerken |
| GEBRUIK | Kantoorruimte |
| OPPERVLAKTE | 318 m2 |
| HUURPRIJS | Zie Kenmerken |
| GEBRUIK | Kantoorruimte |
| OPPERVLAKTE | 318 m2 |
| HUURPRIJS | Zie Kenmerken |
| GEBRUIK | Kantoorruimte |
Omschrijving
Omschrijving
Kantoorruimtes te huur op een toplocatie aan de Ekkersrijt 7501 in Son en Breugel. Gelegen op het dynamische bedrijventerrein Ekkersrijt, met uitstekende bereikbaarheid via de snelwegen A50 (Eindhoven - Nijmegen) en A2 (Maastricht - Amsterdam). Dit biedt snelle verbindingen met grote steden in de regio. Ook openbaar vervoer is nabij, met busverbindingen naar omliggende steden en dorpen. Mede door haar uitstraling en indeling is de unit uitermate geschikt voor dienstverlenende bedrijven.
Beschikbare units
Begane grond: circa. 233 m2 VVO
Eerste verdieping: circa. 434 m2 VVO
Tweede verdieping: circa 287 m2 VVO
Deelverhuur
In overleg met de beheerder is de mogelijkheid aanwezig op de verdiepingen gezamenlijk of separaat te huren. Voor meer informatie neem contact op met de Online Bedrijfsmakelaar.
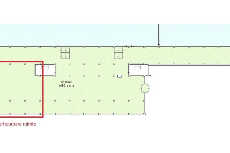
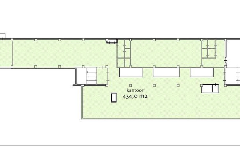
Indeling beschikbare units
Begane grond
De begane grond van circa 233 m² heeft een ruime, open indeling die in overleg met de beheerder flexibel kan worden ingericht. Met een eigen entree aan de achterzijde van het pand is deze ruimte ideaal voor bedrijven die op zoek zijn naar een rustige en zelfstandige kantoorunit.
Eerste verdieping
De eerste verdieping van circa 434 m² heeft meerdere privékantoorruimtes, een royale vergaderruimte en is toegankelijk via een gezamenlijke entree, die wordt gedeeld met de tweede verdieping. De verdieping kent dankzij haar grote raampartijen en ruime lichtstraten op de overloop veel natuurlijk lichtinval. Dit maakt het een ideale werkplek voor bedrijven in de zakelijke dienstverlening.
Tweede verdieping
De tweede verdieping van circa 287 m² bestaat uit een kleine kantoorruimte en een ruime open kantoorruimte of kantine met een productiekeuken. hierdoor is deze unit uitermate geschikt voor bedrijven in de zakelijke dienstverlening en biedt het ook uitstekende mogelijkheden voor cateringbedrijven of het organiseren van workshops.
Parkeren
Het object beschikt over zeer riant parkeerterrein en biedt volop parkeergelegenheid.
Bestemming
Volgens het actuele bestemmingsplan heeft het gebouw een "Bedrijventerrein-2” bestemming. Waardoor bedrijven tot en met milieucategorie 4.2 zijn toegestaan. Als gebruiker bent u zelf verantwoordelijk om navraag te doen naar het actuele bestemmingsplan bij de gemeente. Aan deze omschrijving kunnen geen rechten worden ontleend.
Algemene voorzieningen
- Airconditioning
- Alarminstallatie
- Glasvezel aanwezig
- LED - verlichting
- Systeemplafond met ledverlichting
- Te openen ramen met dubbele beglazing
- Toiletruimtes
- Vloerbedekking
- Wandradiatoren
In overleg met de beheerder is de mogelijkheid aanwezig om het huidige meubilair over te nemen en/of de ruimtes te moderniseren. Voor meer informatie neem contact op met de Online Bedrijfsmakelaar.
Huurcondities
Huurprijs begane grond: € 100,- per m2 per jaar excl. BTW
Huurprijs eerste verdieping: € 100,- per m2 per jaar excl. BTW.
Huurprijs tweede verdieping: € 85,- per m2 per jaar excl. BTW.
Huurtermijn: In overleg, een meerjarige overeenkomst geniet de voorkeur.
Servicekosten: Nader overeen te komen.
Aanvaarding: In overleg, noch op korte termijn.
Opzegtermijn: 6 maanden.
Zekerheidstelling: Waarborgsom ter grootte van twee maanden huur inclusief btw.
Huurindexering: Jaarlijks overeenkomstig het maand prijsindexcijfer volgens het consumentenprijsindexcijfer (CPI) reeks CPI alle huishoudens (2015=100) gepubliceerd door het Centraal Bureau voor de Statistiek (CBS). De huurprijs zal nimmer minder bedragen dan de huurprijs van het voorafgaande jaar. Indexatie voor het eerst 12 maanden na huur ingangsdatum en zo vervolgens jaarlijks.
BTW: Indien huurder niet aan het "90%-criterium”(aandeel belaste prestaties) voldoet, zal er van rechtswege sprake zijn van omzetbelasting vrijgestelde verhuur. Als dan wordt de overeengekomen kale huurprijs, exclusief omzetbelasting, zodanig verhoogd, dat het voor verhuurder ontstane financiële nadeel wordt gecompenseerd.
Huurcontract: R.O.Z.-model, huurovereenkomst kantoorruimte en andere bedrijfsruimte in de zin van artikel 7:230a BW met de benodigde aanvullingen.
Goedkeuring
Het bovenstaande is onder finaal voorbehoud van de eigenaar.
Ondanks dat deze publicatie met de grootst mogelijke zorgvuldigheid is samengesteld is de Online Bedrijfsmakelaar BV niet aansprakelijk te stellen voor onjuiste of onvolledige informatie die in deze publicatie vermeld staan. Aan deze gegevens kunnen geen rechten worden ontleend.
====================
Kortom een representatief object met volop mogelijkheden, gelegen op een uitstekend te bereiken locatie. Benieuwd naar alle beschikbare informatie over dit pand? Vraag dan nu, onder de grote contactbutton, de gratis objectbrochure van Ekkersrijt 7501 in Son en Breugel aan en ontvang de objectbrochure binnen 5 minuten in uw mailbox. Uiteraard kunt u ook direct een geheel vrijblijvende bezichtiging met de beheerder van het pand inplannen.
Bereikbaarheid
- Science Park Oost/5100 6 min. lopen