Resultaten laden ...

Goorseweg 5 100 m2 kantoorruimte te koop in Markelo

Kenmerken

Prijs Prijs op aanvraag
Functie Kantoorruimte
Onderhoud buiten Goed
Onderhoud binnen Goed

Gezamenlijk aangeboden De eenheden worden als één geheel aangeboden.

Midden in Markelo, op de kruising van de Goorseweg en de Irenestraat, staat de monumentale villa de Wheme. Het werd in 1853 gebouwd als pastorie van de Sint Martinusparochie In 1997 werd de Wheme grondig gerestaureerd en verbouwd. Waarna het nu gebruikt wordt als kantoorvilla. Een bezoek aan de Wheme brengt je terug in de tijd. Vele authentieke details uit de achttiende eeuw zijn bewaard gebleven. De prachtige hoge plafonds, de bogen in de hal, de luiken voor de ramen en vele andere unieke elementen zijn te vinden in de algemene ruimten en kantoren. Het geeft een huiselijke uitstraling van rust en tijdloosheid, die door de huurders van de Wheme wordt gewaardeerd.

Oppervlakte

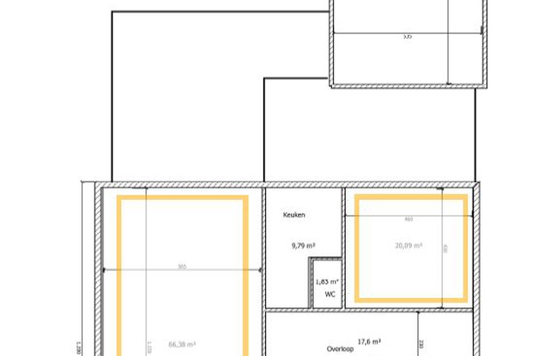
Op dit moment hebben we de gehele eerste verdieping voor verhuur beschikbaar. Hier bevinden zich 3 kantoorruimtes van 20, 35 en 66m². Zie plattegrond.

Als ook de zolder van 100 m², die nu als vergader- en trainingsruimte is ingericht.

Ligging en bereikbaarheid

Het pand ligt zeer centraal gelegen in het centrum van Markelo en 5 minuten rijden van de A1.

Parkeren

Op het terrein is voldoende parkeergelegenheid voor zowel de medewerkers als voor de bezoekers.

Opleveringsniveau

Alle noodzakelijke nutsvoorzieningen zijn aanwezig inclusief glasvezel internet.

In elke ruimte zijn voldoende aansluitingen aanwezig voor een computernetwerk met één gezamenlijke patchkast.

In de garage is krachtstroom aanwezig.

In de kantine wordt dagelijks gezamenlijk gegeten. Kosten worden na rato verdeeld.

Koopcondities

Tevens is de mogelijkheid aanwezig om het object te kopen. Voor meer informatie neem contact op met de Online Bedrijfsmakelaar.

Huurcondities

Huurprijs: vanaf € 100,- per m2 per jaar excl. BTW en servicekosten.

Huurtermijn: In overleg.

Servicekosten: € 51,30 per m2 per jaar excl. BTW

Aanvaarding: per direct

Opzegtermijn: In overleg.

Zekerheidstelling: NVT

Huurindexering: Jaarlijks overeenkomstig het maand prijsindexcijfer volgens het consumentenprijsindexcijfer (CPI) reeks CPI alle huishoudens (2006=100) gepubliceerd door het Centraal Bureau voor de Statistiek (CBS). De huurprijs zal nimmer minder bedragen dan de huurprijs van het voorafgaande jaar. Indexatie vindt plaats per 1 januari van elk kalenderjaar.

BTW: Ja, is van toepassing

Goedkeuring

Het bovenstaande is onder finaal voorbehoud van de eigenaar.

Disclaimer: Ondanks dat deze publicatie met de grootst mogelijke zorgvuldigheid is samengesteld is de Online Bedrijfsmakelaar BV niet aansprakelijk te stellen voor onjuiste of onvolledige informatie die in deze publicatie vermeld staan. Aan deze gegevens kunnen geen rechten worden ontleend.

====================

Alle beschikbare informatie ontvangen?

Benieuwd naar alle beschikbare informatie over de pand? Vraag dan nu, onder de grote contactbutton, de gratis objectbrochure van de Goorseweg 5 in Markelo en ontvang de objectbrochure binnen 5 minuten in uw mailbox. Uiteraard kunt u ook direct een geheel vrijblijvende bezichtiging met de beheerder van het pand inplannen.

Bereikbaarheid

Tram, bus, metro
  • Burg. de Beaufortplein 2 min. lopen
  • De Koekoek 5 min. lopen
  • Larenseweg 8 min. lopen

Bijlagen

De aanbieder van dit object heeft een PDF Brochure beschikbaar gesteld.

Vraag brochure aan