Groenewoud 25 E 131 m2 kantoorruimte te huur in Drunen
Kenmerken
| Huurprijs | € 14.400 /jaar |
| Functie | Kantoorruimte |
| Wijk / Buurt | Bedrijvenpark Groenewoud |
| Bedrijventerrein | GROENEWOUD (voorheen Groenewoud II en III) |
1 eenheid beschikbaar
1 eenheid beschikbaar
- Eenheid
- Oppervlakte
- Huurprijs
- Gebruik
- 1
- 131 m2
- € 14.400 /jaar
- Kantoorruimte
| OPPERVLAKTE | 131 m2 |
| GEBRUIK | Kantoorruimte |
Omschrijving
Omschrijving
Locatie
Het kantoorgebouw ligt op de hoek van de straten Groenewoud en Thomas Edisonweg op bedrijventerrein Groenewoud. Het bedrijventerrein bevindt zich direct aan de A59 (Waalwijk-‘s-Hertogenbosch). De bereikbaarheid is hier uitstekend. De dorpskern ligt ook op korte afstand. Hier zijn alle voorzieningen aanwezig.
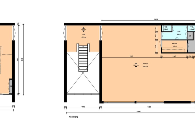
Object
Het betreft een volledig zelfstandige kantoorruimte met een gezamenlijke entree; het kantoor ligt op de eerste verdieping. Inpandig is een grote nog nader in te delen kantoortuin met afgesloten keuken met pantry voorzien van koelkast, magnetronoven en warm watervoorziening. Voorts is er een eigen dames en heren toilet. Verwarming geschiedt middels een cv-ketel aangesloten op radiatoren. Er is een eigen airco installatie bestaande uit twee plafondunits.
Opleveringsniveau
Het object is onder andere voorzien van:
- korreltapijt;
- systeemplafond met verlichting;
- pantry met vaatwasser, koelkast en magnetron;
- airconditioning;
- kabelgoot met stroompunten;
- lamellen.
Parkeren
Er zijn ruimvoldoende parkeerplekken aanwezig op eigen terrein.
Bestemming
Het object valt binnen het bestemmingsplan “Bedrijventerrein Groenewoud II”, vastgesteld op 23 september 2014, waarin het de bestemming “bedrijf” heeft gekregen met de aanduiding “milieucategorie 1 t/m 3”. Voor een afschrift van dit bestemmingsplan kunt u contact met ons kantoor opnemen.