Grote Kerkstraat 22
474 m2 kantoorruimte te koop in Venlo
Kenmerken
| Prijs | € 695.000 |
| Functie | Kantoorruimte |
| Wijk / Buurt | Winkelcentrum |
1 eenheid beschikbaar
1 eenheid beschikbaar
Omschrijving
Omschrijving
Gemeentelijke monument gelegen in een sfeervolle straat op zeer korte afstand van alle wensbare voorzieningen.
Met ruim 100.000 inwoners en de nabijheid van Noordrijn-Westfalen met 18 miljoen inwoners heeft Venlo een uniek verzorgingsgebied. De combinatie van dagelijkse bezoekers, regionale consumenten en Duitse dagtoeristen zorgt voor een unieke markt voor ondernemers. Venlo trekt meer dan 10 miljoen bezoekers per jaar. KenmerkenAlgemeen
De Grote Kerkstraat is van oudsher een straat met veel karakteristieke panden. Het object is aangemerkt als gemeentelijk monument en in 1900 gebouwd zeer vermoedelijk naar ontwerp van de architect Henri Seelen Bestemming
Het pand valt onder het bestemmingsplan ‘Centrum Venlo’ met bestemming ‘Centrum-2’, waardoor verschillende gebruiksmogelijkheden toegestaan zijn, waaronder detailhandel; horeca; dienstverlening; bed en breakfast; en wonen (uitsluitend op de verdiepingen, waaronder tevens begrepen kamerbewoning (maximaal 4 personen), inclusief dakterras);
Transformatie naar wonen (tevens op de begane grond) behoort tot de mogelijkheden. Oppervlakte
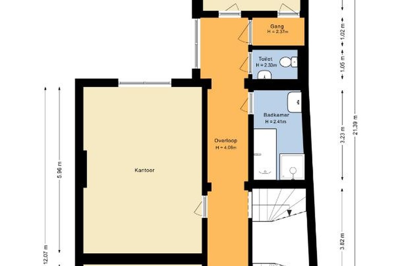
Het object heeft een totale oppervlakte van 555 m², waarvan 177 m² op de begane grond, 136 m² op de eerste verdieping, 139 m² op de tweede verdieping en 102 m² in de kelder. Ligging
Het gemeentelijke monument is gelegen in het midden van de Grote Kerkstraat. In de directe nabijheid zijn diverse winkel- en horecagelegenheden gevestigd. Parkeren
Op korte afstand bevinden zich twee parkeergarages. As is, where is.
Het object zal worden verkocht en geleverd ‘as-is, where is’, dat wil zeggen in de staat ten tijde van de levering met alle aan het object verbonden rechten en plichten, alsmede eventuele zichtbare en onzichtbare gebreken en zonder garantie van enig soort, waaronder die met betrekking tot technische, bouwkundige, juridische, fiscale, milieukundige, huur- en commerciële aspecten van het verkochte. Onderzoeksplicht
Koper is ten allen tijde gerechtigd voor eigen rekening een bouwkundige keuring te (laten) verrichten dan wel andere adviseurs te raadplegen teneinde een goed inzicht te verkrijgen over de staat van het object. Vastlegging
Koopovereenkomst conform model NVM.
Aanbevolen voor u
Bekijk
kantoorruimte in Venlo
of bekijk deze panden: