Grote Marktstraat 43 483 m2 kantoorruimte te huur in Den Haag
Kenmerken
| Huurprijs | € 195 m²/jaar |
| Functie | Kantoorruimte |
| Onderhoud buiten | Goed |
| Onderhoud binnen | Goed |
| Wijk / Buurt | Zuidwal |
1 eenheid beschikbaar
1 eenheid beschikbaar
- Eenheid
- Oppervlakte
- Huurprijs
- Gebruik
- 1
- 483 m2
- € 195 m²/jaar
- Kantoorruimte
| OPPERVLAKTE | 483 m2 |
| GEBRUIK | Kantoorruimte |
Omschrijving
Omschrijving
Sijthoff City, gelegen op de hoek van de Grote Marktstraat en de Wagenstraat tussen de Bijenkorf en tegenover de Jumbo City. Het gebouw heeft een bijzondere uitstraling met onder meer hoge transparante etalages en een bijzondere gevelafwerking van composiet met details die verwijzen naar de traditionele architectuur in de omgeving en naar het symbool van de stad Den Haag.
Sijthoff heeft het BREEAM-certificaat Very Good ontvangen voor de Nieuwbouw Ontwerpfase en heeft 2 winkellagen van totaal circa 4.667 m² en circa 6.865 m² kantoorruimte. Het gebouw ligt op een unieke locatie in het centrum van Den Haag. Alle voorzieningen, die u van de binnenstad mag verwachten, zijn op loopafstand te bereiken.
ADRES
Grote Marktstraat 43 - 49 () Den Haag.
OPPERVLAKTE
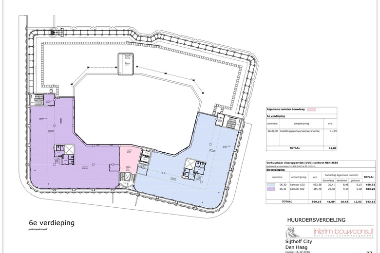
De totale oppervlakte van de kantoorruimte in het gebouw bedraagt circa 6.865 m² VVO kantoorruimte. Voor de verhuur is thans ca. 483 m² kantoorruimte beschikbaar en als volgt verdeeld:
6e verdieping (unit XIV): ca. 483 m²
Totaal: ca. 483 m²
Onder verhuurbaar vloeroppervlak (VVO) wordt verstaan:
het bruto vloeroppervlak (gemeten van glaslijn tot glaslijn en aan de binnenzijden van de buitenmuren), exclusief stijgpunten en technische ruimten, doch inclusief gangen, toiletten en dergelijke.
PARKEREN
Onder de Grote Marktstraat ligt de Q-Park garage met 390 parkeerplaatsen. Het is mogelijk hiervoor een abonnement af te sluiten, het maandtarief 24/5 is € 500,06, exclusief BTW. Een abonnement voor parkeren tijdens kantooruren is € 434,83 per maand exclusief BTW.
KADASTRALE GEGEVENS
Gemeente: ’s-Gravenhage
Sectie: I
Nummer: 2908
Grootte: 29 a 90 ca (gedeeltelijk)
Omschrijving: BEDRIJVIGHEID
HUURPRIJS
De huurprijs voor de kantoorruimte is als volgt:
Kantoorruimte
€ 195,- per m² per jaar.
Bovengenoemd bedrag dient te worden vermeerderd met de verschuldigde BTW.
BTW STATUS
Verhuurder wenst te opteren voor een BTW belaste verhuur.
Huurder dient voor tenminste 90% met omzetbelasting belaste prestaties te verrichten. Indien huurder niet aan dit criterium voldoet, zal van rechtswege sprake zijn van een van omzetbelasting vrijgestelde verhuur.
In dit geval wordt de overeengekomen kale huurprijs, zonder de omzetbelasting, dusdanig verhoogd dat het voor de verhuurder ontstane financiële nadeel wordt gecompenseerd.
SERVICEKOSTEN
De servicekosten zijn als voorschot bij vooruitbetaling verschuldigd, op basis van jaarlijkse nacalculatie.
De servicekosten bedragen € 60,- per m² per jaar, te vermeerderen met BTW.
LEVERING EN DIENSTEN
In de servicekosten zijn onder andere de volgende leveringen en diensten inbegrepen:
- gas, c.q. olieverbruik inclusief vastrecht;
- elektriciteitsverbruik inclusief vastrecht ten behoeve van de installaties en de verlichting van de
- gemeenschappelijke ruimten alsmede het individueel elektraverbruik;
- waterverbruik inclusief vastrecht;
- onderhoud en periodieke controle van verwarmings- en/of luchtbehandeling en/of koelinstallatie(s);
- idem van liftinstallatie(s);
- idem van hydrofoorinstallatie;
- idem van glazenwasinstallatie;
- idem van brandmelder-, gebouwbewakings-, storingsmelder- en noodstroominstallatie(s);
- idem van automatische deurbediening;
- schoonmaakkosten van de gemeenschappelijke ruimten, liften, beglazing buitenzijde alsmede, beglazing gemeenschappelijke ruimten, terrassen, parkeerkelder en/of terrein.
- verzorging huisvuil, containerhuur e.d.;
- onderhoud terrein, tuinen, vijvers, plantenbakken binnen in de gemeenschappelijke ruimten en
buiten, waaronder vervanging van planten;
- nachtveiligheidsdienst, bewaking;
- portier/huismeester;
- Rioleringskosten;
- Overige leveringen en diensten die Verhuurder in overleg met Huurder overeenkomsten;
- administratiekosten ad 5% over de hierboven genoemde leveringen en diensten.
HUURPRIJSAANPASSING
Jaarlijks, op basis van de wijziging van het maand-prijsindexcijfer volgens de consumentenprijsindex (CPI) reeks CPI-alle huishoudens (2015=100), gepubliceerd door het Centraal Bureau voor de Statistiek (CBS).
HUURPRIJSBETALING
Per kalenderkwartaal vooruit.
HUURTERMIJN
5 (vijf) jaar met verlengingsperioden van 5 (vijf) jaar.
OPLEVERING
In de huidige staat ‘as is, where is’, o.a. voorzien van de navolgende faciliteiten:
- Systeemplafond met verlichtingsarmaturen en bewegingssensoren;
- Huidige (glazen) scheidingswanden;
- Pantry voorzien van koelkast en afwasmachine;
- Sanitaire voorzieningen;
- Luchtbehandelingsinstallaties;
- Huidige vloerbedekking;
- Huidige databekabeling;
- Huidige deuren;
Tevens beschikt het gebouw over:
- Representatieve entree;
- Receptiebalie (bemand);
- Drie liften;
- Gemeenschappelijke fietsenstalling;
- Toegangscontrolesysteem;
- Binnentuin gelegen op de 3e verdieping.
AANVAARDING
In overleg.
ZEKERHEIDSSTELLING
Bankgarantie, ter grootte van 3 (drie) kalendermaanden huur en servicekosten, beiden te vermeerderen met BTW.
HUUROVEREENKOMST
Huurovereenkomst kantoorruimte en andere bedrijfsruimte in de zin van artikel 7: 230a BW conform het model van de Raad voor Onroerende Zaken (ROZ) zoals op 3 juni 2025 gedeponeerd bij de griffie van de rechtbank te Den Haag en aldaar ingeschreven onder nummer 11/2025, alsmede de daarbij behorende algemene bepalingen.
LOCATIE
De Grote Marktstraat is van oudsher één van de belangrijkste verbindingsroutes door het hart van de stad. Hierdoor heeft de kantoorruimte een zeer hoge attentiewaarde.
In de directe nabijheid bevindt zich het Spuimarkt met onder meer de bioscoop Pathé, Inter Sport en een vestiging van C&A . Verder zijn er in de omgeving vestigingen van onder meer HEMA, De Bijenkorf, Mediamarkt, Zara, en Primark. Aan het Spui vindt u ook het Stadhuis, de Openbare Bibliotheek Den Haag en het Haags Filmhuis.
BEREIKBAARHEID
De bereikbaarheid met de auto is uitstekend vanwege de directe aansluiting op de A12 en de A4. Beide op- en afritten bevinden zich in de directe omgeving van het verkeersknooppunt Prins Clausplein, alwaar de A4 (Den Haag – Amsterdam), A12 (Den Haag – Utrecht) en A13 (Den Haag – Rotterdam) samenkomen. Met het openbaar vervoer is het kantoorgebouw eveneens uitstekend bereikbaar. Direct voor de deur bevinden zich diverse haltes van tramlijnen 1, 4, 9, 15 en 16 en zijn te bereiken via Station Hollands Spoor en Den Haag Centraal Station.
BESTEMMING
De kantoorruimte valt binnen de bepalingen van het vigerende bestemmingsplan ‘Het Oude Centrum (Binnenstad)’ en heeft de bestemming ‘kantoor’
ENERGIELABEL
De kantoorruimte beschikt over Energielabel A.
COURTAGE
Mocht door bemiddeling van NDRP Real Estate een transactie tot stand komen, dan zult u ons hiervoor geen courtage verschuldigd zijn.
Bovenstaande informatie is met zorg samengesteld en uit betrouwbare bron afkomstig. Ten aanzien van de juistheid ervan kunnen wij echter geen aansprakelijkheid aanvaarden.
Bereikbaarheid
- Grote Markt 2 min. lopen
- Spui 3 min. lopen
- Gravenstraat 4 min. lopen
- Centrum 4 min. lopen
- Kalvermarkt-Stadhuis 6 min. lopen