Resultaten laden ...

Harste 5 1.640 m2 kantoorruimte te koop in Sneek

Kenmerken

Prijs prijs op aanvraag
Functie Kantoorruimte
Wijk / Buurt Noorderhoek II

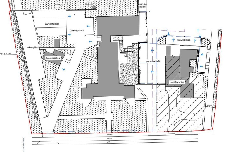
MVGM Bedrijfsmakelaars is door de verkoper gevraagd om als adviseur op te treden in het verkoopproces van het object aan de Harste 5-9 in Sneek. Het betreft een bedrijfscomplex bestaande uit een kantoorpand, een bedrijfswoning met paardenstal en een bijgebouw.

Het kantoorpand heeft een metrage van 1.640 m² en bestaat uit een hoofdgebouw (1980) met een aanbouw (2000). Het bijgebouw heeft een metrage van 117 m² en is gelegen rechts van het hoofdgebouw tegen de bedrijfswoning aan. Het geheel beschikt over een ruime parkeerplaats met 55 parkeerplaatsen en een fietsenstalling.

Het kantoorpand heeft een energielabel B.

Er zal nog een kadastrale splitsing en inmeting plaatsvinden. De uiteindelijke perceelgrootte is circa 69 are en 93 ca (6.993 m²).

Het kantoorpand zal leeg en vrij van gebruik worden opgeleverd. De bedrijfswoning is verhuurd tot en met 31 maart 2025.

Het dak van het kantoorgebouw is aan de voorzijde voorzien van zonnepanelen.

Locatie

Sneek ligt ten zuidwesten van Leeuwarden tussen Joure en Bolsward en is een stad met ongeveer 34.000 inwoners in de provincie Friesland. De stad staat bekend om haar levendige binnenstad met pittoreske grachten en veel historie.

Harste 5 bevindt zich in het hart van Sneek's bedrijvencentrum, direct verbonden met de belangrijkste verkeersaders zoals de A7. Dit biedt gemakkelijke toegang tot omliggende steden zoals Leeuwarden, Heerenveen en Groningen.

De locatie ligt vlakbij het bedrijventerrein ‘’De Hemmen’’ en bevindt zich in een levendig zakelijk district met een scala aan voorzieningen in de directe omgeving.

Procedure

Kopers kunnen een onderhandse bieding bij de makelaar indienen. De koper zal de feitelijke, juridische, milieukundige, technische en fiscale aspecten accepteren op het moment van leveren en daarmee alle bekende, zichtbare en onzichtbare beperkingen en verplichtingen. Kopers dienen zelf een bieding uit te brengen bij de makelaar. Voor eventuele vragen kunt u contact opnemen met ons kantoor.

Bereikbaarheid

Tram, bus, metro
  • Antonius Ziekenhuis 7 min. lopen