Huizerweg 4 310 m2 kantoorruimte te huur in Bussum
Kenmerken
| Huurprijs | € 5.750 /maand |
| Functie | Kantoorruimte |
| Onderhoud buiten | Uitstekend |
| Onderhoud binnen | Uitstekend |
| Wijk / Buurt | Cereslaan |
1 eenheid beschikbaar
1 eenheid beschikbaar
- Eenheid
- Oppervlakte
- Huurprijs
- Gebruik
Eenheid omschrijving
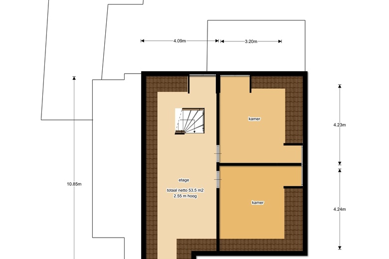
Karakteristieke kantoorvilla van totaal ca. 310 m², verdeeld over 3 bouwlagen.
Op loopafstand van het centrum van Bussum is deze, zeer representatieve, villa gelegen.
In totaal zijn er maar liefst 12 kantoor-/spreekkamers, variërend in grootte.
INDELING
Via de entree aan de linkerzijde van de villa toegang tot de representatieve en lichte hal met toegang tot diverse kantoorkamers.
Vanuit de keuken toegang tot de overige kantoren.
Een deel van de kantoren is voorzien van vaste kasten.
Via het lichte trappenhuis toegang tot de pantry op de verdieping, voorts zijn vanaf de overloop de 4 kantoorkamers, grotendeels voorzien van vaste kasten, toegankelijk.
Op de 2e etage is een ruime overloop met toegang tot nog eens 2 kantoorkamers en een grote open (en lichte) werkruimte.
OPLEVERINGSNIVEAU
De villa kent een representatief opleveringsniveau en is o.a voorzien van:
- toilet op de begane grond en de verdieping;
- pantry op de begane grond en verdieping;
- diverse vaste kasten;
- alarm- en brandmeldinstallatie;
- op diverse plekken in de villa zijn de originele, zeer karakteristieke glas in lood ramen nog aanwezig.
PARKEREN
Op eigen terrein zijn totaal ca. 10 parkeerplaatsen beschikbaar.
BIJZONDERHEDEN
- Huurder dient zelf de nutsvoorzieningen op haar naam te stellen.
- Huurder is zelf verantwoordelijk voor o.a. tuinonderhoud, onderhoud gebouwgebonden installaties etc.
- Gunning verhuurder voorbehouden.
| OPPERVLAKTE | 310 m2 |
| GEBRUIK | Kantoorruimte |
Omschrijving
Omschrijving
Karakteristieke kantoorvilla van totaal ca. 310 m², verdeeld over 3 bouwlagen.
Op loopafstand van het centrum van Bussum is deze, zeer representatieve, villa gelegen.
In totaal zijn er maar liefst 12 kantoor-/spreekkamers, variërend in grootte.
INDELING
Via de entree aan de linkerzijde van de villa toegang tot de representatieve en lichte hal met toegang tot diverse kantoorkamers.
Vanuit de keuken toegang tot de overige kantoren.
Een deel van de kantoren is voorzien van vaste kasten.
Via het lichte trappenhuis toegang tot de pantry op de verdieping, voorts zijn vanaf de overloop de 4 kantoorkamers, grotendeels voorzien van vaste kasten, toegankelijk.
Op de 2e etage is een ruime overloop met toegang tot nog eens 2 kantoorkamers en een grote open (en lichte) werkruimte.
OPLEVERINGSNIVEAU
De villa kent een representatief opleveringsniveau en is o.a voorzien van:
- toilet op de begane grond en de verdieping;
- pantry op de begane grond en verdieping;
- diverse vaste kasten;
- alarm- en brandmeldinstallatie;
- op diverse plekken in de villa zijn de originele, zeer karakteristieke glas in lood ramen nog aanwezig.
PARKEREN
Op eigen terrein zijn totaal ca. 10 parkeerplaatsen beschikbaar.
BIJZONDERHEDEN
- Huurder dient zelf de nutsvoorzieningen op haar naam te stellen.
- Huurder is zelf verantwoordelijk voor o.a. tuinonderhoud, onderhoud gebouwgebonden installaties etc.
- Gunning verhuurder voorbehouden.
Bereikbaarheid
- Poststraat 1 min. lopen
- Nieuwe Brink 5 min. lopen
- Oosteinde 5 min. lopen
- Centrum 7 min. lopen
- Gooibergstraat 8 min. lopen