Industriestraat 23 675 m2 kantoorruimte te huur in Naaldwijk
Kenmerken
| Huurprijs | Prijs op aanvraag |
| Functie | Kantoorruimte |
| Onderhoud buiten | Uitstekend |
| Onderhoud binnen | Uitstekend |
| Wijk / Buurt | Hoge Woerd |
| Bedrijventerrein | De Woerd |
1 eenheid beschikbaar
1 eenheid beschikbaar
- Eenheid
- Oppervlakte
- Huurprijs
- Gebruik
Eenheid omschrijving
Op een prominente hoeklocatie op bedrijventerrein ‘De Woerd’ in Naaldwijk komt per Q2 2026 een representatieve en gemoderniseerde kantoorruimte beschikbaar voor de verhuur. Het object is gelegen aan de kruising van de Industriestraat en de Energiestraat, wat zorgt voor optimale zichtbaarheid en bereikbaarheid.
Het object wordt, zowel intern als extern, grootschalig gerenoveerd en gemoderniseerd tot een toekomstbestendige en volledig geoptimaliseerde werkomgeving. Met oog voor comfort, uitstraling en functionaliteit wordt iedere vierkante meter opnieuw ontworpen om te voldoen aan de hedendaagse wensen van kantoorgebruikers. Het object biedt een combinatie van verschillende kantoorruimtes, spreekkamers en een vrij indeelbare bedrijfsruimte (op de impressies ook als presentatieruimte weergegeven).
KANTOORRUIMTE
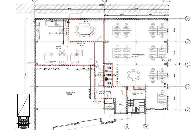
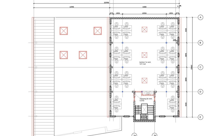
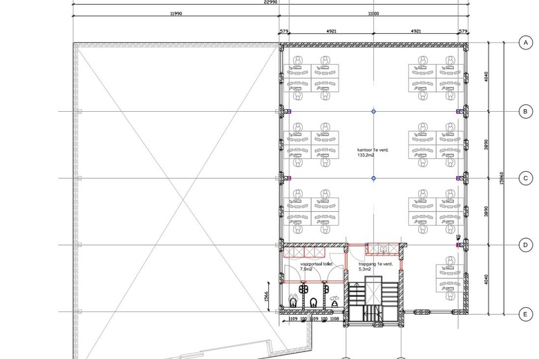
Via de entree op de begane grond bereikt u de kantoorruimte welke verdeeld is over drie verdiepingen. De kantoorruimte op de begane grond is ca. 369 m² BVO groot, waarvan ca. 115 m² BVO is ingericht als vrije indeelbare bedrijfsruimte/presentatieruimte. De kantoorruimtes op de 1e verdieping en 2e verdieping zijn beide ca. 153 m² BVO groot. De kantoorruimtes worden grootschalig gemoderniseerd en zullen voldoen aan de hedendaagse wensen op het gebied van uitstraling en comfort. De kantoorruimtes worden onder meer
voorzien van:
• Kantineruimte met moderne keuken voorzien van divers inbouwapparatuur;
• Per verdieping een pantry met spoelbak, koelkast en vaatwasser;
• Diverse werk en spreekkamers;
• Vrij indeelbare bedrijfsruimte, ook als presentatieruimte in te richten;
• Toiletruimtes op zowel de begane grond als 1e verdieping;
• Vloerverwarming;
• Airco units;
• Alarmsysteem;
• Toegang middels tagsysteem;
• Wit systeemplafond met LED verlichting;
• Tapijttegels in de kantoren en PVC visgraat vloer in de verkeersruimte en kantine;
• Gestuukte, gevliesde en gesauste wanden;
• Compleet vernieuwde elektra en diverse aansluitingen voor data en elektra;
• Veel daglichttoetreding door de lichtkoepels op de 2e verdieping;
• Plafondhoogte van ca. 2,6 meter op de 2e verdieping.
Eventuele aanvullende voorzieningen in de bedrijfsruimte door verhuurder in te brengen zijn bespreekbaar. Tevens zijn er meerdere indelingen per verdieping mogelijk.
BOUWJAAR
Het pand is in 1979 gebouwd en opgeleverd en wordt in 2026 grootschalig gerenoveerd.
PARKEREN
Bij het object behoren 15 eigen parkeerplaatsen op eigen terrein.
LIGGING EN BEREIKBAARHEID
Dit pand ligt in het hart van het bedrijventerrein De Woerd in Naaldwijk, een centraal gelegen gebied binnen de gemeente Westland. Het is uitstekend bereikbaar via het provinciale wegennet, en de A4 (Den Haag – Amsterdam) en A20 (Rotterdam) liggen op slechts enkele minuten rijden. Ook is er een bushalte Industriestraat op 5 minuten loopafstand, met directe verbindingen naar het centrale busstation van Naaldwijk. Van daaruit zijn omliggende dorpen en steden zoals Rotterdam, Den Haag en Delft snel bereikbaar met het openbaar vervoer.
BESTEMMING
Conform vigerend bestemmingsplan ‘Bedrijventerrein De Hoge Woerd’ is op de locatie bedrijvigheid tot en met categorie 4.1 toegestaan.
HUURPRIJS
De huurprijs van het object is op aanvraag.
SERVICEKOSTEN
Geen. Huurder is zelf verantwoordelijk voor het afsluiten van contracten met de desbetreffende nutsbedrijven, alsmede overige abonnementen.
HUURGARANTIE
Een bankgarantie of waarborgsom ter grootte van een betalingsverplichting van drie maanden huur inclusief BTW en servicekosten.
BESCHIKBAAR
Het object is begin Q2 2026 beschikbaar.
ENERGIELABEL
Het object beschikt over energielabel A, geldig tot 6 juli 2030.
HUURINGANGSDATUM
In overleg.
HUURTERMIJN
Uitgangspunt is een huurovereenkomst voor 5 + 5 jaar. Overige termijnen zijn in overleg met de eigenaar.
HUUROVEREENKOMST
De te sluiten huurovereenkomst zal worden opgemaakt conform het model dat door de Raad van Onroerende Zaken met bijbehorende Algemene Bepalingen is vastgesteld in maart 2025.
HUURBETALING
Per maand vooruit.
HUURPRIJSHERZIENING
Jaarlijks, voor het eerst één jaar na datum huuringang, op basis van de wijziging van het maandindexcijfer volgens de consumentenprijs index (CPI) reeks alle huishoudens (2015 = 100), gepubliceerd door het Centraal Bureau voor de Statistiek (CBS), met dien verstande, dat de huurprijs nimmer zal dalen beneden de laatst geldende huurprijs.
OMZETBELASTING
Over de huurprijs is BTW verschuldigd. Uitgangspunt bij het tot stand komen van een huurovereenkomst is, dat huurder het gehuurde voor 90% of meer gebruikt voor met BTW belaste prestaties. Huurder zal zich zoveel als in zijn vermogen ligt inspannen om ervoor te zorgen dat niet van dit standpunt wordt afgeweken. Indien op enig moment een situatie aan de zijde van de huurder intreedt waardoor geen recht meer wordt gedaan aan dit uitgangspunt, is huurder gehouden om het daaruit voor verhuurder voortvloeiende nadeel te vergoeden.
COURTAGE
Indien door bemiddeling van Batenburg Bedrijfshuisvesting bij dit object een transactie tot stand wordt gebracht, dan zult u ons hiervoor geen kosten of courtage verschuldigd zijn.
VOORBEHOUD
Eventuele transacties dienen ter goedkeuring voorgelegd te worden aan opdrachtgever c.q. eigenaar van het gebouw.
ALGEMEEN
De informatie met betrekking tot het voormelde onroerend goed is met zorg samengesteld. Batenburg Bedrijfshuisvesting aanvaardt echter geen enkele aansprakelijkheid voor de juistheid, volledigheid of actualiteit van de verstrekte gegevens. Aan deze informatie kunnen geen rechten worden ontleend. Deze informatieverstrekking vormt geen aanbod en kan niet worden beschouwd als een offerte. Wijzigingen en tussentijdse aanpassingen zijn uitdrukkelijk voorbehouden.
| OPPERVLAKTE | 675 m2 |
| GEBRUIK | Kantoorruimte |
Omschrijving
Omschrijving
Op een prominente hoeklocatie op bedrijventerrein ‘De Woerd’ in Naaldwijk komt per Q2 2026 een representatieve en gemoderniseerde kantoorruimte beschikbaar voor de verhuur. Het object is gelegen aan de kruising van de Industriestraat en de Energiestraat, wat zorgt voor optimale zichtbaarheid en bereikbaarheid.
Het object wordt, zowel intern als extern, grootschalig gerenoveerd en gemoderniseerd tot een toekomstbestendige en volledig geoptimaliseerde werkomgeving. Met oog voor comfort, uitstraling en functionaliteit wordt iedere vierkante meter opnieuw ontworpen om te voldoen aan de hedendaagse wensen van kantoorgebruikers. Het object biedt een combinatie van verschillende kantoorruimtes, spreekkamers en een vrij indeelbare bedrijfsruimte (op de impressies ook als presentatieruimte weergegeven).
KANTOORRUIMTE
Via de entree op de begane grond bereikt u de kantoorruimte welke verdeeld is over drie verdiepingen. De kantoorruimte op de begane grond is ca. 369 m² BVO groot, waarvan ca. 115 m² BVO is ingericht als vrije indeelbare bedrijfsruimte/presentatieruimte. De kantoorruimtes op de 1e verdieping en 2e verdieping zijn beide ca. 153 m² BVO groot. De kantoorruimtes worden grootschalig gemoderniseerd en zullen voldoen aan de hedendaagse wensen op het gebied van uitstraling en comfort. De kantoorruimtes worden onder meer
voorzien van:
• Kantineruimte met moderne keuken voorzien van divers inbouwapparatuur;
• Per verdieping een pantry met spoelbak, koelkast en vaatwasser;
• Diverse werk en spreekkamers;
• Vrij indeelbare bedrijfsruimte, ook als presentatieruimte in te richten;
• Toiletruimtes op zowel de begane grond als 1e verdieping;
• Vloerverwarming;
• Airco units;
• Alarmsysteem;
• Toegang middels tagsysteem;
• Wit systeemplafond met LED verlichting;
• Tapijttegels in de kantoren en PVC visgraat vloer in de verkeersruimte en kantine;
• Gestuukte, gevliesde en gesauste wanden;
• Compleet vernieuwde elektra en diverse aansluitingen voor data en elektra;
• Veel daglichttoetreding door de lichtkoepels op de 2e verdieping;
• Plafondhoogte van ca. 2,6 meter op de 2e verdieping.
Eventuele aanvullende voorzieningen in de bedrijfsruimte door verhuurder in te brengen zijn bespreekbaar. Tevens zijn er meerdere indelingen per verdieping mogelijk.
BOUWJAAR
Het pand is in 1979 gebouwd en opgeleverd en wordt in 2026 grootschalig gerenoveerd.
PARKEREN
Bij het object behoren 15 eigen parkeerplaatsen op eigen terrein.
LIGGING EN BEREIKBAARHEID
Dit pand ligt in het hart van het bedrijventerrein De Woerd in Naaldwijk, een centraal gelegen gebied binnen de gemeente Westland. Het is uitstekend bereikbaar via het provinciale wegennet, en de A4 (Den Haag – Amsterdam) en A20 (Rotterdam) liggen op slechts enkele minuten rijden. Ook is er een bushalte Industriestraat op 5 minuten loopafstand, met directe verbindingen naar het centrale busstation van Naaldwijk. Van daaruit zijn omliggende dorpen en steden zoals Rotterdam, Den Haag en Delft snel bereikbaar met het openbaar vervoer.
BESTEMMING
Conform vigerend bestemmingsplan ‘Bedrijventerrein De Hoge Woerd’ is op de locatie bedrijvigheid tot en met categorie 4.1 toegestaan.
HUURPRIJS
De huurprijs van het object is op aanvraag.
SERVICEKOSTEN
Geen. Huurder is zelf verantwoordelijk voor het afsluiten van contracten met de desbetreffende nutsbedrijven, alsmede overige abonnementen.
HUURGARANTIE
Een bankgarantie of waarborgsom ter grootte van een betalingsverplichting van drie maanden huur inclusief BTW en servicekosten.
BESCHIKBAAR
Het object is begin Q2 2026 beschikbaar.
ENERGIELABEL
Het object beschikt over energielabel A, geldig tot 6 juli 2030.
HUURINGANGSDATUM
In overleg.
HUURTERMIJN
Uitgangspunt is een huurovereenkomst voor 5 + 5 jaar. Overige termijnen zijn in overleg met de eigenaar.
HUUROVEREENKOMST
De te sluiten huurovereenkomst zal worden opgemaakt conform het model dat door de Raad van Onroerende Zaken met bijbehorende Algemene Bepalingen is vastgesteld in maart 2025.
HUURBETALING
Per maand vooruit.
HUURPRIJSHERZIENING
Jaarlijks, voor het eerst één jaar na datum huuringang, op basis van de wijziging van het maandindexcijfer volgens de consumentenprijs index (CPI) reeks alle huishoudens (2015 = 100), gepubliceerd door het Centraal Bureau voor de Statistiek (CBS), met dien verstande, dat de huurprijs nimmer zal dalen beneden de laatst geldende huurprijs.
OMZETBELASTING
Over de huurprijs is BTW verschuldigd. Uitgangspunt bij het tot stand komen van een huurovereenkomst is, dat huurder het gehuurde voor 90% of meer gebruikt voor met BTW belaste prestaties. Huurder zal zich zoveel als in zijn vermogen ligt inspannen om ervoor te zorgen dat niet van dit standpunt wordt afgeweken. Indien op enig moment een situatie aan de zijde van de huurder intreedt waardoor geen recht meer wordt gedaan aan dit uitgangspunt, is huurder gehouden om het daaruit voor verhuurder voortvloeiende nadeel te vergoeden.
COURTAGE
Indien door bemiddeling van Batenburg Bedrijfshuisvesting bij dit object een transactie tot stand wordt gebracht, dan zult u ons hiervoor geen kosten of courtage verschuldigd zijn.
VOORBEHOUD
Eventuele transacties dienen ter goedkeuring voorgelegd te worden aan opdrachtgever c.q. eigenaar van het gebouw.
ALGEMEEN
De informatie met betrekking tot het voormelde onroerend goed is met zorg samengesteld. Batenburg Bedrijfshuisvesting aanvaardt echter geen enkele aansprakelijkheid voor de juistheid, volledigheid of actualiteit van de verstrekte gegevens. Aan deze informatie kunnen geen rechten worden ontleend. Deze informatieverstrekking vormt geen aanbod en kan niet worden beschouwd als een offerte. Wijzigingen en tussentijdse aanpassingen zijn uitdrukkelijk voorbehouden.
Bereikbaarheid
- Ambachtstraat 3 min. lopen
- Hoge Woerd 4 min. lopen
- Industriestraat 5 min. lopen
- Lage Woerd 10 min. lopen