Resultaten laden ...

Kerklaan 9 b

750 m2 kantoorruimte te koop in Laren

Kenmerken

Prijs € 2.300.000 k.k.
Functie Kantoorruimte
Onderhoud buiten Uitstekend
Onderhoud binnen Uitstekend
Wijk / Buurt Laren-Dorpskern

Gezamenlijk aangeboden De eenheden worden als één geheel aangeboden.

Uniek multi-tenant kantoorgebouw gelegen op een zeer markante plek in hartje Laren. Aan de Kerklaan 9B komt circa 750 m² kantoorruimte, alsmede 16 parkeerplaatsen op het voorgelegen terrein, beschikbaar voor de verkoop.

Bereikbaarheid:

De kantoorunits zijn gelegen in het centrum van Laren, om de hoek van De Brink op circa twee minuten rijden van de Rijksweg A1 en A27.

Beschikbaarheid:

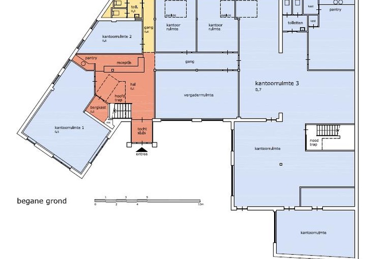
De kantoorruimte is verdeeld over circa 450 m² op de begane grond en circa 300 m² op de eerste verdieping. Het gebouw heeft diverse huurders met kortlopende huurcontracten, waarvan circa 296 m², gelegen op de begane grond leegstaat.

De ontvangen jaarhuur, inclusief leegstand, bedraagt op dit moment circa € 74.700,- op jaarbasis, exclusief BTW. De huurderslijst is op aanvraag beschikbaar.

Opleveringsniveau:

De unit wordt in de huidige staat opgeleverd inclusief de navolgende voorzieningen:

• vloer voorzien van vloerbedekking;

• systeemwanden;

• systeemplafonds met ingebouwde verlichtingsarmaturen;

• unit is afsluitbaar;

• airconditioning (in enkele units beschikbaar);

• afgewerkt e en geschilderde wanden;

• entree via voorzijde (medegebruik);

• dames en heren toiletten per etage (medegebruik);

• pantry per etage (medegebruik);

• alarminstallatie (medegebruik);

• medegebruik van serverruimte incl. bestaande bekabeling. Aanpassingen dienen te lopen via de leverancier van verhuurder;

• naam aanduiding zowel binnen als buiten (kosten worden separaat doorbelast);

• lounge begane grond (onder voorwaarden medegebruik).

Parkeergelegenheid:

Op het eigen terrein zijn 16 parkeerplaatsen beschikbaar, waarvan enkele momenteel verhuurd zijn aan de huidige huurders.

Bestemming:

De voor 'Kantoor' aangewezen gronden zijn bestemd voor:

A. kantoren;

B. ten hoogste 1 bedrijfswoning per bouwperceel;

C. afhaalpunt, ter plaatse van de aanduiding 'specifieke vorm van kantoor - afhaalpunt';

D. maatschappelijke voorzieningen, ter plaatse van de aanduiding 'maatschappelijk';

E. uitvaartcentrum, ter plaatse van de aanduiding 'uitvaartcentrum';

F. de instandhouding en bescherming van de ter plaatse van de aanduiding 'specifieke bouwaanduiding - gemeentelijk- cq rijksmonument' aangegeven bouwwerken met de daarbij behorende:

Let op: U bent zelf verantwoordelijk voor het toetsen van uw gewenste bestemming bij de gemeente. Activiteiten die afwijken van de huidige bestemming dient u eerst zelf te toetsen bij de gemeente Laren.

Bijlagen (op aanvraag beschikbaar):

- Eigendomsbewijs;

- Kadastrale gegevens;

- Meetrapport NEN 2580;

- Bestemmingsplan voorschriften;

- Afschrift energiecertificaat;

-Actuele huurderslijst

Energielabel:

Energielabel C

Koopsom:

De koopsom bedraagt € 2.300.000 kosten koper.

Aanvaarding:

In overleg

Bereikbaarheid

Tram, bus, metro
  • Groene Gerritsweg 2 min. lopen
  • Brink/Centrum 3 min. lopen
  • Remiseweg 6 min. lopen
  • Singermuseum 7 min. lopen
  • Kermisterrein 8 min. lopen

Bijlagen

De aanbieder van dit object heeft een PDF Brochure beschikbaar gesteld.

Vraag brochure aan