Klappolder 191
72 m2 kantoorruimte te huur in Bleiswijk
Kenmerken
| Bedrijfshal in units vanaf | 72 m2 |
| Aantal bouwlagen | 1 |
| Functie | Kantoorruimte |
| Wijk / Buurt | Klappolder |
| Bedrijventerrein | Veiling Bleiswijk |
1 eenheid beschikbaar
1 eenheid beschikbaar
- Eenheid
- Oppervlakte
- Huurprijs
- Gebruik
- 1
- 72 m2
- € 123,00 m²/jaar
- Kantoorruimte
| OPPERVLAKTE | 72 m2 |
| HUURPRIJS | € 123,00 m²/jaar |
| GEBRUIK | Kantoorruimte |
Omschrijving
Omschrijving
Te huur kantoorruimte
Klappolder 191, Bleiswijk
ALGEMEEN
Kleinschalige kantoorruimte gelegen op bedrijventerrein de Klappolder. De Klappolder is al enkele jaren oud en bevindt zich in een dynamische omgeving waar veel logistieke bedrijven zitten. De Klappolder in Bleiswijk is uitstekend ontsloten naar rijksweg A-12 via de Provinciale weg N209. Rekening houdend met het station Bleizo is de Klappolder een uitstekende locatie.
Er is een actief parkmanagement op het hele bedrijventerrein aanwezig. Dit management zorgt er o.a. voor dat het bedrijventerrein van hoogwaardige kwaliteit en leefbaarheid blijft.
KADASTER
Gemeente : Bleiswijk
Sectie : B
Nummer : 1174 resp. 1175 resp. 2175 allen gedeeltelijk
Bouwjaar: 1988
BESTEMMING
De bestemming van Klappolder 191 is "bedrijventerrein".
Bestemmingsplan Klappolder
Planstatus : vastgesteld 29 oktober 2009
Overheid: gemeente Lansingerland
Enkelbestemming : bedrijventerrein
Categorie : AGF gerelateerd
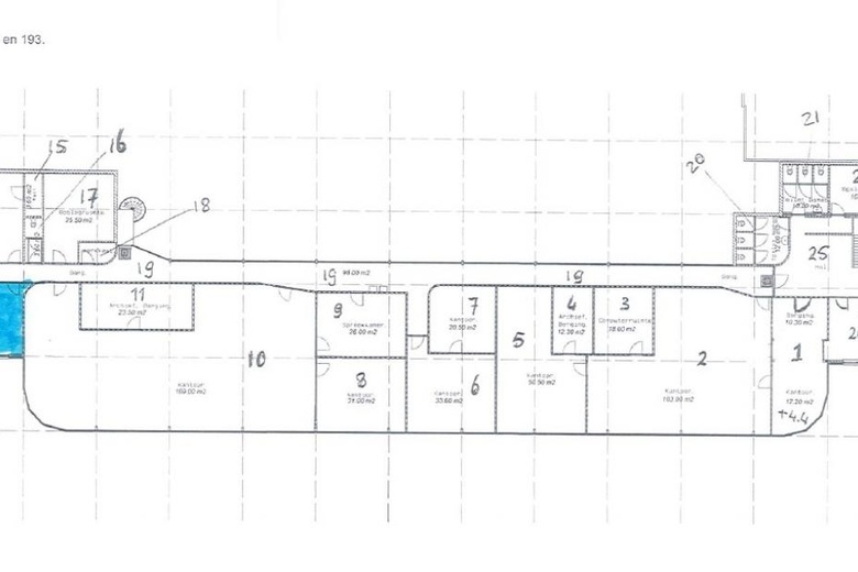
INDELING + OPLEVERINGSNIVEAU
Het complex aan de Klappolder 191 beschikt over een grote diversiteit aan kantoorunits. De kantoorunits zijn grotendeels standaard voorzien van airconditioning, ledverlichting.
Momenteel zijn de volgende units beschikbaar:
Unit : 14-15
Afmeting unit : 74 m²
Maandhuur incl. servicekosten excl. BTW : € 755,-
Unit : 4-5
Afmeting unit : 72 m²
Maandhuur incl. servicekosten excl. BTW : € 740,-
Unit : 23-24
Afmeting unit : 74 m²
Maandhuur incl. servicekosten excl. BTW : € 755,-
De oppervlakte is inclusief aandeel algemene ruimte.
Op eigen terrein zijn ruim voldoende openbare parkeerplaatsen.
De kantoorunits worden opgeleverd met onder andere de volgende voorzieningen:
- systeemplafonds + verlichtingsarmaturen
- vloerafwerking
- kozijnen met isolatieglas
- kabelgoten
- c.v.-installatie + radiatoren
- enkele kantoren voorzien van airco
- pantry
- gemeenschappelijke toiletten.
HUURCONDITIES
Huurprijs : € 8.880,- per jaar, inclusief servicekosten excl. BTW
Huurtermijn : in overleg
Huuringangsdatum : in overleg
Huurprijsindexatie : de huurprijs wordt jaarlijks geïndexeerd op basis van het Consumenten Prijsindexcijfer (CPI), reeks Alle huishoudens (2015=100) van het CBS. Voor het eerst een jaar na de huuringangsdatum
Huurprijsbetaling : per maand vooruit
Servicekosten : de servicekosten zijn bij de huursom inbegrepen:
- inspectie en onderhoud verwarmingsinstallatie
- inspectie en onderhoud brandslanghaspel(s)
- periodiek terrein en groenonderhoud
- periodieke glasbewassing buitenzijde
- ongediertebestrijding
- vastrecht en verbruik gas, water en elektra
- administratiekosten ad 5% over de hierboven genoemde leveringen en diensten
Bankgarantie : gelijk aan 3 maanden huur + 3 maanden servicekosten + BTW
Diversen : huurder dient zich te confirmeren aan het huishoudelijk reglement en de akte van splitsing
Contract : model door de Raad voor Onroerende Zaken (ROZ) op 30-1-2015 vastgesteld - waarbij artikel 4.5 in april aangepast - en op 8 april gedeponeerd bij de griffie van de rechtbank te Den Haag en aldaar ingeschreven onder nummer 10/2024 tevens gepubliceerd op de website www.roz.nl. inclusief aanvullende bepalingen verhuurder.
Voorbehoud : goedkeuring directie verhuurder/ positief bedrijfsinformatierapport; ter beoordeling van verhuurder.
BTW
Verhuurder wenst te opteren voor BTW-belaste huur en verhuur. Ingeval huurder de BTW niet kan verrekenen zal de huurprijs worden verhoogd ter compensatie van de gevolgen van het vervallen van de mogelijkheid om te opteren voor BTW-belaste huur.
Algemeen : de informatie betreffende de kantoorruimte aan de Klappolder 191 te Bleiswijk is met zorg samengesteld. Voor de juistheid daarvan kan door Hopman en Schreuder Bedrijfshuisvesting BV geen aansprakelijkheid worden aanvaard, noch kan aan de vermelde gegevens enig recht worden ontleend. Alle opgegeven oppervlakten en afmetingen zijn indicatief. Deze informatie dient slechts als uitnodiging om in onderhandeling te treden en kan derhalve niet worden beschouwd als een aanbod of offerte. Van toepassing zijn de NVM voorwaarden